Note: The House of the Duchess of Aosta is referred to as both V.3.12 and V.3.13 in the NdS 1910 (see below) but the plan in PPM (also below) only shows entrance V.3.12 and does not show V.3.13 at all.
This page contains press material and photos produced by the Parco Archeologico di Pompei.
Our grateful thanks to the Parco Archeologico di Pompei for giving us permission to use their press releases and photos.
Questa pagina contiene
materiale per la stampa e foto prodotte dal Parco Archeologico di Pompei.
Ringraziamo il Parco
Archeologico di Pompei per averci dato il permesso di utilizzare i loro
comunicati stampa e le loro foto.

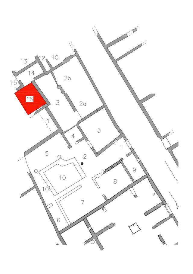
V.3.12 Pompeii. August 2022. New outline plan by Parco Archeologico di Pompeii.
Rooms 1, 2a, 2b, 3 are part of V.3.13 Casa del Larario.
Rooms 1 to 10 below it are in V.3.12 House of M. Samellius Modestus or Casa della Duchessa d'Aosta.
Rooms 10- 16 above are part of a separate house (see V.3.14) to the
north of the Casa del Larario.
Photograph © Parco
Archeologico di Pompei.

V.3.12 Pompeii. Drawing of plan based on PPM, III, p. 961.
According to the Parco Archeologico di Pompei press release the
lararium excavated in 2018 was to the north of this plan.
According to Eschebach, this was a yard-house with a wide entrance corridor to a three-sided pseudo-peristyle with four columns, pluteus and gutter.
To the north of the house, the area had not been excavated.
Left from the entrance was the kitchen and latrine (?), stairs to an upper floor, cubiculum, triclinium with dolium and a cupboard.
Right from the entrance was large storeroom and a storeroom/cupboard.
See Eschebach, L., 1993. Gebäudeverzeichnis und Stadtplan der antiken Stadt Pompeji. Köln: Böhlau. (p.140).
According to PPM,
Nothing can be said of this house, excavated only partially at the beginning of the 20th century, and on more than one occasion used as a “show excavation” for royal visitors and those in authority, this tradition from the 1700’s, (18th century) was obviously continued at Pompeii until the 20th century (in fact, the house was named after the Duchess of Aosta).
Of its decorations we know only of the painting seen on the east wall of the portico.
From a list by Della Corte (if the topographical identification is correct), we also get that in this house the following paintings also existed –
“a medallion with a head of a female”;
“a female figure, shown in prospect, carrying flowers in her lap”;
“a bull pulled down by a lion, among other beasts chasing each other”;
“to the left of a small passageway……. an enraged bull raised on its hind legs about to pull down another four-legged animal”, at present disappeared.
See Carratelli, G. P.,
1990-2003. Pompei: Pitture e Mosaici:
Vol. III. Roma: Istituto della enciclopedia italiana, (p.961).
Vicolo di Lucrezio
Frontone. June 2019. Looking north to new excavations between
V.3 and V.4, at north end.
On the left are the doorways to V.3.11 and
12. On the right is V.4. Photo courtesy of Buzz Ferebee.

V.3.12 Pompeii. March 2009. Entrance doorway and fauces 1. For more inscriptions, also see V.3.11.

V.3.12 Pompeii. A tabella ansata, a plaque with dovetailed ends, was found in December 1902 on the left of the entrance doorway.
Painted in black letters on this was the epigraph
M. SAMELLIVM
MODESTVM AED. O. F.

V.3.12 Pompeii. A second tabella ansata was found in December 1902 on the right of the entrance doorway.
Painted in red letters on this was the epigraph
M. SAMELLIVM
MODESTVM AED. O. V. F.
According to Epigraphik-Datenbank Clauss/Slaby (See www.manfredclauss.de) these were
CIL IV 6618 and CIL IV 6619
M(arcum) Samellium
Modestum
aed(ilem) o(ro) v(os) f(aciatis)

V.3.12 Pompeii. May 2005. Entrance fauces 1.

V.3.12 Pompeii. March 2009. Looking west across peristyle, numbered 2 on plan, from entrance fauces 1.
According to Jashemski –
The peristyle of this house (excavated 1905-6) was entered directly by a passageway from the street.
The garden was enclosed by a portico on four sides.
See Jashemski, W. F., 1993. The Gardens of Pompeii, Volume II: Appendices. New York: Caratzas. (p.115).
V.3.12 Pompeii. Upon excavating the andron in December 1902 the following plaster casts were made.
- an internal fascia of the entrance doorway
- a bar of wood with which one reinforced the doorway when it was closed
- a ladder (shown in the photo above).
According to Sogliano, it must be recorded that the ladder was the first of its type to be cast.
Sogliano said this was due to the diligence of Della Corte.
See Notizie
degli Scavi di Antichità, 1905, p. 214 fig. 5.

V.3.12 Pompeii. March 2009. Looking north across peristyle 2, to small room or storeroom, room 4 on plan.

V.3.12 Pompeii. March 2009. Doorway to small room or storeroom 4, on north side of peristyle.

V.3.12 Pompeii. May 2005. Looking north to small room or storeroom 4.
According to PPM, when discovered the column would have been painted as “fake marble”.

V.3.12 Pompeii. pre-1937-39. Looking towards north-east corner of peristyle 2.
The doorway to room 4 is on the left, and to room 3, in the centre right of the pilaster.
Photo courtesy of American Academy in Rome, Photographic Archive. Warsher collection no. 855.

V.3.12 Pompeii. pre-1937-39. (but shown as V.3.11 on the photo).
Painting from east wall of east portico between doorways to room 3 and entrance corridor 1.
Photo courtesy of American Academy in Rome, Photographic Archive. Warsher collection no. 717.

V.3.12 Pompeii. Old watercolour copy of painting from east wall of east portico between doorways to room 3 and entrance corridor 1.
According to PPM –
the painting may represent the arrival of Pelope (Pelops) at Pisa to the court of Enomao (Oenomaus) to ask for the hand of Hippodamia.
The upper painted part depicts a charioteer with three horses within a portico. but the lower sketched part is unfinished and shows a figure on a throne with two people to the left.
See Carratelli,
G. P., 1990-2003. Pompei: Pitture e
Mosaici: Vol. III. Roma: Istituto della enciclopedia italiana, p. 963.

V.3.12 Pompeii. March 2009. Overgrown area.

V.3.12 Pompeii. March 2009. Overgrown area.
7th March
1906 –
on the occasion of a visit to this excavation by the Duchess of Aosta, a rustic room was
uncovered in her presence to the south of the entrance fauces of V.3.12. (p. 271-2)
28th
April 1906 –
in the presence
of the King and Queen of England accompanied by the Duchess of Aosta, we
returned to the excavations in the same house but in the second room to the
left of the corridor, in which other than many ordinary amphorae were found,
the following were also found. (p. 272-3)
29th
September 1906 –
in the
presence of the Ambassador of the United States to the King of Italy, and his
numerous followers, an excavation towards the west part of the courtyard of the
same house was made, the following were found. (p. 274-5)
24th
April 1907 –
in the
presence of Prince Vittorio Napoleone and Duchess of Aosta – an excavation was
made in the south-west corner of the small peristyle.
The
following objects, including many lamps, were found (p. 331-2)
27th
September 1907 –
we executed
the uncovering of the lower part of a room situated to the south-west of the
peristyle of the same house (at V.3.12) in the presence of the Grand Duke
Michele Alexandrovitch, in which room the following objects were found. (p. 332)
24th
August 1908 –
the rustic
room, the second on the left of the entrance, was excavated in the House known
as “of the Duchess of Aosta”, and the following was found. (p. 417).
25th
August 1908 –
on the next
day, in the same room a one-handled terracotta lamp with a round body and
ring-loop and two other smaller side fins, painted in red. (inv. 275).
26th
August 1908 –
in the
uncovered space, in the south-west corner of the house in question, a bronze
bucket, 0.21m high, without a rim, the bottom restored with lead (Inv. 276).
27th
August1908 –
in the same
place, a small terracotta drinking vessel for birds, 0.067m wide, depressed
spherical form, broken in the handle (Inv.277).

V.3.12 Pompeii. Page
from Notizie degli Scavi, 1910, p. 271.

V.3.12 Pompeii. Page from Notizie degli Scavi, 1910, p. 272.

V.3.12 Pompeii. Page
from Notizie degli Scavi, 1910, p. 273.

V.3.12 Pompeii. Page
from Notizie degli Scavi, 1910, p. 274.

V.3.12 Pompeii. Page
from Notizie degli Scavi, 1910, p. 275.

V.3.12 Pompeii. 24th April 1910. Page from Notizie degli Scavi,
1910, p. 331.

V.3.12 Pompeii. 24th
April 1910. Page from Notizie degli Scavi, 1910, p. 332.

V.3.12 Pompeii. 27th
September 1910. Page from Notizie degli Scavi, 1910, p. 332.

V.3.12 Pompeii. 24th
August 1908. Page from Notizie degli Scavi, 1910, p. 417.

V.3.12 Pompeii? Page
from Notizie degli Scavi, 1910, p. 417.
“Removing a mound of earth deposited in the kitchen
existing in the south-west corner of house no. 13, of Insula III, Reg. IV, in
order to clean this place, found in the soil was a bronze boiler/kettle, of
hemispherical shape with a horizontal shoulder, and with an iron handle. (Inv.
374).”
This boiler/kettle may or may not have been found in this house, as there does not appear to be a house numbered IV.3.13.
However according to CTP,
“In the course of the excavations at Pompeii, from the time of Fiorelli to Maiuri, the enumeration of the Regions and of the Insulae has often changed.”
On page 511, there is a Concordance which seems to indicate that IV.3, may have meant either IV.1 or VII.3.
See Van der Poel, H. B., 1981. Corpus Topographicum Pompeianum, Part V. Austin: University of Texas. (p. 511)
As IV.1 only has 7 doorways at present, number 13 would not seem to apply.
As regards VII.3.13, the bronze boiler/kettle may have been found there, although this house seemed to have been excavated before 1867.
Possibly this is a typing error, and Reg. IV may have been written instead of Reg. V. A mystery!