In 2018-2019 to improve the drainage and security for visitors to the site, the soil, ash and exuberant vegetation was removed from the slope of the unexcavated land on the east side of Via del Vesuvio (Insula V.6).
Twenty new rooms have been identified of the various building units thus identified, referable to at least four houses, indicated by the passages of the entrances that opened in the walls facing the street (Fig. 4).
See Osanna M., 2019. Pompei. Il tempo
ritrovato. Le nuove scoperte. Milano: Rizzoli, p. 216-7, fig. 4.
The entrance numbers may eventually change as a result.
Further excavations were then carried out in 2018 and 2023-4.
This has cleared the area to enable the street boundary wall and rooms at its immediate rear to be viewed from Via del Vesuvio.
Previously only the western street front had been excavated, c.1902, 1905-8.
Our house numbers are based on the plan as Eschebach drew it in 1969.
Until this area is fully excavated, this may or may not be the correct number of entrances.
As excavations proceed the houses may receive different numbers.
According to the plan in Massimo Osanna’s book, this house is referred to as “Casa 2”.
See Osanna M.,
2019. Pompei. Il tempo ritrovato. Le nuove scoperte. Milano: Rizzoli, p.
216, fig. 4.
We constructed the new rooms in this house from press material and photos produced by the Parco Archeologico di Pompei.
Our grateful thanks to the Parco Archeologico di Pompei for giving us permission to use their press releases and photos.
We would like to thank Klaus Heese for his interest in this website, and for his continued help in taking new photographs.
Our thanks also go to Giuseppe Ciaramella, Aude Durand, Johannes Eber and Davide Peluso for their contribution.
All these photos have now been combined.
Abbiamo costruito le nuove ambiente in questa casa
da materiale stampa e foto prodotte dal Parco Archeologico di Pompei.
Ringraziamo il Parco Archeologico di Pompei per
averci dato il permesso di utilizzare i loro comunicati stampa e le loro foto.
I nostri ringraziamenti vanno anche a
Giuseppe Ciaramella, Aude Durand, Johannes Eber e Davide Peluso per il loro contributo.
Tutte queste foto sono state ora
combinate.
The
House of Leda has two bedrooms on either side of the entrance, one of which
houses the painting depicting Leda and the swan.
The
new rooms that emerged include the tablinum, a corridor for the entrance to the
servile quarters and a small quadrangular room.
The
bedroom to the north of the fauces shows medallions/roundels with portraits of
female faces.
Finally
the walls of the corridor are decorated in such a way as to replicate different
types of marble.
See http://pompeiisites.org/bolletino-degli-scavi-di-pompei/casa-di-leda
La Casa di Leda presenta ai lati
dell’ingresso due cubicoli, uno dei quali ospite il quadro raffigurante Leda e
il cigno.
Le nuove stanze emerse comprendono il
tablinio, un corridoio per l’ingresso ai quartieri
servili e un piccolo vano quadrangolare.
Il cubicolo posto a nord delle fauces mostra
invece dei tondi con ritratti di volti femminili.
Le parete del corridoio sono infine decorate in
modo da replicare diverse tipologie di marmo.
Vedi http://pompeiisites.org/bolletino-degli-scavi-di-pompei/casa-di-leda

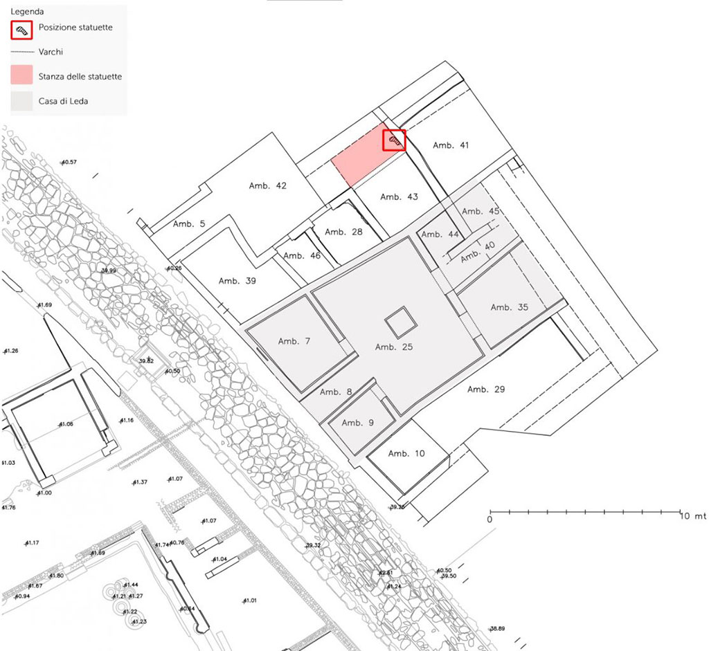
V.6.12 Pompeii. January 2024. Plan with house area shaded grey.
The house excavated so far consists of amb. 7, 8, 9, 25, 35, 40, 44 and 45.

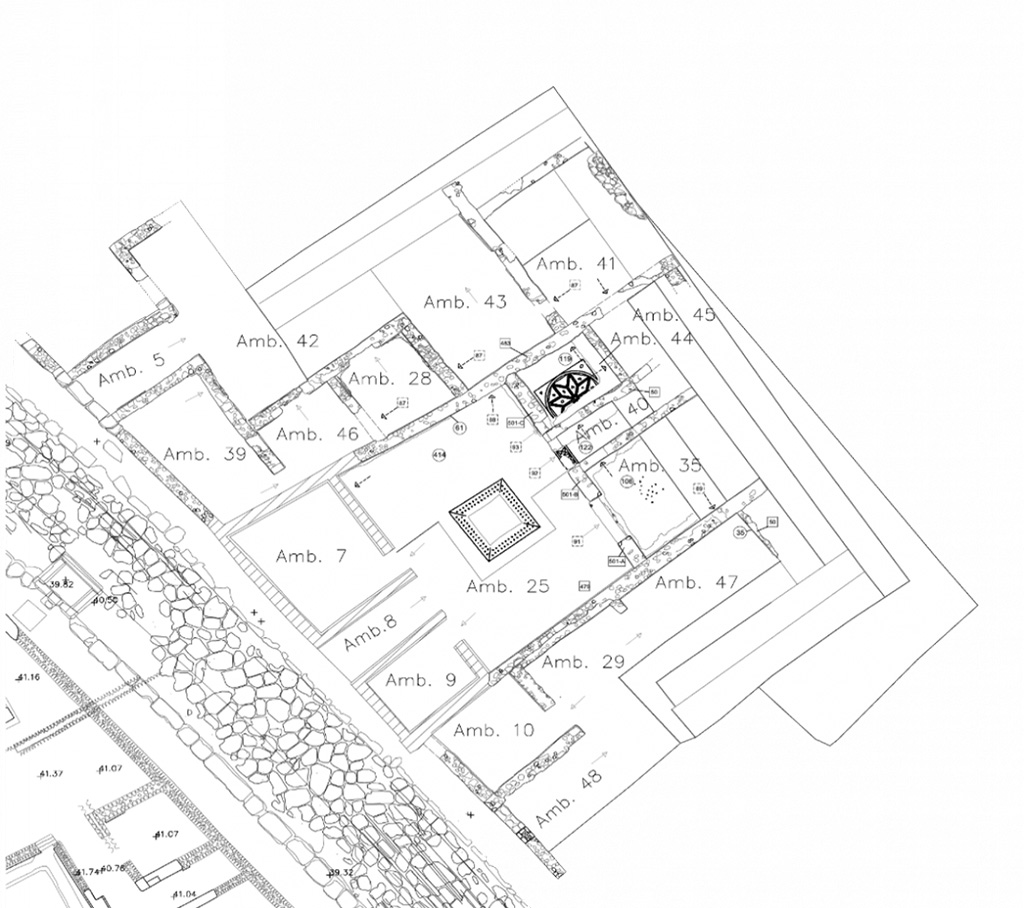
V.6.12 Pompeii. March 2024. Plan, including some details of floors.
Vedi/See E-Journal 01: 01.03.24,
Interventi conservativi e nuovi scavi nella Casa di Leda. Dalla tutela alla
conoscenza di un’abitazione del ceto medio di Pompei, Fig. 1.
Photograph © Parco Archeologico di Pompei.
PAP PDF E-Journal 01,
01.03.24: Interventi conservativi e nuovi scavi nella Casa-di-Leda
Osanna M, 2019. Pompei.
Il tempo ritrovato. Le Nuove Scoperte. Milano: Rizzoli (to be published
26th November 2019).
PAP: L’affresco-di-un-priapo-come-quello-della-nota-casa-dei-vettii-emerge-dagli-scavi-della-regio-v
PAP: love-and-sensuality-in-the-frescoes-of-regio-v
PAP:
amore-e-sensualita-negli-affreschi-della-regio-V
Painting of Priapus - painting under excavation
Painting of Priapus - wall with Priapus painting
Painting of Priapus - wall under excavation
Leda and the swan fresco - discovery
Leda and the swan fresco - during excavation
Leda and the swan fresco - corner of room
Leda and the swan fresco - detail
PAP on YouTube https://youtu.be/8jgAanBjmO8
Parco Archeologico
di Pompeii web site
Photos on the Archaeology News Network
House of Priapus fresco, mosaic nymphaeum, female portrait and cubiculum with two small scenes
Erotic fresco
uncovered in Pompeii
Leda and the swan under excavation
Stunning Narcissus fresco uncovered at Pompeii
Stunning Narcissus fresco uncovered at Pompeii

Via del Vesuvio, Pompeii. December 2023. Looking south along
east side with V.6.12, doorway, in centre. Photo courtesy of Miriam Colomer.

Via del
Vesuvio, Pompeii. October 2020.
Looking north to the house with paintings of Priapus, Leda and Narcissus, in centre. Photo courtesy of Klaus Heese.

V.6.12 Pompeii. April 2022.
Looking towards
entrance doorway, in centre, on east side of Via del Vesuvio. Photo
courtesy of Giuseppe Ciaramella.

Looking towards entrance doorway, in centre, on east side of Via del Vesuvio. Photo courtesy of Klaus Heese.

V.6.12 Pompeii. December 2023. Looking
east on Via del Vesuvio. Photo courtesy of Miriam Colomer.

V.6.12 Pompeii. October 2022. Looking east to entrance doorway. Photo courtesy of Klaus Heese.

V.6.12 Pompeii. May 2006. Entrance doorway to fauces 8, centre right.
According to NdS,
“Proceeding towards the north, nearly opposite to the fountain which has the relief of a flask on its pedestal, a graffito in letters enclosed in a circle painted on red plaster, was found”.

and nearby

and
following, always on the same side of the roadway and a small distance from the
said fountain, one could see traces of programmes overlapping each other, and
painted in red –

According to the Epigraphic Database Roma this read
V̲estorium [CIL IV, 6643]
and
superimposed –

According to the Epigraphic Database Roma this read
[Cas]ell[ium]
âêd(ilem) ô(ro) v̂(os) f(aciatis) [CIL
IV, 6644]
See Sogliano, in Notizie degli Scavi, 1906, (p.156).

V.6.12 Pompeii. December 2005. Details of façade on north side of entrance doorway, on right.

V.6.12 Pompeii. May 2006. Details from the façade of the room 7 on north side of entrance doorway.

V.6.12 Pompeii. Geometric zoccolo and red panelled compartments on facade.
Comparison of the stonework with the photo above would seem to place this between V.6.13 and V.6.12.
V.6.12 room 7 is behind the painted wall area on the right and V.6.13 room 39 is behind the bare stone wall on the left.
DAIR 31.808.
Photo © Deutsches Archäologisches Institut, Abteilung Rom, Arkiv.
According to PPP, this photo was possibly from V.6.7 and V.6.6.
See Bragantini, de Vos, Badoni, 1983. Pitture e Pavimenti di Pompei, Parte 2. Rome: ICCD, p. 104.

V.6.12 Pompeii. December 2005. The entrance doorway is centre right with the wide horizontal rectangular stone.

V.6.12, Pompeii, (on left). May 2006. Front façade, on south side of entrance corridor, with V.6.11, on right.

V.6.12, Pompeii, (on left). December 2005. Front façade, on south side of entrance corridor, with V.6.11, on right.
A painting of Priapus weighing his member, was found in fauces.
Newly excavated west wall adjacent to Via del Vesuvio had architectural painting and a portrait medallion between the architectural painting.
The medallion was a female portrait.
For Parco Archeologico
di Pompei press release and photo: See laffresco-di-un-priapo-come-quello-della-nota-casa-dei-vettii-emerge-dagli-scavi-della-regio-V
A painting of Leda and the Swan (Zeus) was discovered during the stabilization and reprofiling of the excavation fronts, in a cubiculum (bedroom) of a house along Via del Vesuvio.
The room that preserves the painting is placed next to the entrance corridor where the fresco of the Priapus had already been identified.
The scene - full of sensuality - depicts the union of Jupiter, transformed into a swan, and Leda, wife of King Tyndareus.
From her embraces, first with Jupiter and then Tyndareus, would be born the twins Castor and Pollux from an egg (the Dioscuri), Helen - the future wife of King Menelaus of Sparta and cause of the Trojan War - and Clytemnestra, later bride (and assassin) of King Agamemnon of Argos and brother to Menelaus.
For Parco Archeologico di
Pompei press release and photos: See leda-e-il-cigno-laffresco-riemerge-da-un-ambiente-di-via-del-vesuvio-regio-V
A magnificent
fresco in a nearly pristine state of conservation depicting the Narcissus myth
is the latest find. The fresco depicts Narcissus looking at his
reflection in the water. The find took place in the same villa that months ago unearthed a
sensual fresco depicting the myth of Leda and the swan. The interim director of
the Pompeii archaeological site, Alfonsina Russo, announced: "A sensual
and refined alcove, reminiscent of the Leda and the swan find, has reappeared
in all its splendour during the excavation at Pompeii's Regio V site,"
adding that "a room located at the back of the villa's atrium, with
brightly coloured walls, is where we found the fresco of Narcissus looking at
himself in a pond."
Pompeii
archaeologists are slowly revealing the luxurious interior of the Roman villa
where the Leda fresco was found.
The decoration
is rich in floral ornaments, interspersed with griffins with cornucopias,
flying cupids, still lifes and scenes of fighting animals.
In the Atrium
where the Narcissus fresco was located are the remains of a staircase leading
to the top floor.
Under the
staircase, researchers found a storage area with a dozen glass vases, eight
amphorae, a copper funnel and a situla (bucket).
"The
beauty of these rooms, evident since the first discoveries, has led us to
change our project and continue excavating," Russo said, adding they hoped
to open up, sometime in the future, at least part of the Roman home, or Domus,
to the public.
Pompeii's
director Massimo Osanna also pointed out that "the location was pervaded
by the 'joie de vivre' themes; beauty and vanity, underscored by the figures of
maenads (female followers of Dionysus) and satyrs who, in a sort of Dionysian
courtship dance, are visible all over the ancient house." He said the
villa "was deliberately luxurious, and probably dates back to the final
years of the colony."
For Parco Archeologico di
Pompei press release and photos: See amore-e-sensualita-negli-affreschi-della-regio-V
The exploratory
activities of the ongoing intervention have been started to the north of the
house of Leda.
Behind the atrium (25), three rooms (tablinum 35; cubiculum 44; cubiculum 45) and a corridor (40) have emerged.
From the atrium one could access the corridor 40 and room 35 which probably represented a tablinum.

V.6.12 Pompeii. December 2018.
Looking east from entrance doorway. Photo courtesy of Aude Durand.


V.6.12 Pompeii. October 2024. South wall of fauces/entrance corridor. Photo courtesy of Klaus Heese.

Looking east along corridor 8, across atrium 25 to doorway to corridor 40, on left, with doorway to room 35, in centre at rear of atrium.
Cubiculum 9 is on the right. Photo courtesy of Klaus Heese.

V.6.12 Pompeii. October 2024.
Detail of painted decoration on south wall of entrance corridor/fauces. Photo courtesy of Klaus Heese.

Looking east from entrance corridor towards doorway to room 35, at rear of atrium.
Photo courtesy of Klaus Heese.


V.6.12 Pompeii. December 2018.
Looking east along
south wall of entrance corridor/fauces, towards atrium. Photo courtesy of Aude Durand


Detail from upper north wall of entrance corridor, at west end. Photo courtesy of Klaus Heese.

V.6.12 Pompeii. May 2021.
North wall of fauces/entrance corridor with a central painting of Priapus. Photo courtesy of Davide Peluso.

V.6.12 Pompeii. October 2020. Detail of upper north wall of fauces/ entrance corridor. Photo courtesy of Klaus Heese.

Detail from upper north wall of fauces/ entrance corridor on west side of Priapus painting.
Photo courtesy of Klaus Heese.

Detail from upper north wall of fauces/ entrance corridor on east side of Priapus painting.
Photo courtesy of Klaus Heese.

Detail of painted panel from upper north wall of fauces/ entrance corridor above Priapus painting. Photo courtesy of Klaus Heese.

Detail of painted bird from east end of upper north wall of fauces/ entrance corridor. Photo courtesy of Klaus Heese.

V.6.12, Pompeii. January
2020. Detail of upper north wall of fauces/ entrance corridor. Photo courtesy of Johannes
Eber.

V.6.12,
Pompeii. December 2019. Looking
east along north wall of entrance corridor. Photo courtesy of Giuseppe Ciaramella.

Detail
of fresco on north wall of entrance corridor. Photo
courtesy of Giuseppe Ciaramella.

V.6.12, Pompeii. December 2019. Looking towards upper north wall of entrance corridor. Photo courtesy of Giuseppe Ciaramella.


V.6.12, Pompeii. January 2020. Detail of
painted upper north wall of entrance fauces/corridor. Photo
courtesy of Johannes Eber.

V.6.12 Pompeii. September 2021.
Detail of Priapus from upper north wall of entrance fauces. Photo courtesy of Klaus Heese.

V.6.12 Pompeii. October 2020.
Detail of Priapus from north wall of entrance fauces. Photo courtesy of Klaus Heese.


Detail
of dolphin and marine animal from upper panel on east side of central painting
of Priapus. Photo courtesy of Klaus Heese.

Detail of dolphin
and marine animal from upper panel on east side of central painting of Priapus.
Photo courtesy of Klaus Heese.

V.6.12 Pompeii. October 2020.
Detail of painted animal in centre of panel on east side of
red central panel on north wall. Photo courtesy of Klaus Heese.

V.6.12 Pompeii. August 2018. North wall of fauces during excavation, where the painting of Priapus was found.
Parete nord
di fauces durante lo scavo, dove è stato trovato il dipinto di Priapo.
Photograph ©
Parco Archeologico di Pompei.

V.6.12 Pompeii. August 2018. Painting of Priapus weighing his member, found in fauces.
Dipinto di
Priapo che pesa il suo membro, trovato in fauces.
Photograph ©
Parco Archeologico di Pompei.

V.6.12 Pompeii. August 2018. Detail of north wall of fauces during excavation.
Particolare
della parete nord di fauces durante lo scavo.
Photograph ©
Parco Archeologico di Pompei.