In 2018-2019 to improve the drainage and security for visitors to the site, the soil, ash and exuberant vegetation was removed from the slope of the unexcavated land on the east side of Via del Vesuvio (Insula V.6).
Twenty new rooms have been identified of the various building units thus identified, referable to at least four houses, indicated by the passages of the entrances that opened in the walls facing the street (Fig. 4).
See Osanna M.,
2019. Pompei. Il tempo ritrovato. Le nuove scoperte. Milano: Rizzoli, p.
216-7, fig. 4.
The entrance numbers may eventually change as a result.
Further excavations were then carried out in 2018 and 2023-4.
This has cleared the area to enable the street boundary wall and rooms at its immediate rear to be viewed from Via del Vesuvio.
Previously only the western street front had been excavated, c.1902, 1905-8.
It was extremely difficult to see and show exactly where the entrances were.
Our house numbers are based on the plan as Eschebach drew it in 1969.
Until this area is fully excavated, this may or may not be the correct number of entrances.
As excavations proceed the houses may receive different numbers.
Our grateful thanks to the Parco Archeologico di Pompei for giving us permission to use their press releases and photos.
Ringraziamo il
Parco Archeologico di Pompei per averci dato il permesso di utilizzare i loro
comunicati stampa e le loro foto.

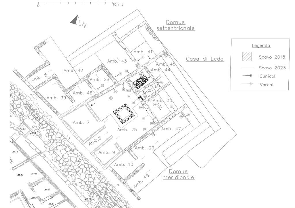
V.6.13 Pompeii. March 2024. Plan.
Vedi/See E-Journal 01: 01.03.24, Interventi
conservativi e nuovi scavi nella Casa di Leda. Dalla tutela alla conoscenza di
un’abitazione del ceto medio di Pompei, Fig. 1.
Photograph © Parco Archeologico di Pompei.
The house to the north of the House of Leda is currently composed of six rooms, almost all connected to the atrium, located to the north.
La casa a nord della Casa di Leda è al momento composta da sei ambienti, quasi tutti
collegati con l’atrio, posto a Nord.
See/Vedi http://pompeiisites.org/bolletino-degli-scavi-di-pompei/casa-di-leda

V.6.13 Pompeii. V.6.13 Pompeii. March 2024.
The house is currently composed of the fauces and six rooms, Amb. 5, Amb. 39, Amb. 42, Amb. 46, Amb. 28, Amb. 43 and Amb. 41 on this plan.
The area in Amb. 42 shaded in red is where the votive terracotta statuettes were found.
La casa è attualmente
composta dalle fauces e sei stanze, Amb. 5, Amb. 39, Amb. 42, Amb. 46, Amb. 28,
Amb. 43 e Amb. 41 su questo piano. L'area dell'Amb. 42 ombreggiata in rosso è
quella in cui sono state rinvenute le statuette votive in terracotta.
See/Vedi http://pompeiisites.org/bolletino-degli-scavi-di-pompei/casa-di-leda

V.6.13 Pompeii. Amb. 42 (left) with niche in
east wall with terracotta votive statuettes. Amb. 43 is on
the right.
Amb. 42 (a sinistra) con nicchia nella parete est con statuette votive in
terracotta. L'Amb. 43 si trova sulla destra.
Photograph © Parco Archeologico di Pompei.

V.6.13 Pompeii. December 2023. Ambiente 42-43. East wall.
Vedi/See E-Journal 09: 22.12.23, fig. 10.
Photograph © Parco Archeologico di Pompei.

V.6.13 Pompeii. December 2023. Ambiente 42-43. East wall, south end. Panel with painting of ducks.
Photograph
© Parco Archeologico di Pompei.

V.6.13 Pompeii. December 2023. Ambiente 42-43. East wall, centre. Panel with painting of fruit and bird.
Photograph © Parco Archeologico di Pompei.

V.6.13 Pompeii. December 2023. Ambiente 42-43. Panel with painting of ducks.
Photograph © Parco Archeologico di Pompei.

V.6.13 Pompeii. December 2023. Ambiente 42-43. Panel with painting of still life.
Photograph © Parco Archeologico di Pompei.

V.6.13 Pompeii. March 2024.
Amb. 43 (domus settentrionale) tassello di
pulitura.
Amb. 43 (northern house) partly cleaned piece.
Photograph © Parco Archeologico di Pompei.

Amb. 43 (domus settentrionale) dopo la pulitura.
Amb. 43 (northern house) after cleaning.
Vedi/See
E-Journal 01: 01.03.24, Interventi conservativi e nuovi scavi nella Casa di Leda.
Dalla tutela alla conoscenza di un’abitazione del ceto medio di Pompei, Fig.
17.
Photograph © Parco Archeologico di Pompei.

V.6.13 Pompeii.
December 2023.
Amb. 42-43 Lo scavo della nicchia del larario inizia a portare alla luce le
statuette votive in terracotta.
Amb. 42-43 excavation of lararium niche starting to uncover the terracotta votive statuettes.
Vedi/See
E-Journal 09: 22.12.23, Scavo e restauro della Casa di Leda – Regio V, 6.
Nuovi rinvenimenti, p. 5-6.
Photograph
© Parco Archeologico di Pompei.

V.6.13 Pompeii.
December 2023.
Amb. 42-43 scavo della nicchia del larario che mostra le statuette votive
in terracotta.
L’11 dicembre del 2023, al di sotto di una coltre di lapillo, all’interno
di una nicchia ricavata nella parete N-S dell’ambiente 42, sono state rinvenute
13 statuine in terracotta, di circa 15-20 cm, realizzate con matrici bivalve e
caratterizzate da una vivace policromia. Esse sono state ritrovate schierate su
un asse orizzontale in posizione eretta, all’interno di un vano definito da
blocchi di travertino, dove presumibilmente si trovava un mobile scaffale
(fig.10). In realtà, il recupero di molti altri frammenti denota la presenza di
una teoria di sculture senz’altro più copiosa (fig.11-12-13). Oltre figure
antropomorfe, si riconoscono una noce, una mandorla, la testa di un gallo in
argilla, una pigna in vetro
Amb. 42-43 excavation of lararium niche showing the terracotta votive statuettes.
On 11 December 2023, 13 terracotta figurines, measuring approximately 15-20 cm, made of bivalve moulds and characterised by a vivid polychromy, were found under a layer of lapilli, inside a niche in the N-S wall of room 42. They were found lined up on a horizontal axis in an upright position, inside a room defined by travertine blocks, where a mobile shelf was presumably located (fig. 10). In reality, the recovery of many other fragments denotes the presence in theory of sculptures that are undoubtedly more copious (fig.11-12-13). In addition to anthropomorphic figures, one recognises a walnut, an almond, the head of a rooster in clay, a glass pine cone.
Vedi/See
E-Journal 09: 22.12.23, Scavo e restauro della Casa di Leda – Regio V, 6.
Nuovi rinvenimenti, p. 5-6, fig. 10.
Photograph
© Parco Archeologico di Pompei.

V.6.13 Pompeii. December 2023.
Amb. 42-43 pigna in vetro.
Amb. 42-43 glass pine cone.
Vedi/See E-Journal 09: 22.12.23, Scavo e
restauro della Casa di Leda – Regio V, 6. Nuovi rinvenimenti, p. 5-6.
Photograph © Parco Archeologico di Pompei.

V.6.13 Pompeii. December 2023. Crouching figure.
V.6.13 Pompeii. Dicembre 2023. Figura
accovacciata.
Vedi/See E-Journal 09: 22.12.23, Scavo e
restauro della Casa di Leda – Regio V, 6. Nuovi rinvenimenti, p. 5-7, fig. 15.
Photograph © Parco Archeologico di Pompei.

V.6.13 Pompeii. December 2023. Terracotta statuette of mother and child.
V.6.13 Pompeii. Dicembre 2023. Figura di madre con
bambino
Vedi/See E-Journal 09: 22.12.23, Scavo e
restauro della Casa di Leda – Regio V, 6. Nuovi rinvenimenti, p. 5-7, fig.
17.
Photograph © Parco Archeologico di Pompei.

V.6.13 Pompeii.
December 2023. Terracotta statuette of Attis.
Vedi/See
E-Journal 09: 22.12.23, Scavo e restauro della Casa di Leda – Regio V, 6.
Nuovi rinvenimenti, p. 5-7, fig. 14.
Photograph
© Parco Archeologico di Pompei.
V.6.13 Pompeii. December 2023. Collage of
terracotta statuettes.
V.6.13 Pompei. Dicembre 2023. Collage di statuette
in terracotta.
Vedi/See E-Journal 09: 22.12.23, Scavo e
restauro della Casa di Leda – Regio V, 6. Nuovi rinvenimenti, p. 5-7, fig.
14-17.
Photograph © Parco Archeologico di Pompei.

V.6.13 Pompeii, on right. 2018. Looking south along east side of Via del Vesuvio during works.
Photo © Parco
Archeologico di Pompei.

Looking east on Via del Vesuvio towards room 39 on south side of entrance doorway, on left. Photo courtesy of Klaus Heese.

Looking south-east towards entrance doorway and front façade of room 39 on south side of entrance doorway. Photo courtesy of Klaus Heese.


V.6.13 Pompeii (on right). May 2006. Entrance doorways, with V.6.14, on left.

V.6.13 Pompeii. December 2005. Entrance doorway.

V.6.13 Pompeii. May 2006. Entrance doorway.

Looking south-east towards room 39 on south side of entrance doorway. Photo courtesy of Klaus Heese.

V.6.13 Pompeii. May 2006. Façade on south side of entrance doorway, with site of painted plaster, on right.

V.6.13 Pompeii. December 2005. Façade on south side of entrance doorway, with site of painted plaster (photo below), on right.

V.6.13 Pompeii. Geometric zoccolo and red panelled compartments on facade.
Comparison of the stonework with the photo above would seem to place this between V.6.13 and V.6.12.
V.6.13 room 39 is behind the bare stone wall on the left and V.6.12 room 7 is behind the painted wall area on the right.
DAIR 31.808. Photo © Deutsches
Archäologisches Institut, Abteilung Rom, Arkiv.
According to PPP, this photo was possibly from V.6.7 and V.6.6.
See Bragantini, de Vos, Badoni, 1983. Pitture e Pavimenti di Pompei, Parte 2. Rome: ICCD, p. 104.