
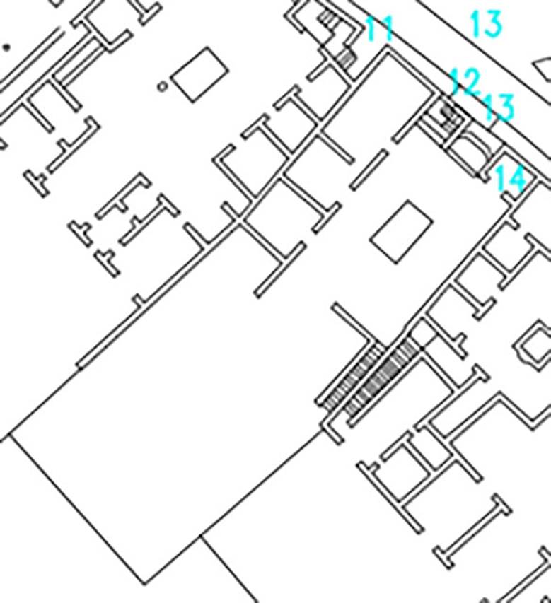
VI.17.12, 13 and 14 Pompeii. VI.17.13 is in the centre.
Plan courtesy Dobbins, J. J. and Foss, P. W., 2008. The World of Pompeii. Oxford: Routledge, CD-ROM.
According to
Fiorelli –
“VI.17.12-14. Un
altra casa teneva sulla via una bottega, di cui sembra caduto il muro di fondo,
un adito per la discesa nei sotterranei, e la porta d’ingresso preceduta da
vestibolo, a sinistra del quale era un cubicolo. Altri tre cubicoli stavano sul
destro lato dell’atrio, di cui essendo sprofondato il tablino, non rimane che
una gradinata esistente nella vicina fauce.
See Fiorelli, G.
(1875). Descrizione, (p.432-3)
See Pappalardo, U., 2001. La Descrizione di Pompei per Giuseppe Fiorelli (1875). Napoli: Massa Editore. (p.159)
(translation -
"VI.17.12-14. Another house which had a shop on the
roadway, of which it seemed the rear wall had fallen, a room to descend to
lower floors, and the entrance doorway preceded by a vestibule, to the left of
which was a cubiculum. Another three cubicula were on the right-hand side of
the atrium, the tablinum having collapsed, nothing remained other than a stair
existing in the nearby corridor.)
According to Eschebach, Fiorelli’s description may have
been imperfect, “shop does not exist”.
See Eschebach, L., 1993. Gebäudeverzeichnis und Stadtplan der antiken Stadt Pompeji. Köln: Böhlau. (p.235).

VI.17.9, on left with letter G, then 10, followed by 13, 16-17, and 23-25, on right.
Part of a plan by Francesco La Vega, c.1800-1810. Now in Naples Museum.
DAIR 76.1262. Photo
© Deutsches Archäologisches Institut, Abteilung Rom, Arkiv.
According to Eschebach – this house was also known as the House with Three Atriums or House with Three Floors.
See Eschebach, L., 1993. Gebäudeverzeichnis und
Stadtplan der antiken Stadt Pompeji. Köln: Böhlau. (p.235).

VI.17.9-27 Pompeii. Detail from 1827 plan by Ing. del. R: Officio Topografico, Gaspare Marchesi.
Now in the Istituto Geografico Militare, Corpo di
Stato Maggiore, Sezione di Napoli, Cartella 82.24.
See Kockel V. 2005. Un capitolo dimenticato
della cartografia di Pompei Gaspare Marchesi e il Reale Officio Topografico di
Napoli: Rivista di Studi Pompeiana 16, pp. 11-36.

VI.17.15–11 Pompeii. October 2014. Street façade on west side of Via Consolare. Photo courtesy of Michael Binns.

VI.17.13–12 Pompeii. October 2014.
Street façade and doorways to VI.17.13 with steps, on left, and VI.17.12, on right. Photo courtesy of Michael Binns.

VI.17.14–13 Pompeii. October 2014. Looking west to street-front façade. Photo courtesy of Michael Binns.

VI.17.14–13 Pompeii. September 2015. Looking north-west along street-front façade from entrance with Corinthian capital.

VI.17.13 Pompeii. September 2015. East (street) side of Corinthian capital on north side of entrance doorway.

VI.17.13 Pompeii. September 2015. South (fauces) side of Corinthian capital on north side of entrance doorway.

VI.17.14–13 Pompeii. October 2014.
Looking north-west along street-front façade. On the left is VI.17.15. Photo courtesy of Michael Binns.

VI.1 Pompeii, on left. December 2005. Via Consolare looking south. VI.17.13 on right.

VI.17.14 -13 Pompeii. October 2014.
Looking south-west towards steps to entrance doorway, on right. Photo courtesy of Michael Binns.

VI.17.14 -13 Pompeii. September 2021.
Looking south-west towards steps to entrance doorway, in centre. Photo courtesy of Klaus Heese.

VI.17.13 Pompeii. May 2011. Looking south-west towards steps to entrance doorway.

VI.17.13 Pompeii. December 2005. Entrance.

VI.17.13 Pompeii. December 2004. Entrance doorway with three steps, with door pillars leading to vestibule with two steps.

VI.17.13 Pompeii. September 2004. Entrance doorway with Corinthian capital on north side.

VI.17.13-11 Pompeii. Pre-1937-39. Looking north along west side of Via Consolare, with VI.17.13, on left.
Photo courtesy of American Academy in Rome, Photographic Archive. Warsher collection no. 1517.

VI.17.13 Pompeii. September 2021.
Entrance doorway with steps to vestibule. Photo
courtesy of Klaus Heese.

VI.17.13 Pompeii. December 2007. Door pillars and vestibule with two steps.

VI.17.13 Pompeii. September 2021.
Looking west across site of impluvium in atrium
from entrance doorway. Photo courtesy of Klaus Heese.

VI.17.13 Pompeii. December 2007. Doorway to cubiculum on south side of entrance, on left.
In the south wall, towards the right, there does look like the remains of a doorway, this is shown on the plan by La Vega, but looks like it has now been bricked up.
If there was a doorway there, it would have linked to VI.17.16 and 17, and Piranesi would have been correct in calling it a house with three atriums!
See VI.17.16, with drawing of plans by Piranesi, Vol. II,
Pl. XLIV, and Pl. XLVI,
in Piranesi, F,
1804. Antiquités de la Grande Grèce : Tome II. Paris : Piranesi and Le
Blanc.

VI.17.13 Pompeii. December 2007. Cubiculum on south side of entrance, south wall.

VI.17.13 Pompeii. December 2005. East wall and south-east corner of cubiculum on south side of entrance.

VI.17.13 Pompeii. December 2007. Looking south-west across atrium.

VI.17.13 Pompeii. September 2021.
Looking west across atrium towards site of steps to lower floor and collapsed tablinum. Photo courtesy of Klaus Heese.

VI.17.13 Pompeii. December 2005. Looking west across atrium towards site of steps to lower floor, and collapsed tablinum.
According to Eschebach: there may have been a loggia on the lower floor.
See Eschebach, L., 1993. Gebäudeverzeichnis und Stadtplan der antiken Stadt Pompeji. Köln: Böhlau. (p.235).

VI.Ins.Occ.12/13, according to Warsher. (We have also included this photo into VII.16.12).
Pre-1937-39. Looking across atrium towards rear rooms on west side (?) of atrium.
Photo courtesy of American Academy in Rome, Photographic Archive. Warsher collection no. 1840.
(Note: we appreciate that none of the stonework ties up with the above photos, but as the area has suffered since it was excavated that might account for it. The room on the left may be a doorway leading to steps to a lower floor, the room on the right may be the tablinum.
If anyone can solve this mystery, we would appreciate hearing from you.)

VI.17.13 Pompeii. December 2007. Doorways to two rooms on north side of atrium.

VI.17.13 Pompeii. September 2021. Doorways to two rooms on north side of atrium. Photo courtesy of Klaus Heese.

VI.17.13 Pompeii. December 2005. Doorway to first room on north side of atrium, triclinium.
According to Allroggen-Bedel, she could not locate rooms 11 and 12 of VI.17.10, but, she wrote -
“However, two rooms in the next door house (VI.17.12-13) meet the description of rooms nos. 11 and 12.
La Vega said that in the space described as no.12, he had discovered a “sotterraneo” (underground room/cellar, etc).
The characteristics of the rooms– bed recess and sotterraneo, were both to be found next to the cellar stairs in VI.17.12.
The room described as no.11 is probably identical with the room next door (VI.17.13), where the remains of the yellow background central zone decoration was preserved.”
See
Allroggen-Bedel - Die malereien aus dem
Haus Insula Occidentalis 10, in Cronache Pompeiane II, 1976 (p.144-183).

VI.17.13 Pompeii. September 2021.
Pilaster on east side of doorway to triclinium in north-east
corner of atrium. Photo courtesy of Klaus Heese.

VI.17.13 Pompeii. September 2021.
Looking north-west
through doorway of triclinium on north side of atrium. Photo courtesy of Klaus Heese.

VI.17.13 Pompeii. September 2021. Looking south-east in
triclinium on north side of atrium. Photo courtesy of Klaus Heese.

VI.17.13 Pompeii. September 2021.
Looking towards west wall of triclinium on north side of atrium. Photo courtesy of Klaus Heese.

VI.17.13 Pompeii. September 2021.
Looking towards south-west corner of triclinium with
doorway. Photo courtesy of Klaus Heese.

VI.17.13 Pompeii. September 2021.
Looking through doorway in west wall of triclinium into second room on north side of atrium.
Photo
courtesy of Klaus Heese.

VI.17.13 Pompeii. September 2021.
Detail of pilaster between two rooms on north side of
atrium. Photo courtesy of Klaus Heese.

VI.17.13 Pompeii. December 2005. Detail of north wall of the atrium with terracotta infill.

VI.17.13 Pompeii. December 2005. Second room on north side of atrium.

VI.17.13 Pompeii. December 2007. Looking north-west to doorway to second room on north side of the atrium.
For details of excavation from Fiorelli G., 1860. Pompeianarum antiquitatum historia, Vol.
1: 1748 - 1818, Naples,
1,1,
see page at VI.17.25, parts 2 and 3.