
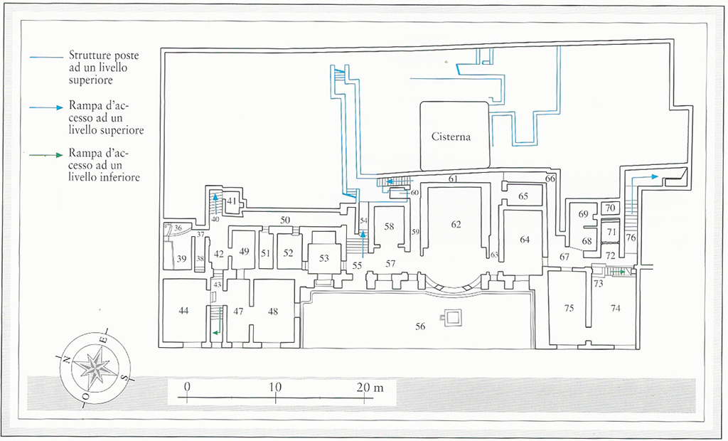
VII.16.22 Pompeii. Casa di Fabio Rufo or House of M Fabius Rufus. Planimetra del Pianoterra. Ground floor plan.
Plan M. Notomista and E. Piccirilli.
See Aoyagi M., Pappalardo U., 2006. Pompei (Regiones VI-VII) Insula Occidentalis. Napoli: Valtrend, p 271, Tav. 8.

VII.16.22 Pompeii. Casa di Fabio Rufo or House of M Fabius Rufus. Planimetra del primo piano sottostante. Plan of first lower floor.
Plan M. Notomista and E. Piccirilli.
See Aoyagi M., Pappalardo U., 2006. Pompei (Regiones VI-VII) Insula Occidentalis. Napoli: Valtrend, p 271, Tav. 9.

VII.16.22 Pompeii. Casa di Fabio Rufo or House of M Fabius Rufus. Planimetra del secondo piano sottostante. Plan of second lower floor.
Plan M. Notomista and E. Piccirilli.
See Aoyagi M., Pappalardo U., 2006. Pompei (Regiones VI-VII) Insula Occidentalis. Napoli: Valtrend, p 271, Tav. 10.

VII.16.17 Pompeii. Casa di Maius Castricius. Plan of ground floor.
Plan M. Notomista and E. Piccirilli.
See Varriale I., VII 16, Insula Occidentalis, 17, Casa di Maius Castricius in Aoyagi M., Pappalardo U., 2006. Pompei (Regiones VI-VII) Insula Occidentalis. Napoli: Valtrend, p 425, Tav. 11.

VII.16.17 Pompeii. Casa di Maius Castricius. Plan of first lower level floor.
Plan M. Notomista and E. Piccirilli.
See Varriale I., VII 16, Insula Occidentalis, 17, Casa di Maius Castricius in Aoyagi M., Pappalardo U., 2006. Pompei (Regiones VI-VII) Insula Occidentalis. Napoli: Valtrend, p 426, Tav. 12.

VII.16.17 Pompeii. Casa di Maius Castricius. Plan of second lower level floor.
Plan M. Notomista and E. Piccirilli.
See Varriale I., VII 16, Insula Occidentalis, 17, Casa di Maius Castricius in Aoyagi M., Pappalardo U., 2006. Pompei (Regiones VI-VII) Insula Occidentalis. Napoli: Valtrend, p 427, Tav. 13.
The room numbers are those referred to on the pompeiiinpictures pages for VII.16.22 which also includes the photographs for VII.16.17.
These plans are to help you accurately locate the rooms shown in the photographs of these houses.
The plans also show the entrance at VII.16.21 and the rear entrance at passageways 42 and 43, the recently identified site of the former Porta Occidentalis.
Please be aware that the room numbers shown reflect those used by Varriale, Aoyagi, Pappalardo and Grimaldi and will differ from any other plans or records both published and unpublished.
See Aoyagi M., Pappalardo U., 2006. Pompei (Regiones VI-VII) Insula Occidentalis. Napoli: Valtrend, p 271.
See Grimaldi M., 2014. Pompeii: La Casa di Marco Fabio Rufo. Napoli: Valtrend.
See Varriale I., VII 16, Insula Occidentalis, 17, Casa di Maius Castricius in Aoyagi M., Pappalardo U., 2006. Pompei (Regiones VI-VII) Insula Occidentalis. Napoli: Valtrend, p 421-503, Tav. 11, 12, 13.