In these last rooms, the skeletal remains of three victims of the eruption were discovered, three Pompeiian refugees who were in search of salvation but instead found death due to collapsing attics.
The first anthropological investigations indicate that they were two individual adults, probably women based on primary analysis conducted in situ, and one baby of approximately 3-4 years old. The individuals were found in an already excavated environment, where 40cm of intact stratigraphy remained. They rested directly on the floor - ultimately thanks to evidence from postmortem settlement processes, a series of postmortem traumas due to the collapsing attic from above can be seen; these fragments were mixed with white pumice lapilli, which are characteristic of the first phases of the Plinian Eruption of 79 CE.
The intertwining of politics and bakeries is attested in this house IX 10,1 by a series of electoral inscriptions in favour of Aulus Rustius Verus, whose initials also appear on the two elements of a millstone
See PAP New excavations in Regio IX
Lo scavo nell'area, lungo via di Nola, fu iniziato
nel 1888, ma fu presto interrotto. Dopo più di un secolo è stato ripreso e ha
già restituito sorprese. Emergono due case ad atrio, già parzialmente indagato
nell'800, costruite in età Sannitica e trasformate nel I secolo d.C. in
officine produttive. Si tratta di una fullonica (lavanderia) impiantata
nell'atrio dell'abitazione al civico 2, con banconi da lavoro e vasche per il
lavaggio e la tintura degli abiti e di un panificio con il forno, gli spazi per
le macine e gli ambienti per la lavorazione e la creazione dei prodotti
alimentari da distribuire in città.
In questi ultimi ambienti sono affiorati i resti
ossei di tre vittime dell'eruzione, tre pompeiani che si erano rifugiati in
cerca della salvezza e che hanno invece trovato la morte sotto i crolli dei
solai.
Le prime indagini antropologiche indicano due
individui pienamente adulti, probabilmente donne sulla base delle prime analisi
in situ, e di un bambino di età approssimativa intorno ai 3-4 anni. Gli
individui sono stati ritrovati in un ambiente già scavato, dove erano rimasti
solamente 40 cm. di stratigrafia intatta. Essi poggiavano a diretto contatto
con il pavimento, e presentavano - unitamente alle evidenze di importanti
processi di assestamento postmortem - una serie di
traumi perimortem dovuti al crollo del solaio
soprastante, i cui frammenti erano frammisti a lapilli pomicei bianchi, che
caratterizzano le prime fasi dell'eruzione Pliniana del 79 d.C. a Pompei.
L’intreccio tra politica e panifici, è attestato proprio nella questa casa IX 10,1 da una serie di iscrizioni
elettorali a favore di Aulus Rustius Verus, le cui iniziali appaiono anche sui
due elementi di una macina.
Vedi PAP Nuovi
scavi della Regio IX
In the autumn of 1888, the front of the insula situated to the east of Reg. IX.7 (Note: now renumbered as IX.9), and also Insula 2-5, of Reg. V on the north side of Via Nolana were excavated. I do not report on these dwellings until they have been completely excavated, I merely describe some paintings and report on the painted and scratched epigraphs, which have come to light.
![IX.10.1 Pompeii. Insula to the east of Ins 7, Reg. IX.
House with entrance from the 1st doorway on the north side, counting from the north-west, in the cubiculum to the right of the entrance corridor, on white plaster, one could read a graffito in elegant letters.
According to Epigraphik-Datenbank Clauss/Slaby (See www.manfredclauss.de) this read
Moschis Egrotes [CIL IV 5339]
(see also Notizie degli Scavi, 1888, p.522)](9%2010%2001_files/image002.jpg)
IX.10.1 Pompeii. Insula to the east of Ins 7, Reg. IX.
House with entrance from the 1st doorway on the north side, counting from the north-west, in the cubiculum to the right of the entrance corridor, on white plaster, one could read a graffito in elegant letters.
According to Epigraphik-Datenbank Clauss/Slaby (See www.manfredclauss.de) this read
Moschis Egrotes [CIL IV 5339]
See Notizie
degli Scavi di Antichità, 1888, p.522.
![IX.10.1 Pompeii. In a room to the left of the entrance corridor, scratched deeply on red plaster -
According to Epigraphik-Datenbank Clauss/Slaby (See www.manfredclauss.de) this read
AB vib / "GR" [CIL IV 5340]
See Notizie degli Scavi, 1891, (p.266, no. II.)](9%2010%2001_files/image003.jpg)
IX.10.1 Pompeii. In a room to the left of the entrance corridor, scratched deeply on red plaster -
According to Epigraphik-Datenbank Clauss/Slaby (See www.manfredclauss.de) this read
AB vib / "GR" [CIL IV 5340]
See Notizie degli Scavi di Antichità, 1891, (p.266, no. II.)
New excavations were commenced in 2023 as part of works to rectify and resolve hydrological and conservation problems in excavations.
Based on building techniques (block work and frame work), altered in several parts by ancient and modern consolidation interventions and reconstruction, the buildings could have been built as early as the 3rd century BC. and subsequently restructured by modifying the distributive structure of the original environments of the Samnite age. The atrium houses of the 3rd century BC were already transformed during the 1st century AD. into workshops for production activities, with the installation of a bakery in the western sector of IX.10.1, and a laundry in the atrium of IX.10.2.

IX.10.1 Pompeii. Plan of excavations as of December 2023.
Photograph © Parco Archeologico di Pompei.
See Pompeii E-Journal 08, 08.12.2023, p. 86, fig. 1. Download: PAP e-journals 2023 collection volumes 01-09

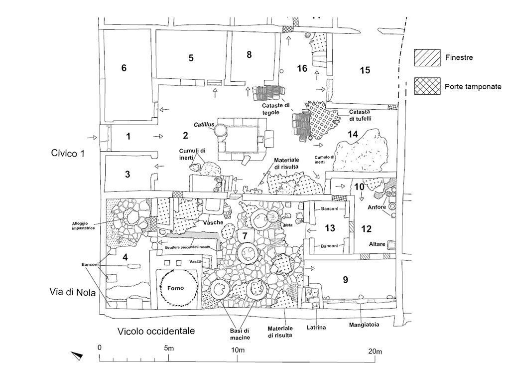
IX.10.1 Pompeii. September 2023. Plan showing excavation of IX.10.1 to date.
1: Fauces
2: Atrium
2A: Space partitioned off in north-west corner of atrium
3: Cubiculum
4: Room for bread making
5: Cubiculum
6: Oecus
7: Bakery
7A: Oven
8: Cubiculum
9: Room used as a stable for animals
10: Corridor
11: not shown
12: Lararium
13: Room used for the deposit and storage of grain sacks
14: Tablinum
15: Room in south-east corner
16: Ala
See Pompeii
E-Journal 06 28.09.2023, p. 61, fig. 1. Download: PAP e-journals 2023 collection volumes 01-09
Photograph ©
Parco Archeologico di Pompei.

IX.10.1 Pompeii. June 2023. View looking west across the house excavations.
The partially visible structures already
suggested the presence of a large atrium with the canonical succession of rooms
on the eastern side and, on the opposite side, the entrance to the production
sector of the oven. The
atrium was freed from the resulting material of the nineteenth-century
excavations revealing the collapse of the compluvium roof within the layer of
white pumice and a residual portion of the volcanic layers from flow
(cinerites) in the southern sector. This sector still partially encumbered by the collapses preserves
the frescoed tablinum (14) which occupies the entire slope with, in the
south-west corner, an access corridor to a still unexplored sector. The removal of volcanic ashes has
revealed in this point the surviving presence of a frescoed panel with a black
background with a still life.
IX.10.1
Pompeii. Giugno 2023. Vista ovest attraverso gli scavi della casa.
Le strutture
parzialmente a vista facevano già supporre la presenza di un ampio atrio con la
canonica successione degli ambienti sul lato orientale e, sul lato opposto,
l’ingresso al settore produttivo del forno. L’atrio è stato liberato dal
materiale di risulta degli scavi ottocenteschi rivelando il crollo delle
coperture compluviate all’interno dello strato di pomici bianche e una porzione
residuale degli strati vulcanici da flusso (cineriti) nel settore meridionale.
Questo settore ancora in parte ingombro dai crolli conserva il tablino
affrescato (14) che occupa l’intero versante con, nell’angolo sud-ovest, un
corridoio di accesso ad un settore ancora non esplorato. La rimozione delle
ceneri vulcaniche ha rivelato in questo punto la presenza superstite di un
pannello affrescato a fondo nero con natura morta.
Photograph ©
Parco Archeologico di Pompei.
Vedi/See Una
natura morta con xenia dallo scavo della casa IX 10,1 a Pompei. E-journal 3,
Scavi di Pompeii, 27.6.2023, p. 2-3. E-journal on PAP web site

IX.10.1 Pompeii. September 2023. Tablinum 14. South wall. Painting
of Achilles on Skyros.
IX.10.1
Pompei. Settembre 2023. Tablino 14. Parete sud. Quadro con Achille a Sciro.
See PAP e-journal 3, 24.03.2024, p. 5-6, fig. 12. Download: PAP E-Journal 03
25.03.2024
Photograph ©
Parco Archeologico di Pompei.

IX.10.1 Pompeii. September 2023. Tablinum 14. West wall.
Remains of a reconstructed painting of “Selene and Endymion”.
IX.10.1
Pompei. Settembre 2023. Tablino 14. Parete ovest. Resta di un quadro
ricostruito con “Selene ed Endimione”.
See PAP e-journal 3, 25.03.2024, p. 5-6, fig. 13. Download: PAP E-Journal 03
25.03.2024
Photograph ©
Parco Archeologico di Pompei.

IX.10.1 Pompeii. May 2023. Plan showing excavations underway in rooms 4, 7 and oven 7a.
The ongoing excavation activities are
currently involving the north-western sector of the insula (house number 1), in
particular rooms 4, 7 and oven 7a, delimited by the northern front of via di
Nola and the vicolo to the west of the insula. The partially visible structures
already suggested the presence of a production plant with an oven, a hypothesis
that was confirmed when the soil accumulated after the investigations carried
out in the 19th century was removed. The latter, having concentrated not only on
the living quarters at number 2 but also on the rooms facing via di Nola, had
in fact involved our three rooms, fortunately without reaching the floor level
everywhere.
IX.10.1
Pompei. Maggio 2023. Planimetria degli scavi in corso nell’ambiente 4, 7 e il
forno 7a.
Le attività di
scavo in corso stanno interessando il settore nord-ovest dell’isolato (civico
1), in particolare gli ambienti 4, 7 e il forno 7a,
delimitati dal fronte settentrionale di via di Nola e dal vicolo ad ovest
dell’insula. Le strutture parzialmente a vista facevano già supporre la
presenza di un impianto produttivo con forno, ipotesi che ha trovato conferma
allorché si è proceduto alla rimozione dell’interro, costituito dal terreno
accumulatosi successivamente alle attività d’indagine condotte nell’Ottocento;
queste ultime, essendosi concentrate oltre che sull’unità abitativa al civico 2
anche sui vani prospicienti via di Nola, avevano, infatti, interessato i nostri
tre ambienti, fortunatamente senza giungere ovunque alla quota pavimentale.
Photograph ©
Parco Archeologico di Pompei.
Vedi/See Ri-scavare Pompei: nuovi dati interdisciplinari dagli ambienti indagate a fine ‘800 di Regio IX, 10.1.4. E-journal 2, Scavi di Pompeii, 29.5.2023, p. 3, Fig 1. E-journal on PAP web site

Via di Nola. Pompeii. May 2024. Looking east towards IX.10.1. Photo courtesy of Klaus Heese.

Via di Nola. Pompeii. May 2024. Looking east on south side at IX.10.1 and 2. Photo courtesy of Klaus Heese.

IX.10.1 Pompeii. July 2011.
Front wall and bread making room 4 on Via di Nola and side wall on unnamed vicolo between IX.10 and IX.9. Photo courtesy of Rick Bauer.

IX.10.1 Pompeii. May 2010. Wall of front façade on Via di Nola, with cubiculum 3 and breadmaking room 4 on west side of entrance.

IX.10.1 Pompeii. May 2010. Entrance doorway 1, looking south.
Access to No. 1 was blocked by a modern wall, built at the bottom of the entrance to contain the embankment behind it. From the street level of Via di Nola, the height of the excavation front gradually increased by approximately 5 m up to the plateau that encompasses almost the entire insula. At no. 2 is the atrium house, which at the time of the resumption of the investigations had the floors of the rooms covered by a layer of soil slipped from the embankment.
L’accesso al
civico 1 era inibito da un muro moderno, costruito sul fondo dell’ingresso per
contenere il terrapieno retrostante. Dal piano stradale di via di Nola, la
quota del fronte di scavo aumentava progressivamente di circa 5 m fino al
pianoro che ingloba la quasi totalità dell’insula. Al civico 2 si sviluppa la
Casa ad atrio che al momento della ripresa delle indagini presentava i piani di
calpestio degli ambienti coperti da uno strato di terreno scivolato dal
terrapieno.
Vedi/See Ri-scavare Pompei: nuovi dati interdisciplinari dagli ambienti indagate a
fine ‘800 di Regio IX, 10.1.4. E-journal 2, Scavi di Pompeii, 29.5.2023,
p. 2-3. E-journal
on PAP web site

IX.10.1 Pompeii. May 2005. Entrance, looking south.

IX.10.1 Pompeii. May 2010.
Looking down from above onto Via di Nola. Room 6, entrance fauces 1, rooms 3 and 4 and oven 7a are partly visible.

IX.10.1 Pompeii. May 2010.
Entrance fauces 1, cubiculum 3 and bread making room 4 and oven 7a are partly visible on the left of the Via di Nola. Photo courtesy of Rick Bauer.

IX.10.1 Pompeii. May 2010.
Looking down from above onto Via di Nola. Rooms 3 and 4 and oven 7a are partly visible. Photo courtesy of Rick Bauer.

IX.10.1 Pompeii. May 2010.
Looking down onto Via di Nola. Oecus 6, entrance fauces 1, rooms 3 and 4 and oven 7a are partly visible.

IX.10.1 Pompeii. May 2010. Entrance fauces 1 and cubiculum 3 on the west of it. Looking north to Via di Nola.

IX.10.1 Pompeii. May 2010. Remains of west wall of cubiculum 3 near the entrance.

IX.10.1 Pompeii. March 2009. Entrance fauces 1, with oecus 6 on left, looking south from Via di Nola.

IX.10.1 Pompeii. May 2010. Room 6, oecus, on east side of entrance.

IX.10.1 Pompeii. May 2010. Looking south-west across room 4 and oven 7a in bakery room 7, on the west side of the entrance.

IX.10.1 Pompeii. Floor of bread making room 4.
Starting from the north, we come to room 4, rectangular in shape, divided into two zones: the western one with an opus signinum floor on which masonry elements rest which probably supported tables or cupboards for working bread dough; the eastern one with a paved floor probably intended for grinding grain. A deposit of pumice 0.4 m thick rested on the floor level.
Partendo da
nord s’incontra l’ambiente 4, di forma rettangolare, diviso in due zone: quella
occidentale con pavimento in cocciopesto su cui poggiano elementi in muratura
che sostenevano, probabilmente, tavolati o madie per la lavorazione
dell’impasto del pane; quello orientale con pavimento basolato verosimilmente
destinato alla macinazione delle granaglie. Sul piano pavimentale poggiava un
deposito di pomici spesso 0.4 m.
Photograph ©
Parco Archeologico di Pompei.
Vedi/See Ri-scavare Pompei: nuovi dati interdisciplinari dagli
ambienti indagate a fine ‘800 di Regio IX, 10.1.4. E-journal 2, Scavi di
Pompeii, 29.5.2023, p. 3, fig. 2. E-journal on PAP web site

IX.10.1 Pompeii. May 2023. Room 4. Skeletons of individual 1 (left) and individual 2 (right) on the paved floor.
A circular cut around which the paving stones are arranged, suggests the presence of an original millstone removed in modern times.
IX.10.1
Pompei. Maggio 2023. Camera 4. Scheletri dell'individuo 1 (a sinistra) e
dell'individuo 2 (a destra) sulla pavimentazione.
Un taglio
circolare attorno al quale sono disposte le pietre, suggerisce la presenza di
una macina originale rimossa in tempi moderni.
Photograph ©
Parco Archeologico di Pompei.
Vedi/See Ri-scavare Pompei: nuovi dati interdisciplinari dagli ambienti indagate a
fine ‘800 di Regio IX, 10.1.4. E-journal 2, Scavi di Pompeii, 29.5.2023,
p. 7ff, fig. 9. E-journal
on PAP web site

IX.10.1 Pompeii. May 2023. Skeleton of individual 1 with collapsed material covering some parts.
Individual 1, probably female, lay in
dorsal recumbency in direct contact with the paved floor. The skeletonized body
was in direct contact with the heavy blocks of the collapsed floor and white
pumice lapilli, in the total absence of the ash deposit, probably removed in
the previous excavation operations. Four large blocks in particular seem to have had a direct impact
on the body, at the level of the skull/cervical spine, right ribcage, left
upper limb and right lower limb. The skull was turned to the right side while
the spine and ribcage were flattened to less than 2 cm in some points. Near the left hand, in which they were
probably held and from which they slipped, two coins were found, probably two
asses, whose minting is yet to be precisely identified. It is clear how these indicators,
together with the very numerous fractures at the level of almost all of the
skeletal elements, are the consequence of the strong traumas on the body of the
individual at the time of death, but also of the taphonomic
factors which occurred subsequently due to the pressure exerted by the
different weights of the overlying
elements, together with the irregular profile of the floor level.
IX.10.1
Pompei. Maggio 2023. Scheletro dell'individuo 1 con materiale collassato che
copre alcune parti.
L’individuo 1, di
probabile sesso femminile, giaceva in decubito dorsale a diretto contatto con
la pavimentazione basolata. Il corpo scheletrizzato
era a diretto contatto con i pesanti blocchi del solaio collassato e lapilli
pomicei bianchi, in totale assenza del deposito cineritico, verosimilmente
asportato nelle operazioni di scavo precedenti. Quattro grandi blocchi in particolare
sembrano avere avuto un impatto diretto con il corpo, a livello di
cranio/rachide cervicale, emicostato destro, arto
superiore sinistri e arto inferiore destro. Il cranio era voltato sul lato
destro mentre la colonna e la cassa toracica, erano appiattiti fino a misurare
in alcuni punti meno di 2 cm. Vicino alla mano sinistra, in cui erano
probabilmente trattenute e da cui sono scivolate, sono state rinvenute due
monete, verosimilmente due assi, il cui conio è ancora da identificare con
precisione. È chiaro come tali indicatori, insieme alle numerosissime fratture
a livello della quasi totalità degli elementi scheletrici, siano conseguenza
dei forti traumi sul corpo dell’individuo al momento della morte, ma anche dei
fattori tafonomici intervenuti successivamente a
causa della pressione esercitata dal peso differenziato degli elementi
sovrastanti, unitamente al profilo irregolare del piano pavimentale.
Photograph ©
Parco Archeologico di Pompei.
Vedi/See Ri-scavare Pompei: nuovi dati interdisciplinari dagli ambienti indagate a
fine ‘800 di Regio IX, 10.1.4. E-journal 2, Scavi di Pompeii, 29.5.2023,
p. 7-8, fig. 10. E-journal
on PAP web site

IX.10.1 Pompeii. May 2023. Room 4. Individuals 1 and 2 on floor of room.
The remains of the three individuals,
unexpectedly discovered during the removal of the last 40 cm of residual
stratigraphy, were characterized by a series of peculiarities deriving from the
uncommon conditions of death and their positioning.
The second individual, an adult probably
of female sex, lay on the left side, the skull smashed in at the level of the
skull base and embedded in the rib cage, the jaw and face area turned and
pressed against the east wall of the room. The left limb was flexed, the wrist also against the wall. The right upper limb was below the body,
with the forearm covered by the pelvic girdle. In the latter, a rotation was clearly detectable which led to the
crossing of the two femurs, to the positioning of the area in the prone
position and to the dislocation of the right femur.
The third individual is represented, due
to the causes already described in the previous contributions, by a few bone
fragments pertaining to an infant individual of about 3-4 years of age. The
presence of some connected metatarsals suggest that the individual's death
occurred near the south-east corner of the room.
IX.10.1
Pompeii. Maggio 2023. Ambiente 4. Individui 1 e 2 sul piano della camera.
I resti dei
tre individui, rinvenuti inaspettatamente durante la rimozione degli ultimi 40
cm di stratigrafia residua erano caratterizzati da una serie di peculiarità
derivanti dalle non comuni condizioni di morte e poi di giacitura.
Il secondo
individuo, un adulto di probabile sesso femminile, giaceva sul fianco sinistro,
il cranio sfondato a livello della base cranica e incassato nella gabbia
toracica, il distretto maxillo-facciale rivolto e pressato contro il muro est
dell’ambiente. L’arto sinistro era flesso, il polso anch’esso contro al muro.
L’arto superiore destro era al di sotto del corpo, con l’avambraccio coperto
dal cinto pelvico. In quest’ultimo era chiaramente rilevabile una rotazione che
ha portato all’incrocio dei due femori, al posizionamento del distretto in
posizione prona e alla dislocazione del femore.
Il terzo
individuo è rappresentato, per le cause già descritte nei precedenti
contributi, da pochi frammenti ossei pertinenti a un individuo infantile di
circa 3-4 anni. La presenza di alcuni metatarsali in connessione suggeriscono
che la morte dell’individuo sia avvenuta in prossimità dell’angolo sud-est
dell’ambiente.
Photograph ©
Parco Archeologico di Pompei.
Vedi/See Ri-scavare Pompei: nuovi dati interdisciplinari dagli
ambienti indagate a fine ‘800 di Regio IX, 10.1.4. E-journal 2, Scavi di
Pompeii, 29.5.2023, p. 7ff, fig. 9. E-journal on PAP web site

IX.10.1 Pompeii. May 2010. Bread making room 4, looking south with door to bakery room 7 and oven 7a.

IX.10.1 Pompeii. May 2010. Room 4 south wall and north side of oven 7a with door to bakery room 7.

IX.10.1 Pompeii. May 2010. Bread making room 4, south-west corner.

IX.10.1 Pompeii. May 2010. Room 4, west wall, with remains of plaster on wall.

IX.10.1 Pompeii. May 2023. Room 7 and oven 7a. Looking west to the oven.
Photograph ©
Parco Archeologico di Pompei.

IX.10.1 Pompeii. December 2023. Oven 7a. Looking west to the oven front.
The partially visible structures already suggested the presence of a production facility with an oven, a hypothesis that was confirmed when the burying material was removed.
Along the north wall of oven 7a, a rectangular basin (ca. 1.50 x 0.80 m) was uncovered, the bottom of which has not yet been reached.
A significant feature of room 7 is the presence of two circular masonry structures, not entirely visible at present, on which the circular cones of two millstones must originally have rested, cones that are, however, not present on the bases. The condition of the excavation, which is still in progress, leads one to be cautious; however, it is legitimate to ask whether the absence of the millstones is attributable to removals that occurred during the 19th-century excavations.
IX.10.1
Pompei. Maggio 2023. Forno 7a. Vista verso ovest sul
fronte del forno.
Le strutture
parzialmente a vista facevano già supporre la presenza di un impianto
produttivo con forno, ipotesi che ha trovato conferma allorché si è proceduto
alla rimozione dell’interro.
Lungo la
parete nord del vano 7a si è messa in luce una vasca rettangolare (1.50 x 0.80
m ca.) di cui ancora non si è raggiunto il fondo.
Elemento
significativo di ambiente 7 è la presenza di due
strutture circolari in muratura, attualmente non del tutto visibili, su cui, in
origine, dovevano poggiare le mete circolari di due macine, mete che però non
sono presenti sulle basi. La condizione dello scavo ancora in fieri induce ad
essere cauti, ad ogni modo è lecito domandarsi se la mancanza delle macine sia
imputabile ad asportazioni avvenute durante gli scavi ottocenteschi.
Photograph ©
Parco Archeologico di Pompei.
Vedi/See Ri-scavare Pompei: nuovi dati interdisciplinari dagli
ambienti indagate a fine ‘800 di Regio IX, 10.1.4. E-journal 2, Scavi di
Pompeii, 29.5.2023, p. 4, fig. 3. E-journal on PAP web site

IX.10.1 Pompeii. December 2023. Bakery room 7.
The bakery is ascribed to a
building phase, which we are led to place in the post-seismic period of 62 AD on the basis of the wall evidence.
When creating the production
plant, care was taken to supply drinking water via a pipe that originates from
the nearby water tower located at the north-east corner of IX.10, reaches the
house at number 2 where the laundry is located, runs diagonally across the
house at number 1 and finally flows into a rectangular basin in room (7).
Photograph ©
Parco Archeologico di Pompei.
See Pompeii E-Journal 08, 08.12.2023, p. 87, figg. 2 and 3. Download: PAP e-journals 2023 collection volumes 01-09

IX.10.1 Pompeii. December 2023. Millstone with indentations in paving slabs around it.
According to PAP Director Gabriel Zuchtriegel, this was a bakery-prison, where enslaved workers and donkeys were confined and exploited to grind the grain needed to make bread. A cramped room with no view of the outside world and with small windows high in the wall with iron bars to let the light in. In the floor indentations to coordinate the movement of the animals, forced to walk around for hours, blindfolded. In the floor are indentations to coordinate the movement of donkeys and enslaved workers
The production area that has been uncovered is devoid of doors and communication with the outside world; the only exit leads into the atrium of the house, not even the stable has direct access to the street.
The area of the millstones, located in the southern part of the central room, is adjacent to the stable, characterised by the presence of a long feeding trough.
A series of semicircular indentations can be seen in the volcanic basalt paving slabs around the millstones. Given the robust durability of the material, it is likely that what at first glance might appear to be "footprints" are actually deliberate carvings made to prevent draught animals from slipping on the pavement and simultaneously tracing a path, thus forming a "circular furrow" (curva canalis) as Apuleius describes it.
Iconographic and literary sources, particularly the reliefs from the tomb of Eurysaces in Rome, suggest that a millstone was usually moved by a couple consisting of a donkey and a slave. The latter, in addition to pushing the grindstone, had the task of inciting the animal and monitoring the grinding process, adding grain, and collecting the flour.
The wear on the various indentations can be attributed to the endless cycles, always the same, carried out according to the pattern laid out in the pavement.
Photograph ©
Parco Archeologico di Pompei.
See PAP E-Journal-8.

IX.10.1 Pompeii. May 2010. Bakery room 7 and oven 7a. Looking west at the oven.

IX.10.1 Pompeii. May 2010. Bakery room 7, looking north-west from near the oven 7a.
Looking towards the Via di Nola across the remains of bread making room 4 on the west side of the entrance.

IX.10.1, Pompeii. July 2024. Atrium 2, painting on west wall. Photo courtesy of Johannes Eber.

IX.10.1, Pompeii. July 2024.
Atrium 2, detail of still-life in the centre of a black panel on the west wall. Photo courtesy of Johannes Eber.

IX.10.1 Pompeii. June 2023. Atrium 2 west wall during initial
excavation.
IX.10.1 Pompei. Giugno 2023.
Atrio 2 parete ovest durante lo scavo iniziale.
Photograph © Parco
Archeologico di Pompei.

IX.10.1 Pompeii. June 2023. Atrium 2 west wall. Still life on black
panel with carpet border.
IX.10.1 Pompei. Giugno 2023. Atrio
2 parete ovest. Natura morta su pannello nero racchiuso da una bordura di
tappeto.
Photograph © Parco
Archeologico di Pompei.

IX.10.1 Pompeii. June 2023. Atrium 2 west wall. Further excavation
showing bordered panel.
IX.10.1 Pompei. Giugno 2023.
Atrio 2 parete ovest. Ulteriore scavo che mostra pannello bordato.
Photograph courtesy of Davide Peluso.

IX.10.1 Pompeii. June 2023.
Atrium 2 west wall. Geometric decoration and garlanded ox skull to south
of the still life.
IX.10.1 Pompei. Giugno 2023.
Atrio 2 parete ovest. Decorazione geometrica e bucranio inghirlandato a sud della natura
morta.
Photograph © Parco
Archeologico di Pompei.

IX.10.1 Pompeii. June 2023.
Atrium 2 west wall with still life in the centre of a panel with a black
background enclosed by a carpet border and with a geometric panel.
IX.10.1 Pompei. Giugno 2023.
Atrio 2 parete ovest con natura morta al centro
di un pannello a fondo nero racchiuso da una bordura di tappeto e con uno
pannello geometrico.
Photograph courtesy of Davide Peluso.

IX.10.1 Pompeii. June 2023. Atrium 2 west wall. Still life.
The composition, created in a free field in the centre of a panel with a
black background enclosed by a carpet border, is structured on two perspective
planes rendered by shelves. On the upper shelf rests a large silver tray with
movable handles containing a cantharus of the same material, filled with
wine, and various dried and seasonal fruits. Part of these fruits are painted
above a brown element (perhaps a basket or, more likely, a focaccia) which
occupies the entire left portion of the tray. The lower shelf rendered in
perspective evokes a wooden canteen on which hangs a band hanging from the
fruits of the composition.
IX.10.1 Pompei. Giugno 2023.
Atrio 2 parete ovest. Natura morta.
La composizione, realizzata in
campo libero al centro di un pannello a fondo nero racchiuso da una bordura di
tappeto, è strutturata su due piani prospettici resi da mensole. Sulla mensola
superiore è poggiato un grande vassoio in argento ad anse mobili contenente un cantharus dello stesso materiale,
ricolmo di vino, e diversi frutti secchi e di stagione. Parte di questi frutti
sono dipinti al di sopra di un elemento di colore bruno (forse una cesta o, più
probabilmente, una focaccia) che occupa l’intera porzione sinistra del vassoio.
La mensola inferiore resa in prospettiva rievoca una mensa in legno su cui
ricade una benda pendente dai frutti della composizione.
Photograph © Parco
Archeologico di Pompei.
Vedi/See Una natura morta
con xenia dallo scavo della casa IX 10,1 a Pompei. E-journal 3, Scavi di
Pompeii, 27.6.2023, p. 2, fig. 2. E-journal on PAP web site

IX.10.1 Pompeii. June 2023. Atrium 2 west wall. It looks like a pizza?
Whilst it looks like a pizza, this image from a Pompeian painting from
2000 years ago obviously can't be, since some of the most characteristic
ingredients are missing, namely tomatoes and mozzarella. However, it could be a
distant ancestor of the modern dish, elevated to the status of a World Heritage
element in 2017 as the "traditional art of the Neapolitan pizza chef'.
As the archaeologists of the Archaeological Park of Pompeii explain, it
is possible to suppose that next to a wine cup placed on a silver tray, there
is depicted a flat focaccia that functions as a support for various fruits,
(that can be identified as pomegranate, and maybe a date), with spices and
perhaps with a type of pesto, (moretum in Latin) as
indicated by yellow and ochre dots, possibly condiments. Moreover, on the same
tray, dried fruits and a garland of yellow strawberry tree are present next to
the dates and pomegranates.
See PAP: Pompeii: a still life
discovered by the new excavations of Regio IX
IX.10.1 Pompei. Giugno 2023.
Atrio 2 parete ovest. Sembra una pizza?
Sembra una pizza, quello che
si vede su un dipinto pompeiano di 2000 anni fa, ma ovviamente non lo può
essere, a rigore, dato che mancavano alcuni degli ingredienti più
caratteristici, ovvero pomodori e mozzarella. Tuttavia
potrebbe essere un lontano antenato della pietanza moderna, elevata a
patrimonio dell'umanità nel 2017 in quanto "arte tradizionale del pizzaiuolo napoletano'.
Come spiegano gli archeologi
del Parco Archeologico di Pompei, si suppone che accanto a un calice di vino,
posato su un vassoio di argento, sia raffigurata una focaccia di forma piatta
che funge da supporto per frutti vari (individuabili un melograno e forse un
dattero), condita con spezie o forse piuttosto con un tipo di pesto (moretum in latino), indicato da
puntini color giallastro e ocra. Inoltre, presenti sullo stesso vassoio, frutta
secca e una ghirlanda di corbezzoli gialli, accanto a datteri e melograni.
Photograph courtesy of Davide Peluso.
Vedi PAP: Pompei: emerge una natura morta dai nuovi scavi della Regio IX

IX.10.1 Pompeii. June 2023. Atrium 2 west wall. Fresco of offering tray.
We have here both the theme of the sacred offering and that of
hospitality, albeit indirectly, since eating the frugal meal is a sign of
having finally found a hospitable land for the Trojan fugitives.
IX.10.1 Pompei. Giugno 2023.
Atrio 2 parete ovest. Affresco del vassoio delle offerte.
Abbiamo qui sia il tema
dell’offerta sacra, sia quello dell’ospitalità, seppure in maniera indiretta,
dal momento che il mangiare il pasto frugale è segno di aver finalmente trovato
una terra ospitale per i fuggitivi troiani.
Photograph © Parco
Archeologico di Pompei.
Vedi/See Una natura morta
con xenia dallo scavo della casa IX 10,1 a Pompei. E-journal 3, Scavi di
Pompeii, 27.6.2023, p. 6, fig. 2. E-journal on PAP web site

IX.10.1 Pompeii. May 2023. Cubiculum 5. South wall. Fresco of Poseidon and Amymone with medallion.
In the atrium house with adjoining oven, two frescoed cubicula, depicting scenes from myths have emerged: Poseidon and Amymone in the first and Apollo and Daphne in the second. In the first of the two rooms, there are traces of charred furniture due to a fire that broke out during the catastrophe.
IX.10.1 Pompei. Maggio 2023. Cubiculum 5. Parete sud. Affresco di
Poseidone e Amimone con medaglione.
Nell'atrio
dell'abitazione con forno annesso, sono riemersi due cubicoli affrescati con
scene del mito: Poseidone e Amimone nel primo, Apollo e Dafne nel secondo. Nel
primo dei due ambienti si conservano le tracce del mobilio carbonizzato a causa
di un incendio che si sviluppò durante la catastrofe.
Photograph ©
Parco Archeologico di Pompei.
Vedi/See PAP
: Nuovi scavi della
Regio IX

IX.10.1 Pompeii. May 2023. Cubiculum 5. South wall. Medallion to west of fresco of Poseidon and Amymone.
IX.10.1 Pompei. Maggio 2023. Cubiculum 5. Parete sud. Medaglione a ovest
dell’affresco di Poseidone e Amimone.
Photograph ©
Parco Archeologico di Pompei.
Vedi/See PAP: Nuovi scavi
della Regio IX

IX.10.1 Pompeii. May 2023. Cubiculum 5. South wall. Fresco of Poseidon and Amymone and medallion.
IX.10.1 Pompei. Maggio
2023. Cubiculum 5. Parete sud. Affresco di Poseidone e Amimone e medaglione.
Photograph © Parco Archeologico di Pompei.
Vedi/See PAP: Nuovi scavi
della Regio IX

IX.10.1 Pompeii. May 2023. Cubiculum 5. South wall. Fresco of Poseidon and Amymone.
IX.10.1 Pompei. Maggio
2023. Cubiculum 5. Parete sud. Affresco di Poseidone e Amimone.
Photograph © Parco Archeologico di Pompei.
Vedi/See PAP
: Nuovi scavi della
Regio IX
Room 5 has a clay-based cement floor
decorated with limestone flakes, while the walls show a 4th style decoration
that is only partially preserved, as the north, east and west walls lack the
middle and upper sections. The
zoccolo has a low black podium distinguished, by a white band, from the zoccolo,
equally with a black background, with rectangular panels adorned with vegetal
motifs interspersed with carpet edges. Between the panels, narrow compartments framed by green bands
alternate between white bands decorated with figures. The central area, structured in panels interspersed with
compartments with perspective backgrounds, also features carpet border motifs. In the centre of the southern wall is a
painting depicting the myth of Poseidon and Amymone.

IX.10.1 Pompeii. May 2023. Cubiculum 8. North wall. Fresco of Apollo and Daphne.
IX.10.1 Pompei. Maggio 2023. Cubiculum 8. Parete nord. Affresco di Apollo
e Dafne.
Photograph ©
Parco Archeologico di Pompei.
Vedi/See PAP: Nuovi scavi
della Regio IX

IX.10.1 Pompeii. May 2023. Cubiculum 8. North wall. Fresco of Apollo and Daphne.
IX.10.1 Pompei. Maggio 2023. Cubiculum 8. Parete nord. Affresco di Apollo
e Dafne.
Photograph ©
Parco Archeologico di Pompei.

IX.10.1 Pompeii.
May 2023. Cubiculum 8.
IX.10.1 Pompei. Maggio 2023. Cubiculum 8
Photograph ©
Parco Archeologico di Pompei.
Room 8 has a clay-based cement floor
decorated with limestone flakes, and 4th style walls. The zoccolo shows a fake marble decoration with mirrors on a
yellow background, framed by bands where reds and blacks predominate which seem
to recall African marble. A
red border distinguishes the zoccolo from a low podium adorned with alternating
black and white diagonal bands, which, in a schematic and stylized way, imitate
a marble covering. The
median area, with a white background, is divided into a grid through thin
yellow shoots; at the
junction points of the shoots, squares in grey and rounds in amaranth
alternate, the former decorated with animals, both herbivorous and carnivorous,
gradients or rampant towards the right, the latter decorated with rosettes,
cupids or other figures in flight. At the centre of each square created by the grid is a round
amaranth often surrounded by a crown of petals and framed by a stylized yellow
vegetal circle towards which four palmettes turn. On the north wall, off-centre and overpainted, there is a painting
which presents the myth of Apollo and Daphne.
See Pompeii E-Journal 06 28.09.2023, p. 62, fig. 5. Download: PAP e-journals 2023 collection volumes 01-09

IX.10.1 Pompeii. December 2023. Room 9.
Stable room 9 is a rectangular-shaped space characterised along the western side by a masonry structure with a trough used as a manger.
The plain earthen floor in the area facing the manger revealed three post holes that must have supported a wooden structure, perhaps already disused at the time of the renovation site.
Photograph ©
Parco Archeologico di Pompei.
See Pompeii E-Journal 08, 08.12.2023, p. 88, fig. 5. Download: PAP e-journals 2023 collection volumes 01-09

IX.10.1 Pompeii. Plan of excavations as at December 2023.
Photograph ©
Parco Archeologico di Pompei.
Between the access opening to the stable (9) and the perimeter wall of the room (7) there is a latrine, directly connected to the sewers located along the western alley. The narrow space, which could be accessed by means of two steps, opens towards room (7), but is formed from the space of the stable room (9).
The room (13), probably used for the deposit and storage of sacks, was accessible from room (7), and is characterised by the presence, along the short sides (west and east), of pairs of bases in masonry bases intended to support wooden counters.
See Pompeii E-Journal 08, 08.12.2023, p. 88, p. 86, fig.
1. Download: PAP e-journals 2023 collection volumes 01-09

IX.10.1 Pompeii. Lararium and altar recently found in room 12. September 2023 plan showing location of altar.
Room 12 of House IX, 10, 1, located to the southwest of the atrium, is accessible through a narrow corridor (10) that originally led to a now blocked doorway into the southern sector of the house. The extensive restoration and redistribution of the rooms of the dwelling and the internal routes to reach the individual functional sectors of the dwelling also affected this small rectangular space, possibly open at the time of the eruption, in which three windows open on the north and west walls to illuminate the adjoining rooms (13 and 9). Standing on the south wall is a large lararium found in an excellent state of preservation and with the burnt remains of the last offerings still in place (see below).
Planimetria
dopo i recenti scavi del 2023 che mostra la posizione dell'altare nella sala
12.
L’ambiente 12
della casa IX, 10, 1, posto a sud ovest dell’atrio, è accessibile da uno
stretto corridoio (10) che in origine conduceva ad una porta tamponata, che
immetteva nel settore meridionale della casa. I consistenti lavori di restauro
e ridistribuzione degli ambienti della dimora e dei percorsi interni per
raggiungere i singoli settori funzionali della stessa hanno interessato anche
questo piccolo spazio rettangolare, forse a cielo aperto al momento
dell’eruzione, in cui si aprono sulle pareti nord ed ovest tre finestre per
illuminare gli ambienti attigui (13 e 9). A campeggiare sulla parete sud è un
grande larario ritrovato in ottimo stato di conservazione e con i resti
combusti delle ultime offerte ancora al loro posto (cfr. infra).
See PAP e-journal 6, 28.09.2023, p. 61, fig. 1. Download: PAP e-journals 2023 collection
volumes 01-09
Photograph ©
Parco Archeologico di Pompei.

IX.10.1 Pompeii. July 2024. Room 12, looking west along south wall towards altar. Photo courtesy of Johannes Eber.

IX.10.1 Pompeii. September 2023. Lararium and altar found on
south wall of room 12.
The lararium is structured on two superimposed registers
with an upper register decorated with stucco and a lower register decorated
with frescoes.
Fotopiano
della parete sud del larario (12).
La
rappresentazione è strutturata su due registri sovrapposti con un registro
superiore decorato a stucco ed uno inferiore decorato ad affresco.
See PAP e-journal 6, 28.09.2023, p. 64, fig. 10. Download: PAP e-journals 2023 collection volumes 01-09
Photograph ©
Parco Archeologico di Pompei.

IX.10.1, Pompeii. July 2024. Room 12, detail from east end of south wall. Photo courtesy of Johannes Eber.

IX.10.1, Pompeii. July 2024.
Room 12, altar and lararium at west end of south wall. Photo courtesy of Johannes Eber.

Room 12, detail of stucco serpents from centre of upper south wall. Photo courtesy of Johannes Eber.

The upper register consists of a red
background (1.30 x 2.10 m) surrounded by brown, in which two crested and
bearded snakes are represented in stucco relief, among shrubs.
Serpenti in
stucco dal registro superiore.
Il registro superiore è costituito da una specchiatura a fondo rosso (1,30
x 2,10 m) contornata di bruno, in cui sono rappresentati in rilievo di stucco
due serpenti crestati e barbati, tra arbusti.
See PAP e-journal 6, 28.09.2023, p. 65, fig. 15. Download: PAP e-journals 2023 collection volumes 01-09

The lower register consists of a white background into which the masonry pulvinus altar decorated in fresco with brown faux-marble highlights is inserted. On the left side there is a fresco of a crested and bearded serpent heading towards the altar, which is surmounted by a painted rectangular aedicule terminating in vegetal whorls, and which frames the Genius patris familias with cornucopia and patera making libations at a circular altar.
The partial deterioration of the painted plaster base on which the scenes of the last phase are laid reveals, in a position off-centre from the previous one, a similar scene belonging to an older decorative phase.
Il registro
inferiore è costituito da una specchiatura a fondo bianco (1,55 x 2,20 m) in
cui si inserisce l’altare a pulvino in muratura (0,75 x 0,50 m) decorato ad
affresco con lumeggiature brune a finto marmo. Sulla sinistra è affrescato un
serpente crestato e barbato che si dirige verso l’altare (Fig. 12), sormontato
da un’edicola rettangolare dipinta e terminante in girali vegetali, che
inquadra il Genius patris familias
con cornucopia e patera che compie libagioni presso un altare circolare (Fig.
13). La parziale consunzione della base pittorica a grassello di calce su cui
sono stese le scene di ultima fase lascia intravedere, in posizione decentrata
rispetto alla precedente, una scena simile appartenente ad una fase decorativa
più antica.
See PAP e-journal 6, 28.09.2023, p. 64, fig. 11. Download: PAP e-journals 2023 collection volumes 01-09

IX.10.1 Pompeii. September 2023. Lararium and altar found in room 12.
On the lower left side of the altar, there is a fresco of a crested and bearded serpent heading towards the altar.
Serpente nel
registro inferiore.
Sulla sinistra
è affrescato un serpente crestato e barbato che si dirige verso l’altare.
See PAP e-journal 6, 28.09.2023, p. 65, fig. 12. Download: PAP e-journals 2023 collection volumes 01-09
Photograph ©
Parco Archeologico di Pompei.

IX.10.1, Pompeii. July 2024.
Lararium and altar found in room 12. Photo courtesy of Johannes Eber.
The altar is surmounted by a painted rectangular aedicule terminating in vegetal whorls, and which frames the Genius patris familias with cornucopia and patera making libations at a circular altar.
L’altare è
sormontato da un’edicola rettangolare dipinta e terminante in girali vegetali,
che inquadra il Genius patrisfamilias con cornucopia
e patera che compie libagioni presso un altare circolare.
See PAP e-journal 6, 28.09.2023, p. 65, fig. 14. Download: PAP e-journals 2023 collection volumes 01-09

IX.10.1 Pompeii. September 2023. Lararium and altar recently found in room 12.
The burnt deposit on the altar of the lararium (12).
Il deposito combusto
sull’altare del larario (12).
See PAP e-journal 6, 28.09.2023, p. 67, fig. 17. Download: PAP e-journals 2023 collection volumes 01-09
Photograph ©
Parco Archeologico di Pompei.

IX.10.1 Pompeii. September 2023. Lararium and altar recently found in room 12.
Traces of
combustion on the altar during micro-excavation. Detail of the first level of
the deposit (A); Deposit in section (B).
Tracce di
combustione sull’altare in fase di microscavo.
Dettaglio del primo livello del deposito (A); Sezione del deposito (B).
See PAP e-journal 6, 28.09.2023, p. 67, fig. 18. Download: PAP e-journals 2023 collection volumes 01-09
Photograph ©
Parco Archeologico di Pompei.

IX.10.1 Pompeii. September 2023. Lararium and altar recently found in room 12.
Eggshell fragments from the surface level (A) and the deepest layer (B). There is a greater degree of fragmentation and widespread traces of combustion for the remains coming from the deeper level.
Frammenti di
guscio d’uovo dal livello superficiale (A) e da quello più profondo (B). Si
nota un maggiore grado di frammentazione e diffuse tracce di combustione per i
resti provenienti dal livello più profondo.
See PAP e-journal 6, 28.09.2023, p. 68, fig. 20. Download: PAP e-journals 2023 collection volumes 01-09
Photograph ©
Parco Archeologico di Pompei.

IX.10.1, Pompeii. July 2024.
Room 12, top of altar against south wall. Photo courtesy of Johannes Eber.

IX.10.1, Pompeii. July 2024. Room 12, lararium and altar. Photo courtesy of Johannes Eber.

Room 12, looking towards south-west corner. Photo courtesy of Johannes Eber.

IX.10.1, Pompeii. July 2024. Room 12, detail of electoral recommendation from west wall. Photo courtesy of Johannes Eber.

Fragment of ceiling with painting of a Nilotic scene, on display in an exhibition in the Palaestra entitled –
“L’altra Pompei, vite comuni all’ombra del
Vesuvio”. Photo courtesy of Giuseppe Ciaramella.

Detail of fragment of ceiling with painting showing a wayfarer in a Nilotic scene, on display in an exhibition entitled –
“L’altra Pompei, vite comuni all’ombra del
Vesuvio”. Photo courtesy of Giuseppe Ciaramella.

On display in an exhibition in the Palaestra entitled –
“L’altra Pompei, vite comuni all’ombra del
Vesuvio”. Photo courtesy of Giuseppe Ciaramella.

IX.10.1 Pompeii (Side wall), on left. May 2005. Unnamed vicolo, looking south. IX.9, on right.

IX.10.1 Pompeii (Side wall), on left. May 2005. Unnamed vicolo, looking south. IX.9, on right.

IX.10.1 Pompeii, on left. May 2005. Unnamed vicolo, looking south. IX.9.8, on right.