Part 2: 2012 Excavations
Part 3: 2013 Excavations Part 1
The following material is taken from the 2012 report of the archaeological activites under the auspices of the French School in Rome.
Reproduced by kind permission of Laëtitia Cavassa, Centre
Jean Bérard. See https://cefr.revues.org/881
La campagne de
fouilles a été réalisée avec la collaboration de Guilhem Chapelin (architecte,
Centre Jean-Bérard), Jacques-Adrien Delorme (École d’Architecture Paris-La
Villette), Aline Lacombe (Direction Archéologie de la Ville d'Aix-en-Provence),
Nicola Meluziis (Archéologue indépendant,
Collaborateur du Centre Jean Bérard), Giuseppina Stelo (École Française de Rome).
Les auteurs
remercient la Surintendante de Naples et Pompéi, la Dott.ssa T. E. Cinquantaquattro, la Directrice du site de Pompéi, la
Dott.ssa G. Stefani, les fonctionnaires de secteur la Dott.ssa S. Argenti, le
Dott. F. Galeandro, la Dott.ssa E. Santaniello et le Dott. V.Sabini.
1. En septembre 2012, une première campagne de
fouilles a été lancée dans le cadre du projet « Organisation, gestion et
transformations d’une zone suburbaine : le secteur de la Porte d’Herculanum à
Pompéi, entre espace funéraire et commercial » dirigé par Laëtitia Cavassa,
Nicolas Laubry (Université Paris-Est Créteil/CRHEC)
et Nicolas Monteix (Université de Rouen). Cette campagne a été réalisée dans le
cadre du programme quinquennal de l’École française de Rome (2012-2016) et avec
l’obtention d’une concession de fouilles pluriannuelle (2012-2016) accordée par
le Ministero per i Beni e le attività culturali.
2. La campagne de fouille s’est déroulée du 17
septembre au 5 octobre 2012 dans la boutique n. 29 située sur le long de la via dei Sepolcri, sortant au nord-ouest de la ville de
Pompéi depuis la porte d’Herculanum (fig. 1).

Fig. 1 - Pompéi.
Plan des boutiques situées le long de la via dei sepolcri.
D’après A. Van
der Poel, Corpus Topographicum Pompeianum: The Rica maps of Pompeii, 1983.
3. Cette boutique abritait en 79 de notre ère un
atelier de potier. La question de la production céramique à Pompéi est
récurrente. Nombreuses sont les sources dont nous disposons (fresques,
épigraphie, céramiques…), mais les fours restent un élément fondamental à exploiter.
4. Or, parmi les officines de production connues
sur le site, seules deux structures sont aujourd’hui conservées : l’atelier de
lampes à huile (Reg. I, ins. 20, 3) et le four situé le long de la via dei Sepolcri.
[Cinq fours sont
actuellement connus à Pompéi : un en Reg. VI, ins. 5, 9, un en Reg. VII, ins.
15, 9-10, un en Reg. I, ins. 5, 2, deux le long de la
via dei sepolcri, boutiques n. 29 et n. 30 et un en
Reg. I, ins. 20, 3.]
5. Les travaux de cette année visaient à
éclairer plusieurs points : Déterminer la période de fonctionnement de
l'atelier. Quelle en était la production ? Tenter d'identifier les diverses activités
du potier (trace de tour, présence de bassins de décantation...).
6. Cet atelier est installé dans
l’avant-dernière boutique d’un bâtiment composé de 30 boutiques, précédé d’un
portique long d’environ 86 m [Peña, McCallum 2009, p.
72-73.], construit le long de la via dei Sepolcri, en
façade de la Villa aux colonnes de mosaïques. L'atelier a été découvert et
fouillé entre le 15 octobre et le 11 novembre 1838. Quelques lignes dans le PAH
publié par Giuseppe Fiorelli en 1863 résument les découvertes qui y sont
faites. Sont plus particulièrement mentionnés le four et les céramiques mis au
jour le 15 octobre 1838 : « si è disterrato un forno di terracotta, in dove si
sono rinvenuti trentaquattro pignattini
ad un manico » [Fiorelli, PAH II, 1863, p. 361.].
7. Quelques jours plus
tard, un deuxième four est mis au
jour : « 22 ottobre- Si seguita sempre a travagliare
nella strada dei Sepolcri, e propriamente in seguito della cosi voluta pubblica
locanda, ave nell’ultima bottega si è palesata una fornace per cuocere gli
oggetti di creta, ed in un angolo della medesima si sono raccolte trenta
pignatte di diversa forma e grandezza, e tra esse una col manico lungo ». Ce deuxième four se trouverait dans la
boutique n. 30 et semble avoir été détruit durant les bombardements américains
en septembre 1943 [Garcia y Garcia 2006, p. 163.].
8. Ces quelques informations indiquent la
présence du four et de vases découverts appelés pignattini
dont la traduction peut différer d’une région à l’autre. De même les sources
diffèrent quant à la quantité d’objets retrouvés : on trouve la mention de 34
petites marmites de terre cuite dont une munie d’un long manche… » [Breton
1855, p. 234-235.],
« 382 vases de la
même forme » [NSA 1879, p. 207.], « 34 marmitte e altri vasi » [Annecchino 1977, p.
106.], et « 92 pignatte et pignattini
[Kockel - Weber 1983, p. 79.] ».
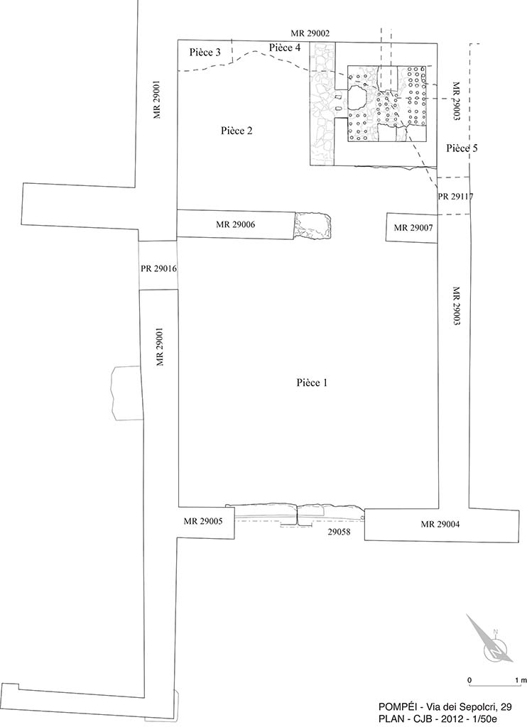
9. La boutique n. 29 mesure 10,32 m de long pour
5,10 m de large. Elle est composée de 2 pièces en rez-de-chaussée et de 3
espaces au premier étage reposant sur une voûte (VT29020) orientée nord-sud. Le
premier niveau est surplombé par une seconde voûte (VT29021) orientée est-ouest
sur laquelle devait reposer le second étage ou une terrasse (fig. 2). [Pour des
raisons pratiques et de sécurité, il n’a pas été possible de fouiller avec
précisions le premier étage. Toutefois, nous avons pu en faire un relevé
topographique nous permettant de préciser les différents plans jusqu’alors
connus. Le premier étage au-dessus de la pièce 2, est composé de 3 « pièces » ou espaces,
délimités par des pointillés sur le plan].

Fig. 2 - Pompéi.
Plan de la boutique n. 29.
G. Chapelin,
J.-A. Delorme, B. Lemaire. View full size image 472kb
10. L’entrée
de la boutique se fait par le sud. Elle est matérialisée par un seuil en
basalte (US 29058) constitué de deux blocs, s’enchâssant légèrement sous les
piédroits et mesurant au moins 2,58 m de longueur et 0,38 m de largeur.
[Pour des raisons
pratiques et afin de faciliter la description des structures, il a été convenu
de prendre un nord théorique. L’axe nord-sud ainsi défini reprend l’orientation
de la boutique, le nord étant représenté par le mur du fond (MR29002).]
11. Plusieurs points ont pu être précisés. Nous
avons tout d’abord pu réaliser un plan détaillé de la boutique et du secteur ;
nous avons également pu déterminer la production exacte réalisée dans cet
atelier et déceler plusieurs phases d’occupation.
12. L’état le plus ancien identifié n’a pas été
atteint dans la totalité de la boutique mais principalement dans la partie est
de la première pièce. Il a été observé grâce aux creusements de fosses modernes
(FS29069 et FS29073) et d’une fosse antique (FS29093) qui viennent recouper
deux niveaux plus anciens (US 29071 et 29072) sur lesquels l’ensemble des
niveaux semblent installés.
13. Ces deux couches n’ont pas encore pu être
fouillées ; il pourrait s’agir d’un aménagement visant à installer un premier
état de sol à l’intérieur de la boutique.
14. Directement installé sur les niveaux de
l’état 1A, un premier sol (SL29062) a été identifié dans la moitié ouest de la
pièce 1, moins perturbée.

Fig. 3 - Pompéi.
L’état 1 de la première pièce.
Photo B. Lemaire. View full size image 1.7mb.
15. Il s’agit d’un niveau gris foncé très compact
présentant de grandes irrégularités. Quelques lambeaux ont été observés sur
cette couche et pourraient correspondre à un niveau de sol plus régulier venant
s’appuyer sur cette première couche ou à une recharge de sol. Une fosse
(FS29112), à l’intérieur de laquelle se trouvait une amphore, fonctionnait
probablement avec ce premier niveau de sol. Le comblement de cette fosse
contenait aussi un grand nombre de fragments de céramique, notamment des ratés
de cuisson provenant très certainement de la production du four de l’atelier
(fig. 4).

Fig. 4 - Pompéi.
Dessin et photo d’un gobelet à paroi fine déformé par la cuisson.
A. Lacombe. View full size image 1.1mb.
16. Au nord de la pièce se trouve un puits
(PT29083), condamné par une pierre de bouchage en tuf jaune, entourée d’un
blocage de pierres diverses. Il semble assez probable que cet état 1B
corresponde à des niveaux ayant fonctionné jusqu’en 62 ap.
J.-C., le bouchage du puits intervenant après le séisme et marquant l’abandon
de son utilisation.
17. Sur ces niveaux d’occupation et lors d’un
second état, on observe des remblais servant à rehausser et niveler la pièce,
dans le but d’installer un nouveau sol (SL29120).
18. Dans le tiers ouest de la pièce se trouve une
succession de couches servant à l’installation d’une structure bâtie (SB29033)
constituée de tegulae et de briques taillées, contemporaine du dernier niveau
de sol. Cet état 2A semble clairement lié aux travaux engendrés par le tremblement
de terre de 62 ou 63.
19. Le dernier état antique, dont le terminus
ante quem est fourni par l’éruption du Vésuve de 79, est représenté par le sol
SL29120.

Fig. 5 - Pompéi.
Plan de la phase 2.
G. Chapelin,
J.-A. Delorme, B. Lemaire. View full size image 384kb.
20. Ce sol très endommagé, probablement lors des
recherches antérieures, n’apparaît que dans l’angle sud-est de la pièce 1. Il
s’agit d’un sol en béton d’environ 0,03 m d’épaisseur, conservé sur 1,49 m
d’est en ouest et 0,72 m du nord au sud.
21. Ce lambeau de sol a sans doute été conservé
grâce à la présence de la base (BS29059) de l’escalier menant au premier étage,
directement installée sur celui-ci.
22. La structure bâtie (SB29033) située dans la
partie ouest de la pièce est un plan de travail rectangulaire aménagé à l’aide
de tegulae retaillées, mesurant 0,98 m d’est en ouest et jusqu’à 2,32 m du nord
au sud (fig. 6).

Fig. 6 - Pompéi.
Photo de la structure bâtie faite de tuiles et briques taillées et du niveau de
lapilli dans la pièce 1.
B. Lemaire. View full size image 1.1mb.
23. L’ensemble
de la structure présente un léger pendage vers l’angle sud-est, dans lequel est
fichée une amphore italique de type Dressel 2/4 retaillée (US 29079). Cette
amphore était en partie remplie de sable noir très fin qui pourrait avoir été
utilisé comme dégraissant [Des prélèvements ont été effectués et pourraient
nous permettre d’en savoir plus sur la fonction de ces éléments et donc de nous
renseigner sur la fonction de son contenant, lié à la structure en tegulae.].
24. Dans l’angle sud-ouest de la structure bâtie
SB29033 et jusque devant le seuil de la boutique, une couche de lapilli gris
(US 29053) s’étendant depuis le mur MR29001 sur environ 3,20 m d’est en ouest
et sur 0,60 à 1 m de largeur a été dégagée. De très nombreux fragments de
céramiques à paroi fine appartenant à des gobelets de forme globulaire à décor
incisé proche du type Mayet XX ou Marabini XLVII y
ont été retrouvés (fig. 7).

Fig. 7 - Pompéi.
Gobelet à paroi fine mis au jour dans le niveau de lapillli
de la pièce 1.
A. Lacombe, G. Stelo. View full size image 400kb.
25. Un examen préliminaire des vases montre que
certains présentent des défauts liés à la cuisson (couleur et aspect de
l’engobe en particulier).
26. Dans la pièce 2, la fouille s’est concentrée
sur les niveaux de 79 de notre ère et sur l’étude du four (FR29008). Il s’agit
d’un four vertical [Par opposition à certains types de fours pour lesquels
l’aire de chauffe et une partie de la structure sont semi-enterrés.], de forme
quadrangulaire, constitué de briques et de tuiles et mesure 2,48 m de long pour
2,41 m de large (fig. 8).

Fig. 8 - Pompéi.
Four FR29008, vu de l’ouest.
Cliché L. Cavassa. View full size image 2.6mb.
27. Il appartient au type IIb de la typologie établie par Françoise Le Ny (four rectangulaire à éperons latéraux) [Le Ny 1988, p. 14-15.] et au type IIb de la typologie établie par Ninina Cuomo di Caprio : fornace con camera di combustione a pianta quadrata a corridoio centrale [Cuomo di Caprio 1971-1972, p. 429-434.].
28. Un sondage a été ouvert au pied du mur sud du
four, dans le but de dater sa construction. Cependant, il n’a pu être
intégralement fouillé cette année et ne nous permet donc pas encore de livrer
de datation.
29. L’espace
de circulation et d’utilisation du four a été localisé dans la pièce 2. Seul le
dernier niveau de fréquentation datant de 79 ap.
J.-C. a été dégagé (SL29031). Il s’agit d’un niveau assez compact, composé d’un
mélange de charbons, cendres et argile.
30. Dans
l’angle sud-ouest de la pièce a été mis au jour un niveau de lapilli assez
compact et en place (US 29029), reposant directement sur le sol de 79 ap. J.-C. Il contenait au minimum quinze vases disposés sur
quatre files. Ces vases sont crus et constituent un témoignage direct de la
production de l’atelier au moment de l’éruption. Il est important de noter
qu’il s’agit d’une découverte inédite à Pompéi.
31. Le
travail du potier se « divise » en diverses étapes. Dans notre cas précis, les
vases mis au jour ont été faits sur un tour. Le décor a été appliqué. Il s’agit
ici de petites incisions faites sur l’argile crue très certainement à l’aide
d’un petit outil pointu. Une fois le décor réalisé, les vases ont dû être «
baignés » dans une solution argileuse constituant l’engobe et qui donne cette
couleur rouge brique aux vases découverts. Une fois l’engobe appliqué, les
vases ont été mis à sécher, en attente d'être ensuite cuits (fig. 9).

Fig. 9 - Pompéi.
Gobelet à paroi fine cru mis au jour dans le niveau de lapilli (US 29029) dans l’angle
sud-ouest de la pièce 2.
Cliché N. Meluziis. View full size image 2.1mb.
32. L’état
de conservation des vases mis au jour nous permet également d’identifier avec
précision la production. Il s’agit de gobelets à paroi fine à décors incisés
munis d’une anse verticale striée que l’on peut attribuer au type Mayet XX ou Marabini XLVII, identiques à ceux trouvés dans la pièce 1.
33. Il
s’agit d’un type assez bien connu et diffusé à Pompéi comme l’a révélé
l’article d’A. Carandini en 1977 [Carandini 1977, p. 26 et fig. VIII, 1-3.].
Annecchino 1977 =
R. Annecchino, Suppellettile fittile da cucina di Pompei, dans L’instrumentum domesticum
di Ercolano e Pompei nella prima età imperiale, Rome, 1977 (Quaderni di cultura
materiale, 1), p. 106.
Breton 1855 = A.
Breton, Pompeia décrite et dessinée par Ernest Breton (...) suivie d'une Notice
sur Herculanum, Paris, 1855, p. 234-235.
Carandini 1977 =
A. Carandini, La ceramica a pareti
sottili di Pompei e del Museo nazionale di Napoli, dans L’instrumentum
domesticum di Ercolano e Pompei nella prima età imperiale, Rome, 1977 (Quaderni
di cultura materiale, 1), p. 26 et fig. VIII, 1-3.
Cuomo di Caprio
1971-1972 = N. Cuomo di Caprio, Proposta
di classificazione delle fornaci per ceramica e laterizi nell’area italiana
dalla preistoria a tutta l’epoca romana, dans Sibrium,
11, 1971-1972, p. 429-434.
Fiorelli, See
Fiorelli G., 1863. Pompeianarum
antiquitatum historia, Vol. 2: 1819 - 1860, Naples, p. 361.
Garcia y Garcia
2006 = L. Garcia y Garcia, Danni di
guerra a Pompei. Una dolorosa vicenda quasi dimenticata. Con numerose
notizie sul « Luseo
Pompeiano » distrutto nel 1943, Rome, 2006 (Studi della Soprintendenza
archeologica di Pompei, 15), p. 163.
Kockel - Weber
1983 = V. Kockel, B. Weber, Die Villa
delle colonne a mosaico in Pompeji, dans RM, 90, 1983, p. 79.
Le Ny 1988 = F.
Le Ny, Les fours de tuiliers
gallo-romains. Méthodologie, étude technologique, typologique et statistique.
Chronologie, DAM 12, 1988, p. 14-15.
Laëtitia Cavassa,
Bastien Lemaire et John-Marc Piffeteau, « Pompéi. L’atelier de potier », Chronique
des activités archéologiques de l’École française de Rome [En ligne], Les cités
vésuviennes. Mis en ligne le 09 avril 2013.
Droits d’auteur
© École française
de Rome
Part 3: 2013 Excavations
Part 1