
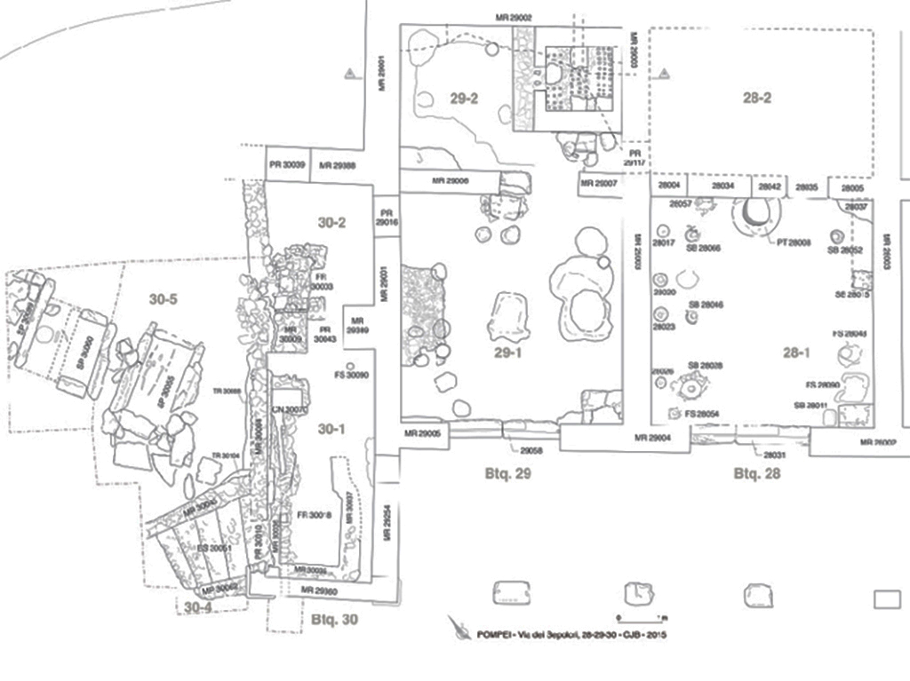
Plan of the potter's workshop (shops N28-N30) and burials (1:50th). G. Chapelin, B. Lemaire – CJB/EFR/CNRS - CC BY-NC-ND 4.0
Plan de
l’atelier de potier (boutiques N28-N30) et des sépultures (1 : 50e). G.
Chapelin, B. Lemaire – CJB/EFR/CNRS - CC BY-NC-ND 4.0
See Pompéi, Porta Ercolano : organisation, gestion et transformations d’une zone suburbaine : Campagne 2015, fig. 15. CEFR 1581

HGE30 Pompeii. May 2006. Looking south.
The workshop HGE29 was discovered and excavated between October 15 and November 11, 1838. Fiorelli specifically mentioned the oven and 34 pots with a handle discovered on October 15, 1838.
See Fiorelli G., 1863. Pompeianarum antiquitatum historia, Vol. 2: 1819 - 1860, Naples, p. 361.
According to Fiorelli, HGE29, the last of the workshops, enclosed a reverberatory furnace for firing pottery, and had another room, with a second furnace not fully excavated.
See Fiorelli, G., 1875. Descrizione di Pompei. Napoli, p. 416.
On the 22nd October 1838, a second potter’s oven was discovered and in a corner of the same were found 30 pots of various shapes and sizes, and among them one with long handle: See Fiorelli G., 1863. Pompeianarum antiquitatum historia, Vol. 2: 1819 - 1860, Naples, p. 361.
This second oven would have been in shop HGE30.
According to Garcia y Garcia, a bomb fell during the night of 18th September 1943 hitting the workshop HGE30. This destroyed the two rooms with their respective ovens.
See Garcia y Garcia, L., 2006. Danni di guerra a Pompei. Rome: L’Erma di Bretschneider, (p.163).
According to Mau, a potter’s workshop with two ovens was located at HGE29 and HGE30.
The ovens, which were not large, had an upper division in which were placed the vessels to be baked.
Beneath this was a firebox, underneath the floor above being pierced with holes to let the heat through.
The vault of one of the ovens was constructed of parallel rows of jars fitted into one another.
See Mau, A., 1907, translated by Kelsey, F. W., Pompeii: Its Life and Art. New York: Macmillan. (p. 386).

HGE30 Pompeii. May 2006. Looking south through doorway into HGE29.
01.13.2016, by Laure Cailloce

HGE30 Pompeii.
2016. The workshop is on the left with the Samnite tombs on the right. At the
far end are the steps leading to the workshop.
According to Lætitia
Cavassa: A large excavation program on crafts has been carried out in Pompeii
for the past fifteen years, aiming to find out more about the different trades,
such as tanners, perfumers or potters. I myself am a
specialist in ancient ceramics and, since 2012, have been in charge of the
excavation of a potter’s workshop outside the town, on the Street of Tombs—the
road that cuts across the burial ground of Porta Ercolano and leads to the
famous Villa of the Mysteries. When this workshop was discovered in 1838, an
oven was found, but digging didn’t go any further at the time. In 2012, we
unearthed a series of goblets with decorated handles when clearing away a heap
of pumice stones from the eruption of Vesuvius. In 2014, we extended our
research to two adjoining shops and came across four potters’ wheels—the first
found in Pompeii—and two more ovens. We uncovered the tomb when we examined the
wall of one of the shops more closely; it was just on the other side of the
partition.
See https://news.cnrs.fr/articles/a-rare-pre-roman-tomb-surfaces-in-pompeii
7 mai 2021
https://centrejeanberard.cnrs.fr/spip.php?article107&lang=fr
Plan de l’atelier de potier (boutiques N28-N30) et
des sépultures (1:50e). | G. Chapelin, B. Lemaire –
CJB/EFR/CNRS - CC BY-NC-ND 4.0
Entre 2012 et
2016, l’École Française de Rome, le Centre Jean-Bérard, le Collège de France,
les Universités de Rouen et de Paris-Est-Créteil-Val-de-Marne, l’Institut
universitaire de France et le Centre Camille-Jullian ont collaboré avec le
Parco Archeologico di Pompei dans le cadre du programme « Porta Ercolano -
Organisation, gestion et transformations d’une zone suburbaine ».
Ce programme
s’est intéressé à l’étude du secteur suburbain de Pompéi situé au-delà de Porta
Ercolano, entre espaces funéraires, commerciaux et artisanaux, autant du point
de vue topographique que fonctionnel en étudiant dans le détail une série de
boutiques construites en arrière d’un portique le long de la
Via dei sepolcri.
Nous avons
centré nos recherches sur la reprise de l’étude de la nécropole en nous fondant
sur les connaissances actuelles en termes de prosopographie pompéienne, et en
parallèle, en reprenant l’étude des activités artisanales attestées dans les
boutiques abritées sous le portique, au nord de la route. Cette approche, qui a
pris en compte l’analyse du bâti et a impliqué la réalisation de sondages
stratigraphiques, permet d’émettre de nouvelles hypothèses quant au
développement et à l’utilisation de l’espace depuis la période pré-romaine, du IVe s. av. notre ère, jusqu’à l’éruption de
79.
Les premières
traces d’occupation observées sont celles d’une nécropole préromaine, dont nous
avons pu remettre au jour quelques sépultures à l’extrémité nord de la zone de
fouilles. Bien que ces sépultures étaient déjà connues et signalées par la
littérature, entre la fin du XIXe et le début du XXe siècle, nous avons eu la
surprise d’en retrouver deux encore intactes. La première sépulture (N31),
fouillée en 2015, renfermait le corps d’une femme accompagnée d’un mobilier
funéraire composé de onze vases dont certains sont à figures rouges, et dont
les premiers éléments chronologiques, nous fournissent une datation de la fin
du Ve et les débuts du IVe s. avant notre ère.
Les résultats
de nos fouilles ont fourni des données précises pour affiner notre connaissance
en ce qui concerne les activités artisanales installées dans ces boutiques - qui
appartiennent à un projet unitaire remontant au plus tôt au Ier s. avant notre
ère.
Les recherches
lancées dans la boutique N29 avaient pour objectifs de documenter l’activité
d’un atelier de potier, attesté par la présence d’un four, en termes de chronologie
et de production. Les journaux de fouilles du XIXe siècle parlaient de « pignattini » découverts dans la boutique mais en l’absence
d’illustrations, l’identification demeurait imprécise. De plus, l’un des
objectifs était de comprendre l’organisation de l’atelier et des espaces de
travail. Nos campagnes de fouilles nous ont permis de découvrir, à proximité du
four, un niveau de pierres ponces provenant de l’éruption de 79 qui recouvrait,
tout en les protégeant, une dizaine de vases crus.
Ces gobelets à
paroi fine, décorés de guillochis et engobés, correspondent aux « pignattini » mentionnés par les fouilleurs de 1838. Ces
vases crus représentent un unicum dans la
documentation archéologique et sont un élément fondamental pour la recherche
sur l’artisanat de la céramique dans la cité antique. La suite des recherches a
également permis de comprendre que l’atelier ne se limitait pas à la boutique
N29 mais qu’il s’étendait également sur les boutiques N28 et N30 avec une salle
comportant des tours (N28) et deux autres fours (N30). Ces données nous
permettent d’enrichir nos connaissances sur la chaîne opératoire de l’atelier.
Between 2012 and 2016, the French School of Rome, the Center Jean-Bérard, the College de France, the Universities of Rouen and Paris-Est-Créteil-Val-de-Marne, the University Institute of France and the Center Camille-Jullian collaborated with the Parco Archeologico di Pompei within the framework of the program “Porta Ercolano - Organization, management and transformation of a suburban area”.
This program was interested in the study of the suburban sector of Pompeii located beyond Porta Ercolano, between funeral, commercial and artisan spaces, both from the topographical and functional point of view by studying in detail a series of shops built in rear of a portico along Via dei sepolcri.
We focused our research on the resumption of the study of the necropolis based on current knowledge in terms of Pompeian prosopography, and in parallel, by resuming the study of artisanal activities attested in the shops sheltered under the portico, on the north of the road. This approach, which took into account the analysis of the building and involved the realization of stratigraphic surveys, makes it possible to put forward new hypotheses regarding the development and use of space since the pre-Roman period, from the 4th century. s. av. our era, until the eruption of 79.
The results of our excavations have provided precise data to refine our knowledge of the artisanal activities installed in these shops - which belong to a unitary project dating back to the 1st century at the earliest. Before our era. The research launched in the N29 shop aimed to document the activity of a potter's workshop, attested by the presence of an oven, in terms of chronology and production. Nineteenth-century excavation diaries spoke of "pignattini" found in the shop, but in the absence of illustrations, the identification remained imprecise. In addition, one of the goals was to understand the organization of the workshop and workspaces. Our excavation campaigns have enabled us to discover, near the oven, a level of pumice stones from the eruption of 79 which covered, while protecting them, a dozen raw vases.
These fine-walled goblets, decorated with guilloches and engobed, correspond to the “pignattini” mentioned by the excavators of 1838. These raw vases represent a unicum in archaeological documentation and are a fundamental element for research on ceramic craftsmanship in the ancient city. Further research also made it possible to understand that the workshop was not limited to shop N29 but that it also extended to shops N28 and N30 with a room comprising lathes (N28) and two other ovens (N30). These data allow us to enrich our knowledge of the operational chain of the workshop.
https://centrejeanberard.cnrs.fr/spip.php?article107&lang=fr
Sandra Zanella,
Laetitia Cavassa, Nicolas Laubry, Nicolas Monteix, Guilhem Chapelin, Arnaud Coutelas,
Audrey Delvigne Ryrko, Mélanie Errera, Léa Gerardin, Bastien Lemaire,
Raphael Macario, Florien Ortis, Vincenzo Pellegrino et Géraldine
Sachau-Carcel
Publication en
libre accès. © École française de Rome, CEFR
1676
37 Suite à la fouille de l’atelier de potier entre 2012 et
2015, quelques vérifications s’imposaient dans la pièce 30/2. Un sondage a été
rouvert afin d’atteindre les couches laissées en place lors de la dernière
campagne (Note 9). L’objectif était d’atteindre les niveaux de fondation du
four situé dans cette pièce et ainsi de chercher à apporter des informations
quant à la datation de son installation. Des niveaux antérieurs à son
installation et une importante quantité de matériel céramique ont pu être mis
au jour : l’étude céramique permettra d’une part d’apporter un terminus
quant à la datation de l’installation du four et/ou d’apporter des éléments
précieux concernant la production de l’atelier.
Note 9. Zanella et al. 2016, § 38.
Sandra Zanella, Laetitia Cavassa, Nicolas Laubry, Nicolas Monteix, Guilhem Chapelin, Arnaud Coutelas, Audrey Delvigne Ryrko, Mélanie Errera, Léa Gerardin, Bastien Lemaire, Raphael Macario, Florien Ortis, Vincenzo Pellegrino et Géraldine Sachau-Carcel, « Pompéi, Porta Ercolano : organisation, gestion
et transformations d’une zone suburbaine », Chronique des activités archéologiques
de l’École française de Rome http://journals.openedition.org/cefr/1676
; DOI : https://doi.org/10.4000/cefr.1676
Sandra Zanella, Laetitia Cavassa, Nicolas Laubry, Nicolas Monteix et Bastien Lemaire
Publication en
libre accès. © École française de Rome, CEFR
1581
35 Dans la
boutique 30, quelques sondages ont été réalisés dans le but de compléter la
documentation de la campagne précédente. Aucun niveau de circulation en lien
avec la fondation du portique n’a encore pu être atteint dans cette boutique,
mais l’étude du matériel issu des niveaux de sols en lien avec les deux fours
et antérieurs à ceux-ci, devrait permettre d’apporter de précieuses
informations quant à la production de l’atelier.
36 Dans cet
espace, nous avons dégagé une canalisation de 4,10 m de long pour 10 à
13 cm de large (fig. 19), longeant le parement est du mur MR30004 et
se jetant au sud (fig. 20), vers la voie en contrebas. Son départ est
formé par une sorte d’avaloir rectangulaire, de 54 sur 68 cm.

Fig. 19 –
La pièce 30.1 et la canalisation, antérieure au four.
Pris du nord.
B. Lemaire,
EFR/CNRS.

Fig. 20 –
Détail de l’évacuation de la canalisation.
Pris du sud.
B. Lemaire,
EFR/CNRS.
37 La
canalisation est constituée d’un niveau en mortier gris sur lequel sont
installés les piédroits du canal et les parois de l’avaloir. Ces éléments
viennent s’appuyer sur le parement du mur de fermeture de la boutique, et sont
principalement constitués de petits moellons de basalte et rarement de tuf,
noyés dans un mortier beige. Les parements internes du canal sont plus riches
en mortier et lissés, afin d’avoir une meilleure étanchéité. La couverture n’est
que partiellement conservée et faite de petites dalles de basalte liées avec le
même type de mortier beige. Son comblement était constitué d’un limon argileux
brun foncé présentant peu de matériel céramique. Sur le comblement de la partie
nord de la canalisation, les restes d’un niveau blanc cendreux ont été
observés. Il s’agit du même niveau de fonctionnement que celui du four fouillé
en 2014, attestant donc de l’antériorité de la structure par rapport au four
(Note 16).
Note 16. Cavassa
et al. 2014. http://journals.openedition.org/cefr/1279
38 Dans cet
espace, les derniers niveaux de sols en lien avec l’utilisation du four ont été
fouillés et des niveaux antérieurs ont pu être identifiés. Le sol du dernier
état de la pièce est constitué d’un limon argileux brun foncé très compact et
était recouvert par le dernier niveau d’utilisation de l’alandier du four. La
fouille de ce sol a permis de rassembler du matériel dont des éléments se
rapportent à la production de l’atelier et de mettre en évidence des remblais
de nivellement constitués de moellons de tuf, d’éléments de remploi et de
mortier, ainsi que de rares fragments de tegulae (fig. 21).

Fig. 21 –
Le niveau de remblai et le sol.
Pris de
l’ouest.
B. Lemaire,
EFR/CNRS.
Ces niveaux
viennent recouvrir un sol antérieur fonctionnant déjà avec le four et
présentant deux poches en surface. D’une part, dans la dépression localisée au
sud-est de la pièce et sur 2 à 5 cm d’épaisseur, a été relevé un abondant
ensemble de fragments de céramiques (fig. 22) appartenant à des gobelets à
paroi fine, à décor sablé, issus de la production de l’atelier.

Fig. 22 –
Le niveau de céramique attestant de la production de l’atelier.
Pris de
l’ouest.
B. Lemaire,
EFR/CNRS.
D’autre part,
dans l’angle nord-est, une dépression a été observée, comblée par un niveau de
cendres et de quelques charbons de 5 cm d’épaisseur. Sous cette couche, un
niveau de sol de limon argileux brun foncé antérieur au four a été mis en
évidence. En lien avec ce dernier et sur le reste de la pièce, se trouve une
couche de sédimentation présentant de nombreux fragments de céramique, dont
certains appartiennent à la production de l’atelier, dans une phase antérieure
à l’installation du four de la pièce. Sous ce dernier niveau de sol, un niveau
de remblai a été observé passant aussi sous le four. Il s’agit d’une couche de
limon brun, enserrant des petits moellons de tuf et de remploi, des fragments
de tegulae et des céramiques dont certaines sont
issues de l’atelier, pour une période précédente et très certainement cuites
dans le four de la pièce 30.1. Aucun niveau antérieur, ou en lien avec la
fondation de la boutique n’a été mis en évidence.
Sandra Zanella,
Laetitia Cavassa, Nicolas Laubry, Nicolas Monteix et Bastien Lemaire, « Pompéi,
Porta Ercolano : organisation, gestion et transformations d’une zone
suburbaine », Chronique des activités archéologiques de l’École française
de Rome, http://journals.openedition.org/cefr/1581
; DOI : https://doi.org/10.4000/cefr.1581
Laetitia Cavassa,
Bastien Lemaire, Guilhem Chapelin et Aline Lacombe
Publication en
libre accès. © École française de Rome, CEFR
1279
19 La boutique
30 nous intéressait particulièrement en raison de l’hypothèse de la présence,
mentionnée par plusieurs sources (Note 7), d’un second four non entièrement
dégagé lors des fouilles du XIXe siècle et qui aurait par la suite pu être
détruit par les bombardements alliés en 1943.
Note 7:
E. Breton, Pompeia
décrite et dessinée par Ernest Breton (...) suivie d'une Notice sur Herculanum,
Paris, 1855, p. 234-235.
Fiorelli G., 1862. Pompeianarum antiquitatum historia, Vol. 2: 1819 - 1860, Naples, p. 361-362.
20 Cette
boutique est constituée, en l’état actuel des connaissances, de deux pièces
30-1 et 30-2 et mesure 9,6 m (nord-sud) sur 2,34 m (est-ouest). Les
derniers niveaux d’occupation de la boutique sont illustrés dans la pièce 30-2
par le four FR30003, mentionné par les sources du XIXe siècle, mais dont
plus aucune trace ne subsistait avant que la fouille de cette année ne le
remette au jour. Celui-ci a en effet quelque peu souffert des bombardements
mais son état de conservation permet toutefois d’en tirer de nombreuses
informations.
21 Seule la
chambre de combustion, l’alandier et une portion de mur et d’arc de soutènement
de la sole sont conservés (fig. 8).

Fig. 8 - Photo
du four FR30008 situé dans la pièce 30-2.
Cliché B.
Lemaire.
22 Il s’agit
d’un four construit avec des matériaux de récupération, dont des tuiles
retaillées mais également des fragments d’amphore italique de type Dressel 2/4
et d’ollae de type Schoene
Mau I. Dans les niveaux de destruction, nous avons également identifié de
nombreux fragments de vases utilisés imbriqués les uns dans les autres et qui
permettaient le maintien de la voûte de la chambre de cuisson, constituant
ainsi le seul témoignage de cette partie du four. L’ensemble du four mesure
1,24 m d’est en ouest et 1,73 m du nord au sud. La chambre de chauffe
possède une surface de 0,74 m (est-ouest) sur 1,14 m (nord-sud),
alors que l’alandier mesure environ 40 cm (est-ouest) pour 62 à 65 cm
(nord-sud). Un niveau de cendres conservé dans l’alandier a pu être fouillé et
renfermait un peu de céramique dont des fragments surcuits illustrant la
production de gobelets à paroi fine. Ce four semble avoir été en fonction au
moment de l’éruption du Vésuve.
23 Enfin, dans
la pièce 30-1, nous avons mis au jour un deuxième four dont ne subsistent que
les niveaux inférieurs de la chambre de combustion et les traces de l’alandier.
Ce four, FR30018, mesure au maximum 3,40 m du nord au sud pour 2,06 m
de largeur. La chambre de combustion mesure 1,40 m sur 1,40 m.
L’alandier mesure 86 cm de largeur et a été reconnu sur plus de 80 cm de
longueur (fig. 9).

Fig. 9 - Photo
zénithale du four FR30018 situé dans la pièce 30-1.
Cliché B.
Lemaire.
24 De nombreux
vases surcuits ont été mis au jour dans les niveaux de cendres de la chambre de
combustion, attestant pour ce four également d’une production de gobelets et
bols à paroi fine (fig. 10). Ce second four mis au jour dans la boutique
30, et donc le troisième dans le secteur, est légèrement plus ancien et ne
fonctionnait plus en 79 de notre ère.

Fig. 10 - Fragments
de gobelets et bols surcuits mis au jour dans les niveaux de cendres de la
chambre de combustion du four FR30018.
Cliché L.
Cavassa.
25 En
définitive, cette campagne de fouilles 2014 nous a permis de mettre au jour un
vaste complexe artisanal aux marges de la ville de Pompéi, se développant sur
trois boutiques avec à l’heure actuelle trois fours dont deux fonctionnaient au
moment de l’éruption du Vésuve, quatre tours de potiers et des vases crus
attestant le type de production (fig. 11).

Fig. 11 - Plan
de l’atelier de potier en 79 de notre ère.
G. Chapelin,
J.-A. Delorme, B. Lemaire et J.-M. Piffeteau.
Breton
1855 = E. Breton, Pompeia décrite et dessinée par Ernest Breton
(...) suivie d'une Notice sur Herculanum, Paris, 1855.
Cavassa et alii 2013 = L. Cavassa, B.
Lemaire, J.-M. Piffeteau, « Pompéi.
L’atelier de potier », Chronique des activités archéologiques de l’École
française de Rome [En ligne], Les cités vésuviennes. URL :
http://cefr.revues.org/881.
Cavassa et alii 2014 = Laëtitia Cavassa, Bastien Lemaire, Guilhem Chapelin, Aline Lacombe, John-Marc Piffeteau et
Giuseppina Stelo,
« Pompéi. L’atelier de potier de la via dei
Sepolcri, 29 », Chronique des activités archéologiques de l’École
française de Rome [En ligne], Les cités vésuviennes. URL :
http://cefr.revues.org/1139.
Dufaÿ – Barat – Raux 1997 = B. Dufaÿ,
Y. Barat, S. Raux, Fabriquer de la vaisselle à l’époque romaine.
Archéologie d’un centre de production céramique en Gaule : la
Boissière-École (Yvelines, France), Ier et IIIe siècles
après J.-C., Service archéologique départemental des Yvelines,
1997.
Fiorelli
1863 = G. Fiorelli, PAH II, 1863.
Van der Poel 1983 = A. Van der Poel, Corpus
Topographicum Pompeianum: the Rica maps of Pompeii, Rome, 1983.
Laetitia Cavassa,
Bastien Lemaire, Guilhem Chapelin et Aline Lacombe, « Pompéi.
L’atelier de potier de la via dei Sepolcri, 28-30 »,
Chronique des activités archéologiques de l’École française de Rome http://journals.openedition.org/cefr/1279
; DOI : https://doi.org/10.4000/cefr.1279