PompeiiinPictures

HGE31 Pompeii. Herculaneum Gate East Side. Nine simple burials.

Excavated 1873/4. Bombed in 1943. (Eschebach East 31, Kockel Nord 31).

HGE31A Pompeii. Stone lined tomb of a Samnite Woman. Excavated 2015.

HGE31B Pompeii. Samnite tomb previously excavated. Re-excavated 2015.

 

HGE31.

According to Kockel, in 1873/4 nine pre-roman burials were found to the west of the pottery HGE29/30.

7 simple terracotta urns with Ash residues were found, of which two had been protected with three bricks.

 

HGE31 L Eumachi Mau von Duhn BDI 1874 p158

One brick carried the stamp L. EUMACHI.

Nearby, at the same level, several bronze coins were found of which 4 could be identified, one of Agrippa, one of Tiberius and two of Vespasian.

There were two stones in herm form of the type particular to Pompeii.

Also found were two coins with Oscan lettering, preceding the Social War, never previously found in Pompeii.

Opinions differ over the age of the graves, and whether they are Samnite, Roman or both.

See Sogliano in Giornale degli Scavi di Pompei N. S. 3, 1874, 5 Anm 1:7

See Mau and Von Duhn in Bullettino dell’Instituto di Corrispondenza Archeologica (DAIR), 46, 1874, p. 158-160.

See Kockel V., 1983. Die Grabbauten vor dem Herkulaner Tor in Pompeji. Mainz: von Zabern. (p. 161).

 

According to Mau, several of the graves were explored.

In them were found rough stone coffins, made of slabs and fragments of limestone.

They contained remains of skeletons together with small painted vases.

The vases were the sort manufactured in Campania during the third and second centuries BC.

Two coins were found, in separate graves, with Oscan legends.

See Mau, A., 1907, translated by Kelsey, F. W., Pompeii: Its Life and Art. New York: Macmillan. (p. 407).

 

The stone lined tomb of a Samnite Woman was discovered and excavated in 2015. This tomb is referred to here as HGE31A.

Two other graves from the Samnite era were also discovered.

 

HGE31 Pompeii. May 2006. Derelict site of area of HGE31 and HGE32. According to Garcia y Garcia, unfortunately also hit by a bomb in September 1943, and lost were the Samnite tombs excavated in 1873 and recorded by Fiorelli. See Garcia y Garcia, L., 2006. Danni di guerra a Pompei. Rome: L’Erma di Bretschneider. (p.163)

HGE31 Pompeii. May 2006. Derelict site of area of HGE31 and HGE32.

According to Garcia y Garcia, unfortunately also hit by a bomb in September 1943, and lost were the Samnite tombs excavated in 1873 and recorded by Fiorelli.

See Garcia y Garcia, L., 2006. Danni di guerra a Pompei. Rome: L’Erma di Bretschneider. (p.163)

 

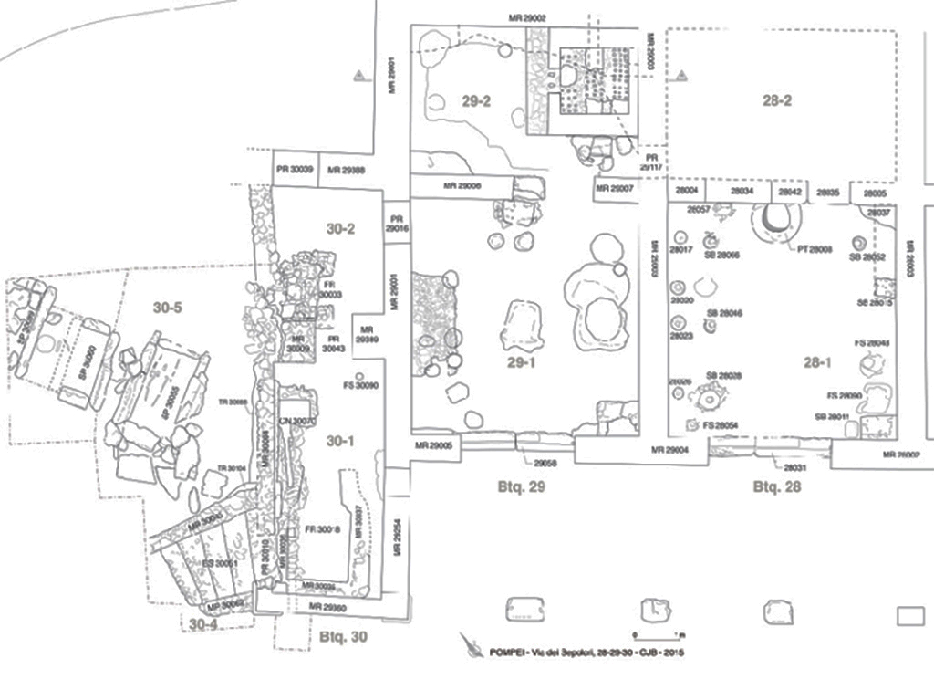
Plan of the potter's workshop (shops N28-N30) and burials HGE31A, HGE31B and HGE32A (1:50th). G. Chapelin, B. Lemaire – CJB/EFR/CNRS - CC BY-NC-ND 4.0

Plan de l’atelier de potier (boutiques N28-N30) et des sépultures HGE31A, HGE31B et HGE32A (1 : 50e). G. Chapelin, B. Lemaire – CJB/EFR/CNRS - CC BY-NC-ND 4.0

See Pompéi, Porta Ercolano : organisation, gestion et transformations d’une zone suburbaine : Campagne 2015, fig. 15. CEFR 1581

Plan of the potter's workshop (shops N28-N30) and burials HGE31A, HGE31B and HGE32A (1:50th). G. Chapelin, B. Lemaire – CJB/EFR/CNRS - CC BY-NC-ND 4.0

 

Plan de l’atelier de potier (boutiques N28-N30) et des sépultures HGE31A, HGE31B et HGE32A (1 : 50e). G. Chapelin, B. Lemaire – CJB/EFR/CNRS - CC BY-NC-ND 4.0

 

See Pompéi, Porta Ercolano : organisation, gestion et transformations d’une zone suburbaine : Campagne 2015, fig. 15. CEFR 1581

 

HGE31A Pompeii. Tomb of a Samnite Woman.

 

HG31A Pompeii. Tomb of a Samnite Woman. 2015. The tomb is located behind the wall of HGE30, a potter’s shop. 
Photograph © Parco Archeologico di Pompei.

HG31A Pompeii. Tomb of a Samnite Woman. 2015. The tomb is located behind the wall of HGE30, a potter’s shop.

Photograph © Parco Archeologico di Pompei.

 

HG31A Pompeii. Tomb of a Samnite Woman. 2015. Tomb with HGE30 between the low and high walls on right with doorway to HGE29 at far end.
Photograph © Parco Archeologico di Pompei.

HG31A Pompeii. Tomb of a Samnite Woman. 2015. Tomb with HGE30 between the low and high walls on right with doorway to HGE29 at far end.

Photograph © Parco Archeologico di Pompei.

 

HG31A Pompeii. Tomb of a Samnite Woman. 2015. HGE30 left and tomb right.
The Samnite tomb was found in an area containing tombs from the Roman period, lavish villas and craftsmen’s shops.
It was uncovered when the wall of one of the shops was examined more closely; it was just on the other side of the partition.
No trace of the tomb cover was found.
Photograph © L.CAVASSA/CNRS-AMU .

HG31A Pompeii. Tomb of a Samnite Woman. 2015. HGE30 left and tomb right.

The Samnite tomb was found in an area containing tombs from the Roman period, lavish villas and craftsmen’s shops.

It was uncovered when the wall of one of the shops was examined more closely; it was just on the other side of the partition.

No trace of the tomb cover was found.

Photograph © L.CAVASSA/CNRS-AMU .

 

The collapsed slabs of burial SP30055 (HGE31A) being excavated. Taken from the east. 
Photo © B. Lemaire, EFR/CNRS. 
Burial SP30055, shows elements of the fractured and fallen wall slabs (Fig. 24). 
It was a box burial consisting of four monolithic slabs of Sarno limestone placed in the field, delimiting a space in which the deceased and the offerings were placed. 
The levels in place that have come down to us allow us to put forward the hypothesis that the burial is installed in the substratum, most probably with the digging of a pit whose limits are represented by the blocks forming the burial. 
The slabs on the short sides are enclosed by those on the long sides, forming a box and defining a rectangular structure of 2.25 m by 1.40 m (maximum), oriented north-east/south-west.
The north-western wall, which is better preserved (31.94 m s.l.m.), makes it possible to restore the height and thus the internal space of the tomb: 1.94 m by 0.98 m, for a height of 1.08 m.
(See CEFR 1581 and below) Para 42, Fig. 24.

Les dalles effondrées de la sépulture SP30055 en cours de fouille. Pris de l’est. 
Photo © B. Lemaire, EFR/CNRS. 
La sépulture SP30055, présente des éléments des dalles des parois fracturées et tombées au sol (fig. 24). 
Il s’agissait d’une sépulture à caisse matérialisée par quatre dalles monolithes en calcaire du Sarno posées de champ, délimitant un espace dans lequel sont installés le défunt et les offrandes. 
Les niveaux en place qui nous sont parvenus permettent d’avancer l’hypothèse que la sépulture est installée dans le substrat, très probablement avec le creusement d’une fosse dont les limites sont représentées par les blocs formant la sépulture. 
Les dalles des petits côtés sont enserrées par celles des grands côtés, formant un coffre et définissant une structure rectangulaire de 2,25 m sur 1,40 m (au maximum), orientée nord-est/sud-ouest.
La paroi nord-ouest, mieux conservée (31,94 m s.l.m.), permet de restituer la hauteur et ainsi l’espace interne de la tombe : 1,94 m sur 0,98 m, pour 1,08 m de hauteur.
(Voir CEFR 1581 et ci-dessous) Para. 42, Fig. 24.

The collapsed slabs of burial SP30055 (HGE31A) being excavated. Taken from the east.

Photo © B. Lemaire, EFR/CNRS.

Burial SP30055, shows elements of the fractured and fallen wall slabs (Fig. 24).

It was a box burial consisting of four monolithic slabs of Sarno limestone placed in the field, delimiting a space in which the deceased and the offerings were placed.

The levels in place that have come down to us allow us to put forward the hypothesis that the burial is installed in the substratum, most probably with the digging of a pit whose limits are represented by the blocks forming the burial.

The slabs on the short sides are enclosed by those on the long sides, forming a box and defining a rectangular structure of 2.25 m by 1.40 m (maximum), oriented north-east/south-west.

The north-western wall, which is better preserved (31.94 m s.l.m.), makes it possible to restore the height and thus the internal space of the tomb: 1.94 m by 0.98 m, for a height of 1.08 m.

(See CEFR 1581 and below) Para 42, Fig. 24.

 

Les dalles effondrées de la sépulture SP30055 en cours de fouille. Pris de l’est.

Photo © B. Lemaire, EFR/CNRS.

La sépulture SP30055, présente des éléments des dalles des parois fracturées et tombées au sol (fig. 24).

Il s’agissait d’une sépulture à caisse matérialisée par quatre dalles monolithes en calcaire du Sarno posées de champ, délimitant un espace dans lequel sont installés le défunt et les offrandes.

Les niveaux en place qui nous sont parvenus permettent d’avancer l’hypothèse que la sépulture est installée dans le substrat, très probablement avec le creusement d’une fosse dont les limites sont représentées par les blocs formant la sépulture.

Les dalles des petits côtés sont enserrées par celles des grands côtés, formant un coffre et définissant une structure rectangulaire de 2,25 m sur 1,40 m (au maximum), orientée nord-est/sud-ouest.

La paroi nord-ouest, mieux conservée (31,94 m s.l.m.), permet de restituer la hauteur et ainsi l’espace interne de la tombe : 1,94 m sur 0,98 m, pour 1,08 m de hauteur.

(Voir CEFR 1581 et ci-dessous) Para. 42, Fig. 24.

 

HG31A Pompeii. Tomb of a Samnite Woman. 2015. A cubic tomb built of limestone blocks from the Sarno River, which runs near Pompeii.
The Samnite woman was buried with a series of clay jars, or amphora.
These came from other regions of Italy revealing the extent of trade between the Samnites at Pompeii and other groups living across the Italian peninsula.
Photograph © Parco Archeologico di Pompei.

HG31A Pompeii. Tomb of a Samnite Woman. 2015. A cubic tomb built of limestone blocks from the Sarno River, which runs near Pompeii.

The Samnite woman was buried with a series of vases, clay jars, or amphora.

These came from other regions of Italy revealing the extent of trade between the Samnites at Pompeii and other groups living across the Italian peninsula.

Photograph © Parco Archeologico di Pompei.

 

HG31A Pompeii. Tomb of a Samnite Woman. 2015. 
The tomb contained the skeleton of a woman lying on her back, surrounded by twelve red-figure Attica-style vases with red motifs on a black background and an amphora.
The head was presented to the north-east.
Photograph © Parco Archeologico di Pompei.

HG31A Pompeii. Tomb of a Samnite Woman. 2015.

The tomb contained the skeleton of a woman lying on her back, surrounded by twelve red-figure Attica-style vases with red motifs on a black background and an amphora.

The head was presented to the north-east.

Photograph © Parco Archeologico di Pompei.

 

HG31A Pompeii. Tomb of a Samnite Woman. 2015. Red-figure Attica-style vases with red motifs on a black background.
Twelve locally-made vases in the Attica style were found close to the body. 
Photograph © Parco Archeologico di Pompei.

HG31A Pompeii. Tomb of a Samnite Woman. 2015. Red-figure Attica-style vases with red motifs on a black background.

Twelve locally-made vases in the Attica style were found close to the body.

Photograph © Parco Archeologico di Pompei.

 

The burial SP30055 (HGE31A), the deceased and her grave goods. View from above. (See CEFR 1581 and below) Fig. 25.
La sépulture SP30055 (HGE31A), le défunt et son mobilier. Vue zénithale. (Voir CEFR 1581 et ci-dessous) Fig. 25.
Photo © B. Lemaire, EFR/CNRS.

The burial SP30055 (HGE31A), the deceased and her grave goods. View from above. (See CEFR 1581 and below) Fig. 25.

La sépulture SP30055 (HGE31A), le défunt et son mobilier. Vue zénithale. (Voir CEFR 1581 et ci-dessous) Fig. 25.

Photo © B. Lemaire, EFR/CNRS.

 

HG31A Pompeii. Tomb of a Samnite Woman. 2015. Grave goods at the left arm of the woman.
The contents of the jars will be analysed, but are thought to contain cosmetics, wine, and food.
Photograph © Parco Archeologico di Pompei.

HG31A Pompeii. Tomb of a Samnite Woman. 2015. Grave goods at the left arm of the woman.

The contents of the jars will be analysed, but are thought to contain cosmetics, wine, and food.

Photograph © Parco Archeologico di Pompei.

 

HG31A Pompeii. Tomb of a Samnite Woman. 2015. Twelve red-figure Attica-style vases with red motifs on a black background were found.
A first lot was deposited to the east of the burial, near the upper part of the body. It consists of a lékanè composed of a receptacle and its lid. 
The latter was covered with a red-figured lecythus. 
There was also an oenochoè, a red-figure amphora, a skyphos and a canthare with a monochrome overpainted decoration, as well as a second lecythus.
(See CEFR 1581 and below) Para. 44, Fig. 26.

Un premier lot a été déposé à l’est de la sépulture, à proximité de la partie supérieure du corps. 
Il est constitué d’une lékanè composée d’un réceptacle et de son couvercle. 
Ce dernier était recouvert d’un lécythe à figures rouges. 
Il y avait également une oenochoè, une amphore à figures rouges, un skyphos et un canthare à décor surpeint monochrome, ainsi qu’un deuxième lécythe.
(Voir CEFR 1581 et ci-dessous) Para. 44, Fig. 26.

Photograph © Parco Archeologico di Pompei.

HG31A Pompeii. Tomb of a Samnite Woman. 2015. Twelve red-figure Attica-style vases with red motifs on a black background were found.

A first lot was deposited to the east of the burial, near the upper part of the body. It consists of a lékanè composed of a receptacle and its lid.

The latter was covered with a red-figured lecythus.

There was also an oenochoè, a red-figure amphora, a skyphos and a canthare with a monochrome overpainted decoration, as well as a second lecythus.

(See CEFR 1581 and below) Para. 44, Fig. 26.

 

Un premier lot a été déposé à l’est de la sépulture, à proximité de la partie supérieure du corps.

Il est constitué d’une lékanè composée d’un réceptacle et de son couvercle.

Ce dernier était recouvert d’un lécythe à figures rouges.

Il y avait également une oenochoè, une amphore à figures rouges, un skyphos et un canthare à décor surpeint monochrome, ainsi qu’un deuxième lécythe.

(Voir CEFR 1581 et ci-dessous) Para. 44, Fig. 26.

 

Photograph © Parco Archeologico di Pompei.

 

HG31A Pompeii. Tomb of a Samnite Woman. 2015. 
Both the artifacts and the layer of soil in which the tomb was found suggest that it was built in the 4th century BC, during the Samnite period.
Photograph © Parco Archeologico di Pompei.

HG31A Pompeii. Tomb of a Samnite Woman. 2015.

Both the artifacts and the layer of soil in which the tomb was found suggest that it was built in the 4th century BC, during the Samnite period.

Photograph © Parco Archeologico di Pompei.

 

HG31A Pompeii. Tomb of a Samnite Woman. 2015. View north-east from foot to head of tomb.
Photograph © Parco Archeologico di Pompei.

HG31A Pompeii. Tomb of a Samnite Woman. 2015. View north-east from foot to head of tomb.

Photograph © Parco Archeologico di Pompei.

 

HG31A Pompeii. Tomb of a Samnite Woman. 2015. Artefacts at the foot of the tomb.
In the south corner a common ceramic table amphora was unearthed, on which rested a ceramic cup in vernice nera. 
Finally, between the feet of the deceased, two vases were discovered: an askos with red figures and a cup in vernice nera. 
(See CEFR 1581 and below) Para 44.

Objets au pied de la tombe.
Dans l’angle sud, une amphore de table en céramique commune a été mise au jour, sur laquelle reposait une coupe en céramique à vernis noir. 
Enfin, entre les pieds du défunt, ont été découverts deux vases : un askos à figures rouges et une coupelle à vernis noir. 
(Voir CEFR 1581 et ci-dessous) Para. 44.

Photograph © Parco Archeologico di Pompei.

HG31A Pompeii. Tomb of a Samnite Woman. 2015. Artefacts at the foot of the tomb.

In the south corner a common ceramic table amphora was unearthed, on which rested a ceramic cup in vernice nera.

Finally, between the feet of the deceased, two vases were discovered: an askos with red figures and a cup in vernice nera.

(See CEFR 1581 and below) Para 44.

 

Objets au pied de la tombe.

Dans l’angle sud, une amphore de table en céramique commune a été mise au jour, sur laquelle reposait une coupe en céramique à vernis noir.

Enfin, entre les pieds du défunt, ont été découverts deux vases : un askos à figures rouges et une coupelle à vernis noir.

(Voir CEFR 1581 et ci-dessous) Para. 44.

 

Photograph © Parco Archeologico di Pompei.

 

HG31A Pompeii. Tomb of a Samnite Woman. 2015. Tomb dating from 4th century BC.
According to Laetitia Cavassa, a few Samnite tombs were uncovered in the same area in the 19th century.
According to documents from that time, they were smaller, consisting of a cavity, a body and a few offerings that we have lost trace of. 
Other tombs were excavated in 1979, but they were more recent. 
Here we have a complete ensemble dating from the 4th century BC, which is extraordinary, even if some of the blocks are damaged.
See https://news.cnrs.fr/articles/a-rare-pre-roman-tomb-surfaces-in-pompeii 
Photograph © Parco Archeologico di Pompei.

HG31A Pompeii. Tomb of a Samnite Woman. 2015. Tomb dating from 4th century BC.

According to Laetitia Cavassa, a few Samnite tombs were uncovered in the same area in the 19th century.

According to documents from that time, they were smaller, consisting of a cavity, a body and a few offerings that we have lost trace of.

Other tombs were excavated in 1979, but they were more recent.

Here we have a complete ensemble dating from the 4th century BC, which is extraordinary, even if some of the blocks are damaged.

See https://news.cnrs.fr/articles/a-rare-pre-roman-tomb-surfaces-in-pompeii

Photograph © Parco Archeologico di Pompei.

 

HG31A Pompeii. Tomb of a Samnite Woman. 2015. Location of tomb with tombs HGE39 and HGE39A in the background.
Photograph © Parco Archeologico di Pompei.

HG31A Pompeii. Tomb of a Samnite Woman. 2015. Location of tomb with tombs HGE39 and HGE39A in the background.

Photograph © Parco Archeologico di Pompei.

 

HGE31B. Samnite tomb previously excavated

 

HGE31B with one side missing in 2015. HGE31A is below and the still to be uncovered HGE32A above.
HGE30 is at the bottom with the stairs of the shop at the bottom left.
Photo © B. Lemaire, EFR/CNRS.

Separated by 0.60 m from the previous one and nearly 0.50 m from the third, this grave is completely filled by reworked fill (Figs. 15 and 23). Only three Sarno limestone slabs are preserved and although the north-western one is missing, the space thus delimited is 1.44 m from north-east to south-west and nearly 0.75 m restored from north-west to south-east. The slabs measure between 0.92 and 0.99 m in height (up to 32.30 m s.l.m.) and only the one in the north-east measures only 0.62 m, but is set on wedge stones of about 10 cm. (30102). 

This burial structure was excavated in the modern period, as evidenced by the levels of fill found inside. It is only a single fill. Finally, the space observed was over-excavated by our predecessors, deeper than the installation levels, making it possible to observe the foundation of the slabs and even the wedging elements of one of them. No original floor and fill levels could be observed, nor any elements relating to the remains of the deceased or to offerings.

See CEFR 1581 or para 46 and 47 below

HGE31B with one side missing in 2015. HGE31A is below and the still to be uncovered HGE32A above.

HGE30 is at the bottom with the stairs of the shop at the bottom left.

Photo © B. Lemaire, EFR/CNRS.

 

Separated by 0.60 m from the previous one and nearly 0.50 m from the third, this grave is completely filled by reworked fill (Figs. 15 and 23). Only three Sarno limestone slabs are preserved and although the north-western one is missing, the space thus delimited is 1.44 m from north-east to south-west and nearly 0.75 m restored from north-west to south-east. The slabs measure between 0.92 and 0.99 m in height (up to 32.30 m s.l.m.) and only the one in the north-east measures only 0.62 m, but is set on wedge stones of about 10 cm. (30102).

 

This burial structure was excavated in the modern period, as evidenced by the levels of fill found inside. It is only a single fill. Finally, the space observed was over-excavated by our predecessors, deeper than the installation levels, making it possible to observe the foundation of the slabs and even the wedging elements of one of them. No original floor and fill levels could be observed, nor any elements relating to the remains of the deceased or to offerings.

 

See CEFR 1581 or para 46 and 47 below

 

 

Pompéi, Porta Ercolano : organisation, gestion et transformations d’une zone suburbaine

Le secteur de la porte d’Herculanum à Pompéi, entre espace funéraire et commercial. Campagne 2015

 

Sandra Zanella, Laetitia Cavassa, Nicolas Laubry, Nicolas Monteix et Bastien Lemaire

 

Publication en libre accès. © École française de Rome., CEFR 1581

 

Les espaces 30.4 et 30.5

39 Un des objectifs de cette année était d’observer le système d’accès présent à l’extrémité occidentale du portique, afin de saisir les articulations de cette zone subissant différents remaniements. De plus, dans le but de documenter et comprendre l’installation du mur MR30004 et l’extrémité occidentale de l’ensemble des boutiques, il a été décidé d’agrandir le sondage en une bande de 2,00 m à l’ouest de ce mur, permettant de travailler en sécurité et d’observer les niveaux de fondation. Dans cette zone très perturbée par les remaniements d’époque moderne ou contemporaine, les niveaux antiques présentant la tranchée de fondation relative à la construction de ce mur ont pu être observés.

 

40 Lors de l’ouverture de cette zone et la fouille des remblais modernes/contemporains, un escalier d’accès a été dégagé (secteur 30.4) et la partie orientale d’une tombe (SP30055), très abîmée, a été mise au jour (secteur 30.5) (fig. 16 et 23). En accord avec la Surintendance, il a été convenu de fouiller cette dernière. La limite occidentale du sondage, après avoir fait l’objet de relevés, a été repoussée de près de 1,50 m afin de pouvoir fouiller la sépulture en plan. Dès lors, une seconde tombe (SP30060) a été observée puis fouillée, après avoir à nouveau repoussé la limite occidentale de la zone. Cette dernière opération a révélé la présence d’une dernière tombe (SP30099) se poursuivant sous la berme et dont la fouille sera réalisée lors de la prochaine campagne de fouilles.

 

HGE31A, HGE31B and the still uncovered HGE32A.
Fig. 23 – Les secteurs 30.4 et 30.5, en fin de fouille.
Vue zénithale.
B. Lemaire, EFR/CNRS.

HGE31A, HGE31B and the still uncovered HGE32A.

Fig. 23 – Les secteurs 30.4 et 30.5, en fin de fouille.

Vue zénithale.

B. Lemaire, EFR/CNRS.

 

41 Les sépultures étaient recouvertes d’une couche argileuse grise présentant du matériel récent (papier aluminium, fil barbelé, etc.). Cette couche repose directement sur le substrat de limon argileux brun clair à jaune et comportant des inclusions jaune clair et blanches. C’est dans ce niveau que sont installées les tombes et il s’agit très probablement du même niveau naturel observé dans les pièces de la boutique 29 en 2013 (nNote 17). La zone ayant été fouillée au XIXe siècle et ayant subi des bombardements en 1943, les niveaux antiques en lien avec la tombe et qui devaient la recouvrir ont totalement disparu (Note 18). La même situation se retrouve en ce qui concerne les parements des murs MR30004 et de l’escalier, construits contre terre, qui prennent appui contre les niveaux où sont installées les tombes. De plus, leurs tranchées de fondation et leurs comblements ne sont conservés qu’au niveau du substrat et recouverts par ce niveau moderne qui s’étendait sur l’ensemble du secteur.

 

Note 17. Cavassa et al. 2013, § 4.

 

Note 18. En ce point précis, des fouilles ont été exécutées par I. Dall’Osso : Giornali degli scavi di Pompei, A VI 5, 1905, p. 13-14. Voir également : Sogliano 1913. Pour le bombardement du 1943 voir : García y García 2006, p. 163.

 

La sépulture SP30055 [HGE31A]

42 La sépulture SP30055, présente des éléments des dalles des parois fracturées et tombées au sol (fig. 24). Il s’agissait d’une sépulture à caisse matérialisée par quatre dalles monolithes en calcaire du Sarno posées de champ, délimitant un espace dans lequel sont installés le défunt et les offrandes. Les niveaux en place qui nous sont parvenus permettent d’avancer l’hypothèse que la sépulture est installée dans le substrat, très probablement avec le creusement d’une fosse dont les limites sont représentées par les blocs formant la sépulture. Les dalles des petits côtés sont enserrées par celles des grands côtés, formant un coffre et définissant une structure rectangulaire de 2,25 m sur 1,40 m (au maximum), orientée nord-est/sud-ouest. La paroi nord-ouest, mieux conservée (31,94 m s.l.m.), permet de restituer la hauteur et ainsi l’espace interne de la tombe : 1,94 m sur 0,98 m, pour 1,08 m de hauteur.

 

Fig. 24 – Les dalles effondrées de la sépulture SP30055 en cours de fouille.
Pris de l’est.
B. Lemaire, EFR/CNRS.

Fig. 24 – Les dalles effondrées de la sépulture SP30055 en cours de fouille.

Pris de l’est.

B. Lemaire, EFR/CNRS.

 

43 Aucune trace du système de couverture n’a pu être mise en évidence, mais deux encoches sont visibles dans la partie supérieure conservée de la dalle nord-ouest (côté ouest). Ces négatifs traversant sont espacés de 28 cm et mesurent près de 12 cm de large pour 8 cm de haut, mais rien ne permet d’établir qu’il y ait un lien avec un quelconque système fermant la sépulture. En outre, aucun élément identique n’a été découvert dans les fragments de blocs effondrés, appartenant à la tombe. Le fond de la sépulture est constitué du substrat encaissant, recouvert d’une fine pellicule blanche, très probablement de la chaux. C’est sur cette préparation que le défunt, très probablement de sexe féminin, a été déposé en décubitus dorsal. Il présente le crâne vers le nord-est.

 

44 Onze vases, répartis en trois emplacements différents dans la sépulture, et quelques éléments en métal (Note 19) ont été déposés (fig. 25).

 

Note 19. Très certainement des fibules. La restauration de ces objets nous permettra de le préciser.

 

Fig. 25 – La sépulture SP30055, le défunt et son mobilier.
Vue zénithale.
B. Lemaire, EFR/CNRS.

Fig. 25 – La sépulture SP30055, le défunt et son mobilier.

Vue zénithale.

B. Lemaire, EFR/CNRS.

 

Un premier lot a été déposé à l’est de la sépulture, à proximité de la partie supérieure du corps. Il est constitué d’une lékanè composée d’un réceptacle et de son couvercle. Ce dernier était recouvert d’un lécythe à figures rouges. Il y avait également une oenochoè, une amphore à figures rouges, un skyphos et un canthare à décor surpeint monochrome, ainsi qu’un deuxième lécythe (fig. 26).

 

Fig. 26 – Détail du mobilier funéraire.
Pris de l’ouest.
G. Bénit, EFR/CNRS.
Dans l’angle sud en revanche, nous avons mis au jour une amphore de table en céramique commune, sur laquelle reposait une coupe en céramique à vernis noir. Enfin, entre les pieds du défunt, ont été découverts deux vases : un askos à figures rouges et une coupelle à vernis noir.

Fig. 26 – Détail du mobilier funéraire.

Pris de l’ouest.

G. Bénit, EFR/CNRS.

 

Dans l’angle sud en revanche, nous avons mis au jour une amphore de table en céramique commune, sur laquelle reposait une coupe en céramique à vernis noir. Enfin, entre les pieds du défunt, ont été découverts deux vases : un askos à figures rouges et une coupelle à vernis noir.

 

45 Les datations apportées par un premier examen du mobilier céramique permettent d’avancer que la sépulture daterait du IVe siècle avant notre ère. Une étude plus approfondie du matériel, en cours, nous permettra de préciser cette chronologie.

 

La sépulture SP30060 [HGE31B]

46 Séparée de 0,60 m de la précédente et à près de 0,50 m de la troisième, cette tombe est intégralement comblée par des remblais remaniés (fig. 15 et 23). Seules trois dalles en calcaire du Sarno sont conservées et bien que celle du nord-ouest soit manquante, l’espace ainsi délimité est de 1,44 m du nord-est au sud-ouest et près de 0,75 m restitué du nord-ouest au sud-est. Les dalles mesurent entre 0,92 et 0,99 m de hauteur (jusqu’à 32,30 m s.l.m.) et seule celle du nord-est ne mesure que 0,62 m, mais s’installe sur des pierres de calage d’une dizaine de centimètres (30102).

 

47 Cette structure funéraire a été fouillée à l’époque moderne, comme l’attestent les niveaux de remblai découverts à l’intérieur. Il ne s’agit que d’un seul remplissage. Enfin, l’espace observé a fait l’objet d’un surcreusement, par nos prédécesseurs, plus profond que les niveaux d’installation, permettant d’observer la fondation des dalles et même les éléments de calage de l’une d’entre elles. Aucun niveau de sol et de comblement d’origine n’a pu être observé, ainsi qu’aucun élément se rapportant aux restes du défunt ou aux offrandes.

 

La sépulture SP30099 [HGE32A]

48 Également en calcaire du Sarno, une troisième tombe a été partiellement aperçue, se poursuivant hors de l’emprise de la fouille vers l’ouest (fig. 15 et 23). Seule la dalle sud-est a pu être observée dans son intégralité et mesure 2,14 m de long, pour 0,96 m de haut et 0,23 m d’épaisseur. La prochaine fouille de cette sépulture nous permettra d’en apprendre davantage.

 

Conclusions

56 Dans l’atelier de potier et à l’extrémité occidentale du portique, la campagne de cette année a permis de compléter l’enregistrement de structures déjà dégagées, notamment en réalisant des relevés photogrammétriques, mais elle a aussi permis de compléter nos connaissances sur le dernier état de l’atelier. De plus, la découverte fortuite d’une tombe, puis l’élargissement de la zone de fouille vers l’ouest, a permis de mettre en évidence trois sépultures d’époque samnite. Cette découverte vient éclairer une période mal connue de l’histoire de la ville, dans une zone dégagée antérieurement. Les informations obtenues permettront d’apporter de précieux témoignages quant à l’évolution de l’occupation et du fonctionnement de cette zone suburbaine où se côtoient des espaces funéraires, artisanaux et commerciaux, ainsi que des villae.

 

Bibliographie

Des DOI (Digital Object Identifier) sont automatiquement ajoutés aux références par Bilbo, l'outil d'annotation bibliographique d'Open Edition.
Les utilisateurs des institutions abonnées à l'un des programmes freemium d'Open Edition peuvent télécharger les références bibliographiques pour lesquelles Bilbo a trouvé un DOI.

 

Antico Gallina 1997 = M. Antico Gallina, Locus datus decreto decurionum : riflessioni topografiche e giuridiche sul suburbium attraverso i tituli funerari, dans Epigraphica, 59, 1997, p. 205‑224.

 

Campbell 2010 = V. L. Campbell, The Epitaph of Aulus Umbricius Scaurus (CIL X, 1024): a Reconsideration, dans ZPE, 174, 2010, p. 31‑43.

 

Campbell 2015 = V. L. Campbell, The Tombs of Pompeii: Organization, Space and Society, New York-Londres, 2015.

 

Cavassa – Lemaire – Piffeteau 2012 = L. Cavassa, B. Lemaire, J.-M. Piffeteau, Pompéi, Via dei sepolcri, boutique NE, n. 29: latelier de potier, dans Chronique des activités archéologiques de l’École française de Rome [en ligne], 2012 (URL : http://cefr.revues.org/881). DOI : 10.4000/cefr.881

 

Cavassa – Lemaire – Piffeteau 2013 = L. Cavassa, B. Lemaire, J.-M. Piffeteau, Pompéi. L’atelier de potier, dans Chronique des activités archéologiques de l’École française de Rome [en ligne], 2013 (URL : http://cefr.revues.org/1139 ). DOI : 10.4000/cefr.1139

Cavassa et al. 2014 = L. Cavassa, B. Lemaire, G. Chapelin, A. Lacombe, J.-M. Piffeteau, G. Stelo, Pompéi. L’atelier de potier de la via dei Sepolcri, 29, dans Chronique des activités archéologiques de l’École française de Rome [en ligne], 2014 (URL : http://cefr.revues.org/1279).

Dessales et al. 2015 = H. Dessales, J. Ponce, M. Carrive, J. Cavero, J. Dubouloz, É. Letellier, F. Marchand-Beaulieu, F. Monier, A. Péron, A. Tricoche, Y. Ubelmann, Pompéi. Villa de Diomède. Campagne d’étude 2014, dans Chronique des activités archéologiques de l’École française de Rome [en ligne], 2015 (URL : http://cefr.revues.org/1293).

 

Emmerson 2013 = A. L. C. Emmerson, Memoria et Monumenta: local identities and the tombs of Roman Campania, Cincinnati, 2013 (University of Cincinnati).

 

García y García 2006 = L. García y García, Danni di guerra a Pompei: una dolorosa vicenda quasi dimenticata, Rome, 2006 (Studi della Soprintendenza archeologica di Pompei, 15).

 

Guzzo 1998 = P. G. Guzzo, Pompei oltre la vita: nuove testimonianze dalle necropoli, Pompei, 1998.

 

Jacobelli 2001 = L. Jacobelli, Pompei fuori le mura: note sulla gestione e l’organizzazione dello spazio pubblico e privato, dans F. Senatore (éd.), Pompei tra Sorrento e Sarno [Atti del terzo e quarto ciclo di conferenze di geologia, storia e archeologia], Rome, 2001, p. 29‑61.

 

Kockel 1983 = V. Kockel, Die Grabbauten vor dem Herkulaner Tor in Pompeji, Mayence, 1983 (Beiträge zur Erschließung hellenistischer und kaiserzeitlicher Skulptur und Architektur).

 

Kruschwitz – Campbell 2010 = P. Kruschwitz, V. L. Campbell, Lucius Caltilius Pamphilus and his wife Servilia reunited (CIL X, 1021 + CIL X, 1046), dans Tychè, 25, 2010.

 

Maiuri 1943 = A. Maiuri, Pompei: isolamento della cinta murale fra Porta Vesuvio e Porta Ercolano, dans NSA, 68, 1943, p. 275‑314.

 

Sogliano 1913 = A. Sogliano, La necropoli preromana di Pompei, dans Mem. Nap., 2, 1913, p. 207-229.

 

Pour citer cet article

Référence électronique

Sandra Zanella, Laetitia Cavassa, Nicolas Laubry, Nicolas Monteix et Bastien Lemaire, « Pompéi, Porta Ercolano : organisation, gestion et transformations d’une zone suburbaine », Chronique des activités archéologiques de l’École française de Rome, http://journals.openedition.org/cefr/1581 ; DOI : https://doi.org/10.4000/cefr.1581  

 

 

The low resolution pictures on this site are copyright © of Jackie and Bob Dunn and MAY NOT IN ANY CIRCUMSTANCES BE USED FOR GAIN OR REWARD COMMERCIALLY. On concession of the Ministero della Cultura - Parco Archeologico di Pompei. It is declared that no reproduction or duplication can be considered legitimate without the written authorization of the Parco Archeologico di Pompei.

Le immagini fotografiche a bassa risoluzione pubblicate su questo web site sono copyright © di Jackie e Bob Dunn E NON POSSONO ESSERE UTILIZZATE, IN ALCUNA CIRCOSTANZA, PER GUADAGNO O RICOMPENSA COMMERCIALMENTE. Su concessione del Ministero della Cultura - Parco Archeologico di Pompei. Si comunica che nessun riproduzione o duplicazione può considerarsi legittimo senza l'autorizzazione scritta del Parco Archeologico di Pompei.

Ultimo aggiornamento - Last updated: 02-Oct-2021 15:42