The villa was discovered on the 21st June 1963 by chance during agricultural work on the estate belonging to Fausto De Luca.
It was largely excavated except for the western part under the via Carmiano.
It stands at a height of 600m, east of the Varano hill, at some 350m south of the Stabiae - Nuceria road.
It is an example of the numerous farms built by the Romans in the ager Stabianus.
The villa is a complete but basic processing unit for wine production.
The presence of a large quantity of furnishings and fittings as well as the wall decorations in some rooms (1) and (8) reveal the desire of the owner to raise the tone of the villa and to display, even in a country environment, a minimum of luxury.
See Bonifacio G., 2004. In Stabiano: Exploring the Ancient Seaside Villas of the Roman Elite. Castellammare: Nicola Longobardi, p. 71, p. 75.
According to Bonifacio, a seal with the letters MAR . A . S found during excavations may register the first name of the patron MAR, followed by the initial of the gens (family) A and then the word S(ervi).
See Guzzo, P, Bonifacio, G, and Sodo, A.M., curated by (2007) Otium Ludens. Castellammare di Stabia: Nicola Longobardi, pp. 164.
The villa was reburied for conservation in 1998, after further frescoes were detached and added to those in store from the original excavation.
See Bonifacio G.,
1998. Gragnano Loc. Carmiano: in
Rivista di Studi Pompeiani IX, 1998, pp. 255-6.
See Kockel V.,
1985. Funde und Forschungen in den
Vesuvstadten 1: Archäologischer Anzeiger, Heft 3. 1985, p. 536.
Bonifacio G.,
1997. La villa in località Carmiano in
Pompeii; Picta Fragmenta. Torino, pp. 77-81.
Bonifacio G.,
1998. Gragnano Loc. Carmiano: in
Rivista di Studi Pompeiani IX, 1998, pp. 255-6.
Bonifacio G.,
2000. La villa di Carmiano in Casali
di ieri Casali di Oggi, 2000, pp. 25-29.
Bonifacio G., 2004. In
Stabiano: Exploring the Ancient Seaside Villas of the Roman Elite. Castellammare: Nicola Longobardi, pp. 71-5
and catalogued items.
Camardo D.,
Ferrara A., Longobardi N., 1989. Stabiae:
le ville. Castellammare di Stabia, pp. 69-82.
Camardo D.,
Ferrara A., 2004. Tesori di Stabiae. Castellammare:
Nicola Longobardi, pp. 139-147.
Croisille J. M.,
1966. Les Fouilles archéologiques de Castellammare: Latomus XXV, 1966, pp. 245-257, figs. 8-15.
De Franciscis,
A., 1965. Atti 5. Conv. Taranto 1965 (1966) p. 184.
De
Franciscis, A., 1974. Ercolano e Stabia.
Novara, p. 63f.
De Vos, A.
and De Vos, M., 1982. Guida archeologiche Laterza: Pompei,
Ercolano, Stabia. Rome,
p. 313.
Eristov H., 1978.
A propos d’une peinture de Carmiano a l’Antiquarium di Castellammare di
Stabia. Latomus, 37, 1978, pp. 625-633.
Ferraro, S., 1980. Stabiae. Le ville e l’Antiquarium. Napoli, p. 35.
Guzzo, P, Bonifacio, G, and Sodo, A.M., curated by (2007) Otium Ludens. Castellammare di Stabia: Nicola Longobardi, pp.
57-61 and catalogued items.
Jacobelli L., ed.
Catalogo Alem
de Pompeia: Riscoprendo Il Fascino di Stabiae 2012.
Kockel V., 1985. Funde und Forschungen in den Vesuvstadten 1:
Archäologischer Anzeiger, Heft 3. 1985, n. 97, p. 536f, abb. 24.
Magalhaes M. M., 2006. Stabiae Romana. Castellammare:
Nicola Longobardi, p. 45, p. 74, p. 246-7, figs.
148a, 148b.
Mielsch, H. 1981. Funde und Forschungen zur
Wandmalerei der Prinzipatszeit von 1945 bis 1975, mit
einem Nachtrag 1980. NRW
II 12,2. Berlin: De Gruyter, p. 168.
d'Orsi, L., 1996. Gli scavi di Stabia: Giornale di Scavi. SAP Monografie 11. Roma: Quasar, p. 346f, tavv. 30-34.
Ruggiero, M.,
1881. Degli scavi di Stabia dal 1749 al 1782, Naples, Map
and Taf. 17;.
Soprano p., 1964. Stabiae Scavi e Scoperte, in Fasti Archeologici 16, 1961. Firenze, p.330-1.
According to Kockel, today's municipality of Gragnano connects east and south-east with Castellammare and in antiquity must surely have belonged to the territory of Stabiae.
In 1963, close to villas found in the 18th and 19th centuries, two villae rusticae in Località Carmiano [Villa A and Villa B] were excavated. In villa B there was only excavated a large room with a Torcularium and an area which included Dolia and amphorae. The walls of opus incertum dated the building to the 1st century BC.
Villa A was, however, largely excavated except for the western part under a street, but currently is again buried for preservation and in anticipation of a future excavation and restoration.
See Kockel V., 1985. Funde und Forschungen in den Vesuvstadten 1: Archäologischer Anzeiger, Heft 3. 1985, p. 536.

Gragnano, Villa
rustica in Località Carmiano, Villa A. 2016.
Aerial view showing location of villa (re-buried and not visitable).
Photo courtesy of Google Street View.
See Villa Carmiano on Google Street View

Gragnano, Villa rustica in Località Carmiano, Villa A. 2015. West side of site.
The villa was largely excavated except for the western part under the street.

Gragnano, Villa rustica in Località Carmiano, Villa A. 2015. North and west sides of site.

Gragnano, Villa rustica in Località Carmiano, Villa A. 2015. North-west corner looking south-east.

Gragnano, Villa rustica in Località Carmiano, Villa A. 2015. Looking east from Via Ponte Carmiano.

Gragnano, Villa rustica in Località Carmiano, Villa A. 2013. Modern entrance gate on north-west corner.

Gragnano, Villa rustica in Località Carmiano, Villa A. 2013. Looking south from entrance.
The villa is now buried for preservation and in anticipation of a future excavation and restoration.

Gragnano, Villa rustica in Località Carmiano, Villa A. Remains in early 1960s.
See Croisille J.
M., 1966. Les Fouilles archéologiques de Castellammare
: Latomus XXV, 1966, pp. 245-257, fig. 8.

Gragnano, Villa rustica in Località Carmiano, Villa A. Remains of wall decoration in early 1960s.
See Croisille J.
M., 1966. Les Fouilles archéologiques de Castellammare
: Latomus XXV, 1966, pp. 245-257, fig. 9.

Gragnano, Villa
rustica in Località Carmiano, Villa A.
Excavations in progress in 1963. Detail from photo courtesy of Margaret Hicks.
![Gragnano, Villa rustica in Località Carmiano, Villa A. 1985 plan after Kockel, M. 1 : 250.
See Kockel V., 1985. Funde und Forschungen in den Vesuvstadten 1: Archäologischer Anzeiger, Heft 3. 1985, n. 97, p. 536f, abb. 24.
[Note: We have not used these room numbers in reference to this villa’s photos, but have included this plan here for clarity when reading the descriptions by Kockel.]
1: Courtyard with portico
2: Cella Vinaria with 12 dolia
3: Cubiculum
4: Cubiculum
5: Not mentioned
6: Kitchen with large oven
7: Torcularium with drain directly into a Dolium.
8: Triclinium
9: Not mentioned
10: Not mentioned
11: Cubiculum
12: Cubiculum](Villa_097%20Gragnano%20Localita%20Carmiano%20A_files/image023.jpg)
Gragnano, Villa
rustica in Località Carmiano, Villa A. 1985 plan after Kockel, M. 1 : 250.
See Kockel V., 1985. Funde und Forschungen in den Vesuvstadten 1: Archäologischer Anzeiger, Heft 3. 1985, n. 97, p. 536f, abb. 24.
[Note: We have not used these room numbers in reference to this villa’s photos but have included this plan here for clarity when reading the descriptions by Kockel.]
1: Courtyard with portico
2: Cella Vinaria with 12 dolia
3: Cubiculum
4: Cubiculum
5: Not mentioned
6: Kitchen with large oven
7: Torcularium with drain directly into a Dolium.
8: Triclinium
9: Not mentioned
10: Not mentioned
11: Cubiculum
12: Cubiculum
According to Kockel,
Man betrat die
Villa von Norden und kam in einen auf drei Seiten von sehr ungleichen Portiken umgebenen Hof, den im Westen eine von halbhohen
Mauern eingefaßte Gruppe von 12 Dolia einnahm, wie
sie für solche Gehöfte üblich sind.
Zwei Räume im
Osten und drei im Südwesten dienten als Wohnräume und waren ausgemalt.
Im Südosten lag
die Küche mit großem Ofen (6), daneben ein Torcularium (7) mit Abfluß direkt in ein Dolium.
Der südliche
Flügel des Hofes wurde bereits durch einen signinum-Boden, die Säulen der Porticus
und deren Ausmalung mit zwei weiblichen, geflügelten und Blumen streuenden Figuren
am Eingang zum Triclinium (8) und eine in Resten erhaltene Deckenausmalung betont.
Der Hauptraum
(Triclinium 8) öffnet sich nach Norden und liegt in der Achse der eigens
erweiterten Porticus und des Eingangs zur Villa.
Seine
Wanddekoration wurde wie die der Porticus abgenommen und in veränderter Form im
Antiquarium in Castellammare aufgestellt.
Bisher liegen nur
kurze Beschreibungen von J. M. Croisille und H. Eristov vor.
Die Hauptbilder
zeigen an der Rückwand den Triumph des Bacchus auf dem Ochsenkarren (vgl. Triclinium
der Casa di Lucrezio Frontone), rechts Neptun und Amymone auf einem Gespann von
Seekentauren und links eine unterschiedlich gedeutete
marine Szene (Thetis und Achill? Bacchus und Ceres?).
Auffallend und
bisher ohne direkte Parallele sind die Architekturdurchblicke der Seitenfelder
der Hauptzone, die um die Ecken greifen.
Ob hier
tatsächlich die rechteckige Form des Raumes zu einem Achteck aufgebrochen
werden sollte, wie H. Eristov annimmt, oder ob einfach ein 'zu großes' Vorbild
in einen 'zu kleinen' Raum gesetzt wurde, wie M. de Vos meint, mag offenbleiben.
Schon J. M. Croisille hat die Malerei mit der des Penteus-Zimmers im Vettier-Haus
verglichen, die er für Vespasianisch hält.
Aus den anderen
dekorierten Räumen (Cubicula 3. 4. 11. 12) wurden nur Fragmente ausgeschnitten und
in das Antiquarium in Castellammare oder das Magazin der Villa von S. Marco gebracht,
wo sie noch der Publikation harren (z.B. die leicht gewölbte Decke eines
Cubiculum).
Auch das Lararium
aus dem Ostteil der Porticus wurde in das Antiquarium überführt.
[The Villa is entered from the north and into a courtyard (1) surrounded on three sides by very unequal porticos, in the west was a group of 12 Dolia, enclosed by low walls, as is common for such farms.
Two rooms in the east and three in the south-west were used as living quarters and were painted.
In the south-east was the kitchen with large oven (6), also a Torcularium (7) with drain directly into a Dolium.
The southern wing of the Court was emphasised by a signinum floor, the pillars of the portico and the painting with two female winged figures scattering flowers at the entrance to the Triclinium (8) and a ceiling painting preserved in ruins.
The main room (Triclinium 8) opens to the North and is situated on the axis of the specially of extended portico and the entrance to the Villa.
The wall decoration of the triclinium was removed as was that of the portico and displayed in modified form in the antiquarium in Castellammare.
So far [1985] there are only the brief descriptions of J. M. Croisille and H. Eristov.
The main pictures show the Triumph of Bacchus on the ox-cart on the back wall (see Triclinium of the Casa di Lucrezio Frontone), right Neptune and Amymone on a team of sea Centaurs and left a differently interpreted marine scene (Thetis and Achilles? Bacchus and Ceres?).
Striking and so far [1985] with no direct parallel are the architectural vistas of the main zone end fields, that span the corners.
Whether actually the rectangular shape of the space should be broken open to an octagon, as H. Eristov suggests, or whether simply a ' too big ' model was set in 'too small' a room, like M. de Vos says, may remain open.
Already J. M. Croisille has compared the painting to that of the Pentheus room in the House of the Vettii, which he considers Vespasian era.
From the other decorated rooms (Cubicula 3, 4, 11, 12) only fragments were cut out and placed in the Antiquarium in Castellammare or the store of the Villa San Marco, where they await publication (e.g. the slightly vaulted ceiling of a cubiculum).
Also the Lararium from the eastern part of the portico was transferred to the Antiquarium.]
See Kockel V., 1985. Funde und Forschungen in den Vesuvstadten 1: Archäologischer Anzeiger, Heft 3. 1985, p. 536.

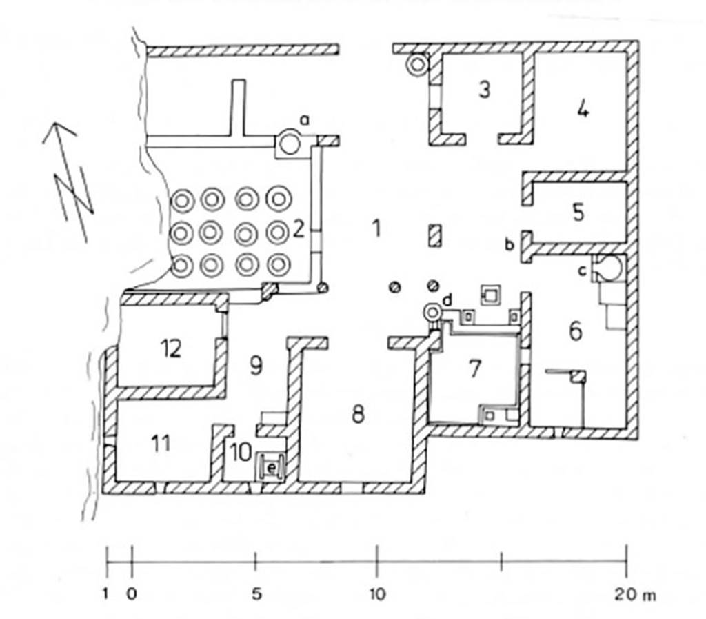
Gragnano, Villa rustica in Località Carmiano, Villa A. Based on plans by SAP.
See Bonifacio, G., 2004. In Stabiano: Exploring the Ancient Seaside Villas of the Roman Elite. Castellammare: Nicola Longobardi, p. 73.
These are the room numbers we use in reference to this villa’s photos.
E: Entrance
1: Triclinium
2: Storeroom?
3: Cubiculum
4: Kitchen with large oven and apotheca
5: Torcularium.
6: Rectangular Portico accessing all rooms
7: Latrine?
8: Cubiculum
9: Cubiculum
10: Access corridor
11: Cubiculum
12: Cella Vinaria with 12 dolia
13: Horreum or storehouse
14: Shown on the plan in “In Stabiano”, p. 73, but not described.
L: Site of stucco aedicula lararium
The main area, sited at the end of the south side of courtyard (6), was made up of the triclinium (1).
The wall decoration in Fourth Style of the Neronian period was completely removed for its safeguarding and taken to the Stabiae Antiquarium.
See Bonifacio G., 2004. In Stabiano: Exploring the Ancient Seaside Villas of the Roman Elite. Castellammare: Nicola Longobardi, p. 71.
The main room, a triclinium, opens to the North and is situated on the axis of the specially of extended portico (6) and the entrance to the Villa.
The main pictures show the triumph of Bacchus on the ox-cart on the back wall (see Triclinium of the Casa di Lucrezio Frontone), right Neptune and Amymone on a team of sea Centaurs and left a different hint marine scene (Thetis and Achilles? Bacchus and Ceres?).
Striking and so far (1985) with no direct parallel are the architectural vistas of the side panels of main zones which join to form the corner panels.
The wall decoration of the triclinium was removed as was that of the portico to the Antiquarium in Castellammare.
See Kockel V., 1985. Funde und Forschungen in den Vesuvstadten 1: Archäologischer Anzeiger, Heft 3. 1985, p. 536f.

Gragnano, Villa rustica in Località Carmiano, Villa A. Triclinium 1. Reconstruction of room, looking south.
The three walls had each a central panel with a fresco and side panels with female figures in flight.
Architectonic perspectives which continued round the corners, suggested a unitary space removing the corners and giving continuity to the walls.
See Bonifacio G., 2004. In Stabiano: Exploring the Ancient Seaside Villas of the Roman Elite. Castellammare: Nicola Longobardi, p. 73.

Gragnano, Villa
rustica in Località Carmiano, Villa A. Triclinium 1.
East wall with fresco of Bacchus and Ceres and architectural painting continuing round north-east corner.
Stabiae Antiquarium, inventory numbers 63687 and 63686.

Gragnano, Villa rustica in Località Carmiano, Villa A. Triclinium 1. East wall, with fresco of Bacchus and Ceres.
Photo courtesy of Mentnafunangann - Own work. Licensed under CC BY-SA 3.0, via Wikimedia Commons.

Gragnano, Villa
rustica in Località Carmiano, Villa A. Triclinium 1.
East wall, with fresco of Bacchus and Ceres astride a hippogryph, a mythical beast, half griffin and half horse.
See Bonifacio G., 2004. In Stabiano: Exploring the Ancient Seaside Villas of the Roman Elite. Castellammare: Nicola Longobardi, p. 71.
According to Croisille, Bacchus and Ceres travel the world on the marine horse's back to offer their gifts to the people. The nearly naked feminine coloured body of the young god contrasts the flowing garment of the goddess and the sail, inflated by the wind, forms a canopy over the group.
See Croisille J. M., 1966. Les Fouilles archéologiques de Castellammare: Latomus XXV, 1966, p. 253, Pl. IX fig. 13.

Gragnano, Villa rustica in Località Carmiano, Villa A. 1970. Triclinium 1, east wall.
Panel with painting of ducks in zoccolo below central painting of Bacchus and Ceres. Photo by Stanley A. Jashemski.
Source: The Wilhelmina and Stanley A. Jashemski archive in the University of Maryland Library, Special Collections (See collection page) and made available under the Creative Commons Attribution-Non-Commercial License v.4. See Licence and use details.
J70f0624
Stabiae Antiquarium, part of inventory number 63687.

Gragnano, Villa
rustica in Località Carmiano, Villa A. Triclinium 1.
East wall, flying figure to left of fresco of Bacchus and Ceres.
In her right hand she holds a ribbon and in the left a thyrsus.

Gragnano, Villa
rustica in Località Carmiano, Villa A. Triclinium 1.
South wall, with fresco of Triumph of Dionysus and architectural painting continuing round the south-west corner.
Stabiae Antiquarium, inventory numbers 63683.

Gragnano, Villa
rustica in Località Carmiano, Villa A. Triclinium 1, south wall.
Central fresco of Triumph of Dionysus on a chariot pulled by two bulls.
According to Croisille, this depicts the Triumph of Bacchus, but the upper part is severely degraded and you cannot see the god who is on a chariot pulled by two oxen. He is accompanied by his usual train:
Left, is the big Silenus, whose paunch is spread on the back of his donkey; a little ithyphallic faun, with a mocking air;
Right, a naked young man with a dance in his step guides the harness,
In the background, one discerns figures half lost now (probably maenads)
A panther sneaks between the heavy hooves of the oxen.
See Croisille J. M., 1966. Les Fouilles archéologiques de Castellammare : Latomus XXV, 1966, p. 252, Pl. VIII fig. 12.
According to Bonifacio, this represents the Triumph of Dionysus on a chariot pulled by two bulls preceded by a naked satyr playing a pan flute.
See Bonifacio G., 2004. In Stabiano: Exploring the Ancient Seaside Villas of the Roman Elite. Castellammare: Nicola Longobardi, p. 71.

Gragnano, Villa
rustica in Località Carmiano, Villa A. Triclinium 1.
West wall with fresco of Neptune and Amymone and flying figures.
Photo courtesy of Mentnafunangann (Own work). Use subject to CC BY-SA 3.0, via Wikimedia Commons.
Stabiae Antiquarium, inventory numbers 63685.

Gragnano, Villa rustica in Località Carmiano, Villa A. Triclinium 1. West wall.
Fresco of Neptune and Amymone, seated astride a horse rampant.
See Bonifacio G., 2004. In Stabiano: Exploring the Ancient Seaside Villas of the Roman Elite. Castellammare: Nicola Longobardi, p. 71.
According to Croisille,
This is the abduction of a Nereid by Neptune on his sea chariot.
The God is shown with abundant hair and a black beard, swarthy face and brown skin tone, contemplates lustfully the Nereid he carries in his arms.
The Nereid with a pale skin tone her body held against the god has her head turned looking at the viewer.
Note the almost human expression of the rampant horse.
There are two figures on the right: one carries a pitcher on the neck, while the other, in a natural movement, is striving to lead the rearing horse.
The fabrics agitated by the breeze, form a kind of canopy above the main group.
See Croisille J.
M., 1966. Les Fouilles archéologiques de Castellammare
: Latomus XXV, 1966, p. 250.
According to Wikipedia, Amymone is usually represented by a water pitcher, a reminder of the sacred springs and lake of Lerna and of the copious wells that made Argos the "well-watered".
See https://en.wikipedia.org/wiki/Amymone

Gragnano, Villa
rustica in Località Carmiano, Villa A.
Triclinium 1. North end of west wall. Detail of flying figure.

Gragnano, Villa
rustica in Località Carmiano, Villa A. Triclinium 1.
West wall with fresco of Neptune and Amymone and architectural painting continuing round the north-west corner.
According to Eristov, the unique vista contained in the architectural angle tends to eliminate the actual quadrangular space in favour of a fictitiously octagonal space, the false sides of which open in impossible windows.
Such painting, with its moving continuity of processions and the abolition of the corners seems a unique case within Campanian painting.
See Eristov H.,
1978. A propos d’une peinture de Carmiano
a l’Antiquarium di Castellammare di Stabia. Latomus, 37, 1978, pp. 632.

Gragnano, Villa rustica in Località Carmiano, Villa A. Room 1. Perfume holder.
Stabiae Antiquarium, inventory number 63528. Photo courtesy of Margaret Hicks.
North of the kitchen (4) was a room (2) which was probably a storeroom, as numerous household fittings both in bronze and terracotta were strewn on the floor.
See Bonifacio G., 2004. In Stabiano: Exploring the Ancient Seaside Villas of the Roman Elite. Castellammare: Nicola Longobardi, p. 73.

Gragnano, Villa
rustica in Località Carmiano, Villa A. Hoe found in room 2.
Stabiae Antiquarium, inventory number 63296. Detail from photo courtesy of Margaret Hicks.

Gragnano, Villa rustica in Località Carmiano, Villa A. Spade and pick found in room 2.
Stabiae Antiquarium, inventory number pick 63295 spade 63297. Detail from photo courtesy of Margaret Hicks.

Gragnano, Villa
rustica in Località Carmiano, Villa A.
Bronze lamp stand with feline feet found in room 2.
Stabiae Antiquarium, inventory number 63279.
The lamp was found in room 6. Detail from photo courtesy of Margaret Hicks.

Gragnano, Villa
rustica in Località Carmiano, Villa A.
Second bronze lamp stand with feline feet, found in room 2.
Stabiae Antiquarium, inventory number 63278.
The lamp was found in room 6. Detail from photo courtesy of Donna Dollings.
Room (3) in the north-east corner of the villa, was probably a white-walled cubiculum with fanciful animal designs.
During excavations a thick layer of hydrated lime was found next to the wall, suggesting restoration was in progress in the villa, as well as numerous fragments of the ceiling decorated with mallards, masks and garlands on a white background.
A curled-up skeleton with hands covering the face was found towards the corner of the room.
See Bonifacio G., 2004. In Stabiano: Exploring the Ancient Seaside Villas of the Roman Elite. Castellammare: Nicola Longobardi, p. 73.

Gragnano, Villa
rustica in Località Carmiano, Villa A. Room 3.
Small single handled terracotta jug with rounded body.
Stabiae Antiquarium, inventory number 63592.
Room 4, kitchen with large oven and apotheca.
In the south-east of the courtyard (6) was the kitchen (4), a large open room with two windows south and west, intercommunicating with the adjacent torcularium.
In the north-east corner stood a small oven with vaulted cover, with two work surfaces beside.
Findings of numerous fragments of glass vases suggest that in the kitchen was a small apotheca (storeroom) with an earthen floor where valuable object were kept.
See Bonifacio G., 2004. In Stabiano: Exploring the Ancient Seaside Villas of the Roman Elite. Castellammare: Nicola Longobardi, p. 73.
Room 4

Gragnano, Villa
rustica in Località Carmiano, Villa A. Billhook found in room 4.
Stabiae Antiquarium, inventory number 63416. Detail from photo courtesy of Margaret Hicks.

Gragnano, Villa
rustica in Località Carmiano, Villa A. Bronze jug found
in room 4.
Stabiae Antiquarium, inventory number 63377. Detail from photo courtesy of Donna Dollings.
To the east of the triclinium (1), between the triclinium and the kitchen (4) was a Torcularium or wine press.
This was divided, as was the norm, with a sort of work area to the north and a pressing area to the south.
In the south-east corner were two small rectangular cavities, probably to house the press, whose remaining apparatus was situated outside the room and made up of two square wooden bars with holes to work the press.
Further ahead lay a square well, most likely used as a work space by the labourers in charge of assembling the press.
The floor and the walls were of cocciopesto (terracotta tile fragments).
The floor sloped slightly to the north-west to collect the liquid from the press, which was conveyed to the dolium outside.
See Bonifacio G., 2004. In Stabiano: Exploring the Ancient Seaside Villas of the Roman Elite. Castellammare: Nicola Longobardi, p. 73.
The torcularium had a drain directly into a dolium.
See Kockel V., 1985. Funde und Forschungen in den Vesuvstadten 1: Archäologischer Anzeiger, Heft 3. 1985, p. 536.
The centre of the building comprised a large courtyard, reached by a northern entrance.
The southern area of the courtyard was lined by a portico of four columns, including the central columns, at the entrance to the triclinium (1), with a large intercolumnium (double column) (2.5m).
It allowed the back wall, splendidly frescoed with mythological scenes of the Dionysian cycle, to be seen from the entrance, on whose access pillars sat two female figures on a yellow background.
See Bonifacio G., 2004. In Stabiano: Exploring the Ancient Seaside Villas of the Roman Elite. Castellammare: Nicola Longobardi, p. 71.
The southern wing of the Court had a signinum floor and was lined by the pillars of the portico and the painting with two female winged figures scattering flowers at the entrance to the Triclinium and a ceiling painting preserved in ruins. The wall decoration was removed to the Antiquarium in Castellammare.
See Kockel V., 1985. Funde und Forschungen in den Vesuvstadten 1: Archäologischer Anzeiger, Heft 3. 1985, p. 536.

Gragnano, Villa rustica in Località Carmiano, Villa A. Room 6. Flying figure.
Stabiae Antiquarium, inventory number 63690. Photo courtesy of Margaret Hicks.

Gragnano, Villa
rustica in Località Carmiano, Villa A. Room 6.
Winged flying figure. Stabiae Antiquarium, inventory number 63690.
Photo courtesy of Donna Dollings.

Gragnano, Villa rustica in Località Carmiano, Villa A. Room 6. Detail of winged flying figure.

Gragnano, Villa rustica in Località Carmiano, Villa A. Hippogriff from ceiling of southern portico 6.
Stabiae Antiquarium, inventory number 63695.
According to Camardo, the porch that protected the south wing of the villa was painted, as was shown by the remains still in situ at the twin-column gemina, and by the figure of a hippogriff in a circle which decorated the ceiling of that porch.
See Camardo D.,
Ferrara A., Longobardi N., 1989. Stabiae:
le ville. Castellammare di Stabia, p. 69-70, p. 76, fig. 91.

Gragnano, Villa
rustica in Località Carmiano, Villa A. Lamp found in
room 6.
Stabiae Antiquarium, inventory number 63543. The lamp stand was found in room 2. Photo courtesy of Margaret Hicks.

Gragnano, Villa rustica in Località Carmiano, Villa A. Double ended terracotta hanging lamp found in room 6.
Stabiae Antiquarium, inventory number 63543. Detail from photo courtesy of Margaret Hicks.

Gragnano, Villa
rustica in Località Carmiano, Villa A.
Wine jug with trefoil mouth and upraised handle, found in room 6.
Stabiae Antiquarium, inventory number 63539. Detail from photo courtesy of Donna Dollings.

Gragnano, Villa rustica in Località Carmiano, Villa A. Base of seal with ring grip, found in courtyard 6.
Stabiae Antiquarium inventory number 63458.
According to Magalhaes this reads
Mar(---) A(---) S(---)
The abbreviation MAR does not correspond to the abbreviations standardly used in Roman or Oscan times, suggesting the fact that the seal is well before this period;
If so then you may have a unique name, followed by the family of the dominus or patronus in genitive and equally abbreviated.
See
Magalhaes M. M., 2006. Stabiae Romana.
Castellammare: Nicola
Longobardi, p. 45, p. 246, fig. 148a.
According to Bonifacio, the seal may register the first name of the patron MAR, followed by the initial of the gens (family) A and then the word S(ervi).
See Guzzo, P, Bonifacio, G, and Sodo, A.M., curated by (2007) Otium Ludens. Castellammare di Stabia: Nicola Longobardi, pp. 164.

Gragnano, Villa rustica in Località Carmiano, Villa A. Top of ring of seal found in courtyard 6.
According to Magalhaes this has a very small K scratched, with also a graffito N made at a later time.
See
Magalhaes M. M., 2006. Stabiae Romana.
Castellammare: Nicola
Longobardi, p. 45, p. 247, fig. 148b.
The east side of the courtyard (6) was occupied by a lararium with Minerva seated on a throne, in the stretch of wall between the kitchen (4) and storeroom (2), as is common usage among other country houses around Vesuvius.
See Bonifacio G., 2004. In Stabiano: Exploring the Ancient Seaside Villas of the Roman Elite. Castellammare: Nicola Longobardi, p. 71.

Gragnano, Villa rustica in Località Carmiano, Villa A. June 2017. Aedicula lararium.
From dividing pilaster between kitchen room 4 and room 2.
Stabiae Antiquarium, inventory number 63688. Photo courtesy of Michael Binns.
Lararium with niche and painting of serpent underneath.
The lararium had a triangular pediment supported by two Corinthian columns.
The painting at the rear showed an enthroned Minerva with breastplate, helmet, shield, lance in the left hand and gilded/golden plate in the right.
Underneath the lararium, a painted serpent was found, moving to the right towards an altar on which was deposited the offerings.
See Fröhlich, T., 1991. Lararien und Fassadenbilder in den Vesuvstädten. Mainz: von Zabern, p. 303, L122, Taf. 15,1.

Gragnano, Villa
rustica in Località Carmiano, Villa A.
June 2017. Front of lararium. Photo courtesy of Michael Binns.

Gragnano, Villa
rustica in Località Carmiano, Villa A. 1968.
From dividing pilaster between kitchen room 4 and room 2.
Lararium in stucco found inserted in a yellow painted wall. Photo by Stanley A. Jashemski.
Source: The Wilhelmina and Stanley A. Jashemski archive in the University of Maryland Library, Special Collections (See collection page) and made available under the Creative Commons Attribution-Non-Commercial License v.4. See Licence and use details.
J68f1875

Gragnano, Villa
rustica in Località Carmiano, Villa A. Lararium niche.
From dividing pilaster between kitchen room 4 and room 2.
Lararium in stucco found inserted in a yellow painted wall.
The lararium had a triangular pediment supported by two Corinthian columns.
The painting at the rear showed an enthroned Minerva with breastplate, helmet, shield, lance in the left hand and gilded/golden plate in the right.

Gragnano, Villa rustica in Località Carmiano, Villa A. June 2017. Lararium niche with painting of Minerva.
From dividing pilaster between kitchen room 4 and room 2. Photo courtesy of Michael Binns.

Gragnano, Villa
rustica in Località Carmiano, Villa A. June 2017.
Underneath the aedicula lararium, a painted serpent is moving towards an altar on which was an egg and other offerings.
Photo courtesy of Michael Binns.

Gragnano, Villa rustica in Località Carmiano, Villa A. 1968. From dividing pilaster between kitchen room 4 and room 2.
Underneath the aedicula lararium, a painted serpent was found, moving to the right towards an altar on which was deposited the offerings.
Photo by Stanley A. Jashemski.
Source: The Wilhelmina and Stanley A. Jashemski archive in the University of Maryland Library, Special Collections (See collection page) and made available under the Creative Commons Attribution-Non-Commercial License v.4. See Licence and use details.
J68f1876

Gragnano, Villa rustica in Località Carmiano, Villa A. 1970. Lower part of lararium. Photo by Stanley A. Jashemski.
Source: The Wilhelmina and Stanley A. Jashemski archive in the University of Maryland Library, Special Collections (See collection page) and made available under the Creative Commons Attribution-Non-Commercial License v.4. See Licence and use details.
J70f0625
In the south-east corner of the room lay two recesses to fit a wooden shelf.
This room was most likely a latrine.
See Bonifacio G., 2004. In Stabiano: Exploring the Ancient Seaside Villas of the Roman Elite. Castellammare: Nicola Longobardi, p. 71.

Gragnano, Villa
rustica in Località Carmiano, Villa A.
Terracotta cup on a small trumpet foot, found in south-west corner of room 7.
Stabiae Antiquarium, inventory number 63464. Detail from photo courtesy of Donna Dollings.
This room was a cubiculum off corridor (10).
It had wall decoration on a black background with architectonic perspective and erotic designs.
See Bonifacio G., 2004. In
Stabiano: Exploring the Ancient Seaside Villas of the Roman Elite. Castellammare: Nicola Longobardi, p. 71.
See Jacobelli L.,
ed. Catalogo Alem
de Pompeia: Riscoprendo Il Fascino di Stabiae 2012.

Gragnano, Villa rustica in Località Carmiano, Villa A. Cubiculum 8.
Information card. Photo courtesy
of Giuseppe Ciaramella.

Gragnano, Villa rustica in Località Carmiano, Villa A. Cubiculum 8. Walls with architectural motifs.
Stabiae Antiquarium, inventory numbers
63708 east wall (left)
63707 south wall (centre)
63709 west wall (right)
See Guzzo, P, Bonifacio, G, and Sodo, A.M., curated by (2007) Otium Ludens. Castellammare di Stabia: Nicola Longobardi, p. 162.

Gragnano, Villa
rustica in Località Carmiano, Villa A. Cubiculum 8 east wall.
Stabiae Antiquarium, inventory number 63708.

Gragnano, Villa
rustica in Località Carmiano, Villa A. Cubiculum 8 east wall.
April 2022.
Photo courtesy of Giuseppe Ciaramella.

Gragnano, Villa
rustica in Località Carmiano, Villa A. Cubiculum 8 east wall.
April 2022.
Photo courtesy of Giuseppe Ciaramella.

Gragnano, Villa
rustica in Località Carmiano, Villa A. Cubiculum 8 east wall.
The panels were found in a bad state of conservation.
At the top of the vegetal growth from the silver kantharos is a gold plate on which a small bird is visible.
The only bird still visible is on this east panel.
The zoccolo shows a shrub and the central painting is an erotic scene.
Stabiae
Antiquarium, inventory number 63708.
See Jacobelli L., ed. Catalogo Alem de Pompeia: Riscoprendo Il Fascino di
Stabiae 2012.

Gragnano, Villa
rustica in Località Carmiano, Villa A. Cubiculum 8, erotic painting from centre
of east wall. April 2022.
Photo courtesy of Giuseppe
Ciaramella.
Gragnano, Villa rustica in Località Carmiano, Villa A. Cubiculum 8, erotic central scene set in panel with shutters.
Stabiae Antiquarium, inventory number s. n., part of wall 63710.

Gragnano, Villa rustica in Località Carmiano, Villa A. Cubiculum 8 south wall. April 2022. Photo courtesy of Giuseppe Ciaramella.

Gragnano, Villa
rustica in Località Carmiano, Villa A. Cubiculum 8 south wall.
Stabiae Antiquarium, inventory number 63707.

Gragnano, Villa
rustica in Località Carmiano, Villa A. Cubiculum 8 west wall.
Stabiae Antiquarium, inventory number 63709.

Gragnano, Villa
rustica in Località Carmiano, Villa A.
Cubiculum 8 west wall. April 2022. Photo courtesy of Giuseppe Ciaramella.

Gragnano, Villa
rustica in Località Carmiano, Villa A.
Cubiculum 8 west wall. April 2022. Photo courtesy of Giuseppe Ciaramella.

Gragnano, Villa
rustica in Località Carmiano, Villa A. Cubiculum 8 west wall.
The panels were found in a bad state of conservation.
In each side panel, at the top of the vegetal growth from the silver kantharos is a gold plate on which a small bird was visible.
The only bird still visible is on the east wall panel.
The zoccolo shows shrubs and the central painting has an erotic scene.
Stabiae Antiquarium, inventory number 63709.

Gragnano, Villa
rustica in Località Carmiano, Villa A. Cubiculum 8 west wall.
April 2022.
Erotic painting
from centre of west wall. Photo courtesy of Giuseppe Ciaramella.

Gragnano, Villa rustica in Località Carmiano, Villa A. Cubiculum 8, panel with shutters and erotic central scene.
Stabiae Antiquarium, inventory number 63529.

Gragnano, Villa
rustica in Località Carmiano, Villa A. Cubiculum 8 west wall.
Detail of parts of wall with erotic scene on left.
Stabiae Antiquarium, inventory number 63709.

Gragnano, Villa rustica in Località Carmiano, Villa A. Rake found in room 8 (according to the Quisisana exhibition label).
Stabiae Antiquarium, inventory number 63484. Detail from photo courtesy of Margaret Hicks.
This room had a window opening onto the entrance and a door on its south side to the courtyard.
It had wall decoration with a yellow background in the middle, with illustrated designs and a red base with floral motifs and lanceolate leaf bushes.
See Bonifacio G., 2004. In Stabiano: Exploring the Ancient Seaside Villas of the Roman Elite. Castellammare: Nicola Longobardi, p. 73.

Gragnano, Villa rustica in Località Carmiano, Villa A. 1998. Looking north to doorway of room 9.
See Camardo D.,
Ferrara A., Longobardi N., 1989. Stabiae:
le ville. Castellammare di Stabia, p. 74, fig. 84.
![Gragnano, Villa rustica in Località Carmiano, Villa A. Room 9.
Two frescoes one of a flying cupid and below a flying psyche.
Stabiae Antiquarium, inventory numbers 63694 [cupid] and 63693 [psyche].
Photo courtesy of Margaret Hicks.](Villa_097%20Gragnano%20Localita%20Carmiano%20A_files/image133.jpg)
Gragnano, Villa
rustica in Località Carmiano, Villa A. Room 9.
Two frescoes one of a flying cupid and below a flying psyche.
Stabiae Antiquarium, inventory numbers 63694 [cupid] and 63693 [psyche].
Photo courtesy of Margaret Hicks.

Gragnano, Villa rustica in Località Carmiano, Villa A. Room 9. Psyche in flight.
Stabiae Antiquarium, inventory number 63693. Photo courtesy of Donna Dollings.

Gragnano, Villa rustica in Località Carmiano, Villa A. Room 9. Detail of psyche in flight, holding rhyton and thyrsus.

Gragnano, Villa rustica in Località Carmiano, Villa A. Room 9. Flying cupid.
Stabiae Antiquarium, inventory number 63694. Photo courtesy of Donna Dollings.

Gragnano, Villa rustica in Località Carmiano, Villa A. Room 9. Detail of flying cupid, holding thyrsus and patera.

Gragnano, Villa
rustica in Località Carmiano, Villa A. Room 9.
Cylindrical bronze pyx (small round lidded box) with hinged lid and decorated with incised parallel lines.
Stabiae Antiquarium, inventory number 63528. Detail from photo courtesy of Margaret Hicks.
South of the wine room (12) was a corridor (10) which led to two rooms (8) and (11).
See Bonifacio G., 2004. In Stabiano: Exploring the Ancient Seaside Villas of the Roman Elite. Castellammare: Nicola Longobardi, p. 71.
This room was off the corridor (10) and was almost completely destroyed.
It had a window in the north wall that opened onto the wine room 12.
See Bonifacio G., 2004. In Stabiano: Exploring the Ancient Seaside Villas of the Roman Elite. Castellammare: Nicola Longobardi, p. 71.

Gragnano, Villa rustica in Località Carmiano, Villa A. Room 11 zoccolo. Flowering plant.
Stabiae Antiquarium, inventory number 63779.
See Guzzo, P, Bonifacio, G, and Sodo, A.M., curated by, 2007.
Otium Ludens.
Castellammare di Stabia: Nicola Longobardi, p. 162.

Gragnano, Villa rustica in Località Carmiano, Villa A. Room 11 zoccolo. Flowering plant.
Stabiae Antiquarium, inventory number 63711.
See Guzzo, P, Bonifacio, G, and Sodo, A.M., curated by, 2007.
Otium Ludens.
Castellammare di Stabia: Nicola Longobardi, p. 162.
On the western side a low wall marked the wine room (12) on a raised level, perhaps due to its enlargement at the expense of the courtyard.
In the north-east corner was a semi-buried dolium for the collection of must.
There were 12 sunken dolia laid out in three rows of four and protected by a clay lid.
The combined capacity was estimated to be around 7000 litres.
This would have meant the vineyard extended to little more than 5 acres or approximately 1.3 hectares.
A farm therefore of modest dimensions, worked by a few people, with the help of seasonal labour for the harvest.
See Camardo D.,
Ferrara A., Longobardi N., 1989. Stabiae:
le ville. Castellammare di Stabia, pp. 72.

Gragnano, Villa
rustica in Località Carmiano, Villa A. 1998.
Intercolumnium in room 12 and room 6.
Along the north side of the cella vinaria (12) was this room, probably a storehouse (horreum).
See Camardo D.,
Ferrara A., Longobardi N., 1989. Stabiae:
le ville. Castellammare di Stabia, p. 72.
This room is found to the west of room 13.
This room is shown for the first time on the plan included “In Stabiano”, but the room is not described, so we do not know it’s function.
See Bonifacio G., 2004. In Stabiano: Exploring the Ancient Seaside Villas of the Roman Elite. Castellammare: Nicola Longobardi, p. 73.
Most of the area of the villa that was explored was given over to wine production.
Indirect evidence of further agricultural activity is provided by the findings of agricultural implements (spades, hoes, scythes), indispensable for the farming of the estate.
See Bonifacio G., 2004. In Stabiano: Exploring the Ancient Seaside Villas of the Roman Elite. Castellammare: Nicola Longobardi, p. 75.
In the villa were found a fine group of bronze pots, two long cutting implements of iron, numerous terracotta items, a small tufa altar with reliefs and five tiles with the stamp Eumachi Erotis.
See Camardo D.,
Ferrara A., Longobardi N., 1989. Stabiae:
le ville. Castellammare di Stabia, pp. 71-72.

Gragnano, Villa
rustica in Località Carmiano, Villa A. Tufa altar found
in villa.
Secondo Il Comitato
per gli scavi di Stabia, notevole [nell'Antiquarium] è anche il campionario di
reperti legati all’instrumentum domesticum delle ville. In
particolare appaiono significativi gli oggetti in metallo rinvenuti
nella villa A di Carmiano, dove la presenza di roncole, chiodi, ascia,
rastrello, forca, graticola, tripode e pentole danno chiaramente l’idea degli
utensili utilizzati nel lavoro dei campi e nella vita quotidiana.
According to Il Comitato per gli scavi di Stabia, also notable [in the Antiquarium] is the collection of artefacts related to the instrumentum domesticum of the villas. Particularly significant are the metal objects found in the villa in Carmiano, where the presence of billhooks, nails, axe, rake, pitchfork, gridirons, tripod and pots give a clear idea of the tools used in farm work and everyday life.
See http://scavidistabia.it/?page_id=289

Gragnano, Villa rustica in Località Carmiano, Villa A.
Agricultural implements found in several rooms. Photo courtesy of Donna Dollings.

Gragnano, Villa
rustica in Località Carmiano, Villa A. Agricultural implements.
Stabiae Antiquarium, inventory numbers
63297 vanga (spade) found in room 2.
63295 piccone (pickaxe) found in room 2.
63484 rastrello (rake) found in room 8.
63416 roncola (billhook) found in room 4.
63296 zappa (hoe) found in room 2.
Photo courtesy of Margaret Hicks.

Gragnano, Villa
rustica in Località Carmiano, Villa A. Items found in
various rooms.
Stabiae Antiquarium, inventory numbers
63539 bronze wine jug with trefoil mouth, found in room 6.
63437 bronze hanging perfume holder, found in room 1.
63464 terracotta cup on a tall trumpet foot, found in room 7.
63528 circular bronze pyx with hinged lid, found in room 9.
63278 63279 bronze lamp stands, found in room 2.
63543 terracotta hanging lamp with nozzles at each end, found in room 6.
63377 bronze jug with ribbon rim, found in room 4.
Photo courtesy of Margaret Hicks.
See Guzzo, P, Bonifacio, G, and Sodo, A.M., curated by (2007) Otium Ludens. Castellammare di Stabia: Nicola Longobardi, pp. 164-6.
See Bonifacio G., 2004. In Stabiano: Exploring the Ancient Seaside Villas of the Roman Elite. Castellammare: Nicola Longobardi, p. 137.

Gragnano, Villa
rustica in Località Carmiano, Villa A. Items found in
various rooms.
Stabiae Antiquarium, inventory numbers
63539 jug found in room 6.
63437 bronze perfume holder found in room 1.
63464 cup found in room 7.
63528 pyx found in room 9.
63278 (rear) 63279 (front) lamp stands found in room 2.
63543 lamp found in room 6.
63377 jug found in room 4.
Photo courtesy of Donna Dollings.

Gragnano, Villa
rustica in Località Carmiano, Villa A.
Stabiae Antiquarium, inventory numbers
63464 Cup left found in room 7.
63528 bronze perfume holder (centre) found in room 1.
63437 pyx (behind) found in room 9.
63377 jug (rear) found in room 4.
63278 (left rear) 63279 (right rear) lamp stands found in room 2.
63543 lamp found in room 6.
63539 jug (front right) found in room 6.
Photo courtesy of Donna Dollings.

Gragnano, Villa rustica in Località Carmiano, Villa A. Glass items found in the villa.
Stabiae Antiquarium, inventory numbers
63519 tall glass bottle with flared rim and handle, from room 9, reassembled form fragments.
63408 taller light green cup, from room 6, reassembled from fragments.
63395 lower light green cup with splayed rim, from room 6, found intact.
61407 flat bottle is from Santa Maria La Carita, Villa Petraro.
See Bonifacio G., 2004. In Stabiano: Exploring the Ancient Seaside Villas of the Roman Elite. Castellammare: Nicola Longobardi, p. 133.

Gragnano, Villa rustica in Località Carmiano, Villa A. Items found in the villa.
Stabiae Antiquarium, inventory numbers
63571 round glass ointment or perfume flask, from near lararium.
63589 tapered glass ointment or perfume flask, from room 3.
63437 bronze hanging perfume holder, from room 1.
61406 glass cup is from Santa Maria La Carità, Villa Petraro.
See Bonifacio G., 2004. In Stabiano: Exploring the Ancient Seaside Villas of the Roman Elite. Castellammare: Nicola Longobardi, p. 132, p. 137.